Log In/Sign Up
Your email has been sent.
75009 Paris 2,174 SF Office/Retail Condo Unit Offered at $2,093,280 CAD

Some information has been automatically translated.
Executive Summary
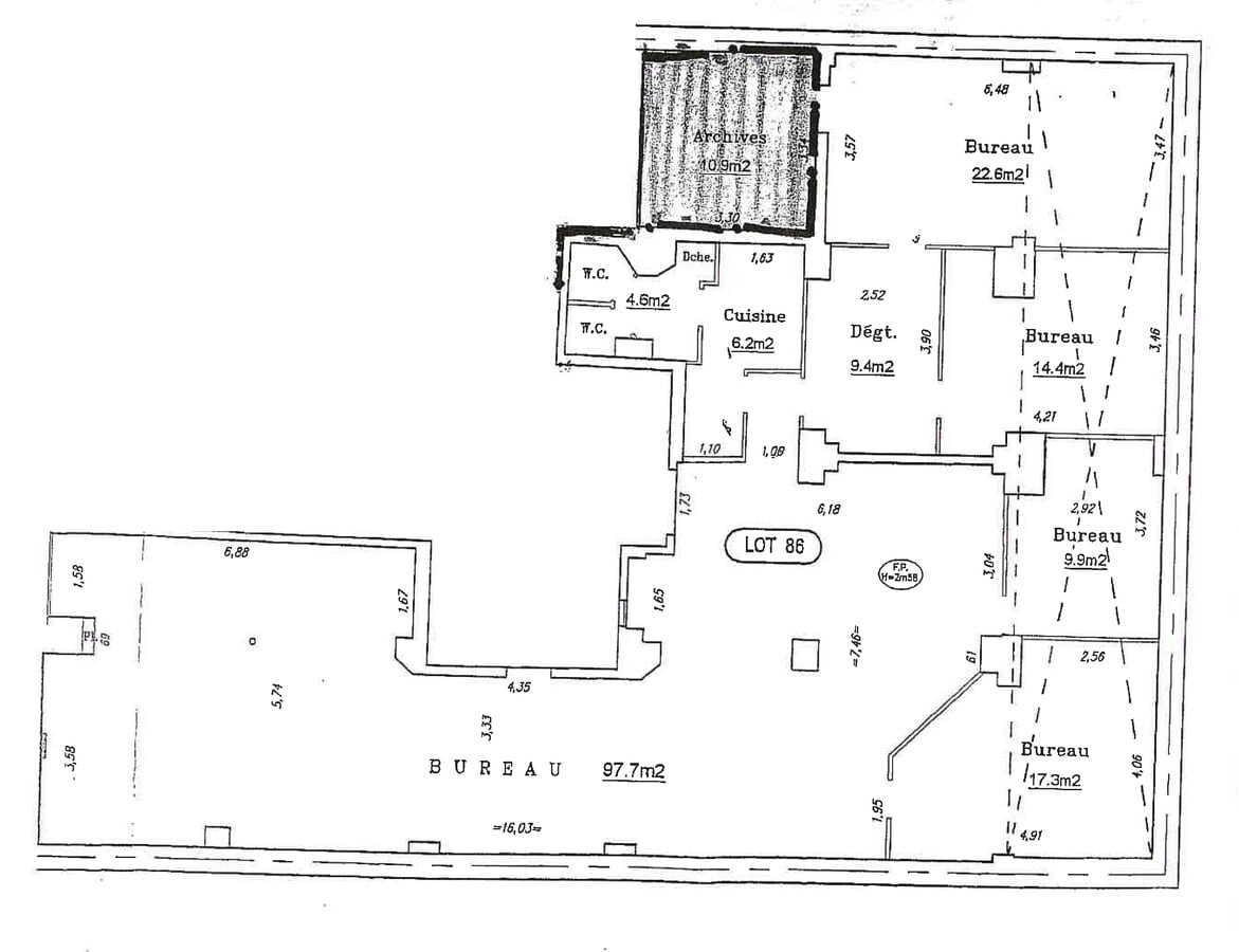
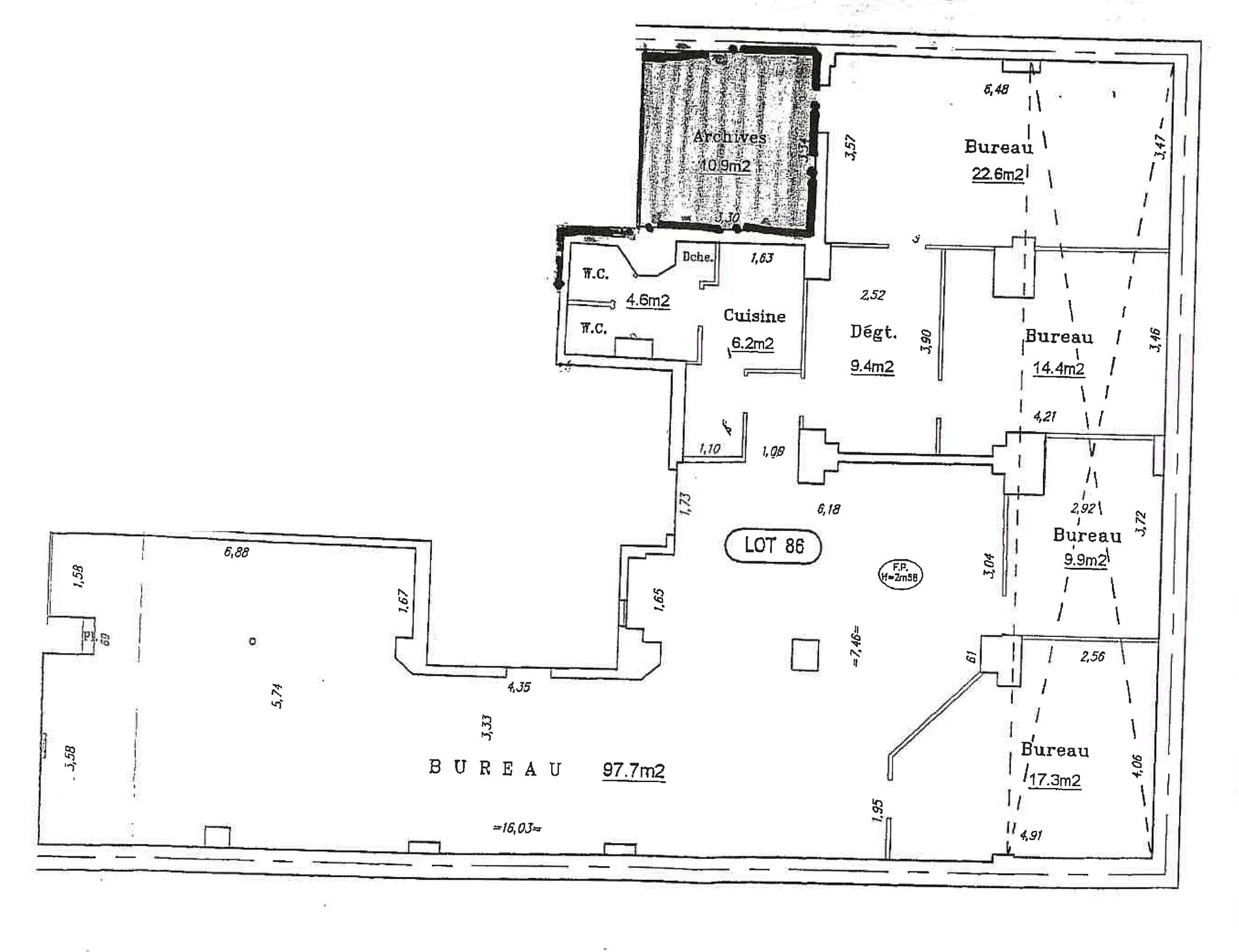
HARBOUR RE vous propose à l'acquisition dans le 9e arrdt une surface de bureaux d'environ 202 en rez-de-chaussée sur cour, avec verrière, de plain-pied. Double accès indépendant sur cour. Travaux de rafraichissement à prévoir. Configuration : Accueil, Open Space de 98m², 4 bureaux, Cuisine et double sanitaires. Prix de Vente : 1 310 000 € net vendeur. Nous contacter pour tout renseignement complémentaire.
Property Facts
| Total Building Size | 10,000 - 60,000 SF | Building Class | C |
| Property Type | Multifamily (Condo) | Floors | 7 |
| Property Subtype | Apartment | Year Built | 1890 - 1899 |
| Total Building Size | 10,000 - 60,000 SF |
| Property Type | Multifamily (Condo) |
| Property Subtype | Apartment |
| Building Class | C |
| Floors | 7 |
| Year Built | 1890 - 1899 |
1 Unit Available
| Unit Size | 2,174 SF | Condo Use | Office/Retail |
| Price | $2,093,280 CAD | Sale Type | Investment or Owner User |
| Price Per SF | $962.87 CAD |
| Unit Size | 2,174 SF |
| Price | $2,093,280 CAD |
| Price Per SF | $962.87 CAD |
| Condo Use | Office/Retail |
| Sale Type | Investment or Owner User |
plan
Logo
1 of 2
Videos
Matterport 3D Exterior
Matterport 3D Tour
Photos
Street View
Street
Map
1 1
1 of 2
Videos
Matterport 3D Exterior
Matterport 3D Tour
Photos
Street View
Street
Map
1 of 1
Presented by
"75009 Paris"
Already a member? Log In
Hmm, there seems to have been an error sending your message. Please try again.
Thanks! Your message was sent.

