Your email has been sent.
Highlights
- Building offers ample covered, garage parking including a four-level underground lot.
- Professional on site management, security system and controlled access are available.
- In one of Houston's most prestigious locales, with walking amenities nearby, including restaurants, grocery stores and retail options
- Highly accessible to Loop 610, I-10, and U.S. 59, and only minutes from downtown via the Woodway/Memorial route.
- Tenants receive access to shared conferencing facility and break room with convenience store items on-site.
- The atrium building brings in natural light and open space
All Available Spaces(10)
Display Rental Rate as
- Space
- Size
- Term
- Rental Rate
- Space Use
- Build-Out
- Available
Located just minutes from Loop 610, I-10, and Memorial Drive, 7660 Woodway offers exceptional connectivity to Houston’s major business districts and downtown. The surrounding area provides abundant dining, retail, and fitness options, making it an attractive choice for businesses seeking accessibility and a vibrant work environment.
- Rate includes utilities, building services and property expenses
- Conference Rooms
- Central Air Conditioning
- Private Restrooms
- Food Service
- Access to shared conferencing facilities
- Fully Built-Out as Standard Office
- Space is in Excellent Condition
- Reception Area
- Security System
- Located in Houston’s prestigious Galleria
- Tenant lounge
- Rate includes utilities, building services and property expenses
- Rate includes utilities, building services and property expenses
- Space is in Excellent Condition
- Rate includes utilities, building services and property expenses
- 5 Private Offices
- Space is in Excellent Condition
- Fully Built-Out as Standard Office
- 5 Workstations
- Rate includes utilities, building services and property expenses
- Office intensive layout
- Fully Built-Out as Standard Office
- Space is in Excellent Condition
- Rate includes utilities, building services and property expenses
- Fully Built-Out as Standard Office
- Office intensive layout
- Rate includes utilities, building services and property expenses
- Rate includes utilities, building services and property expenses
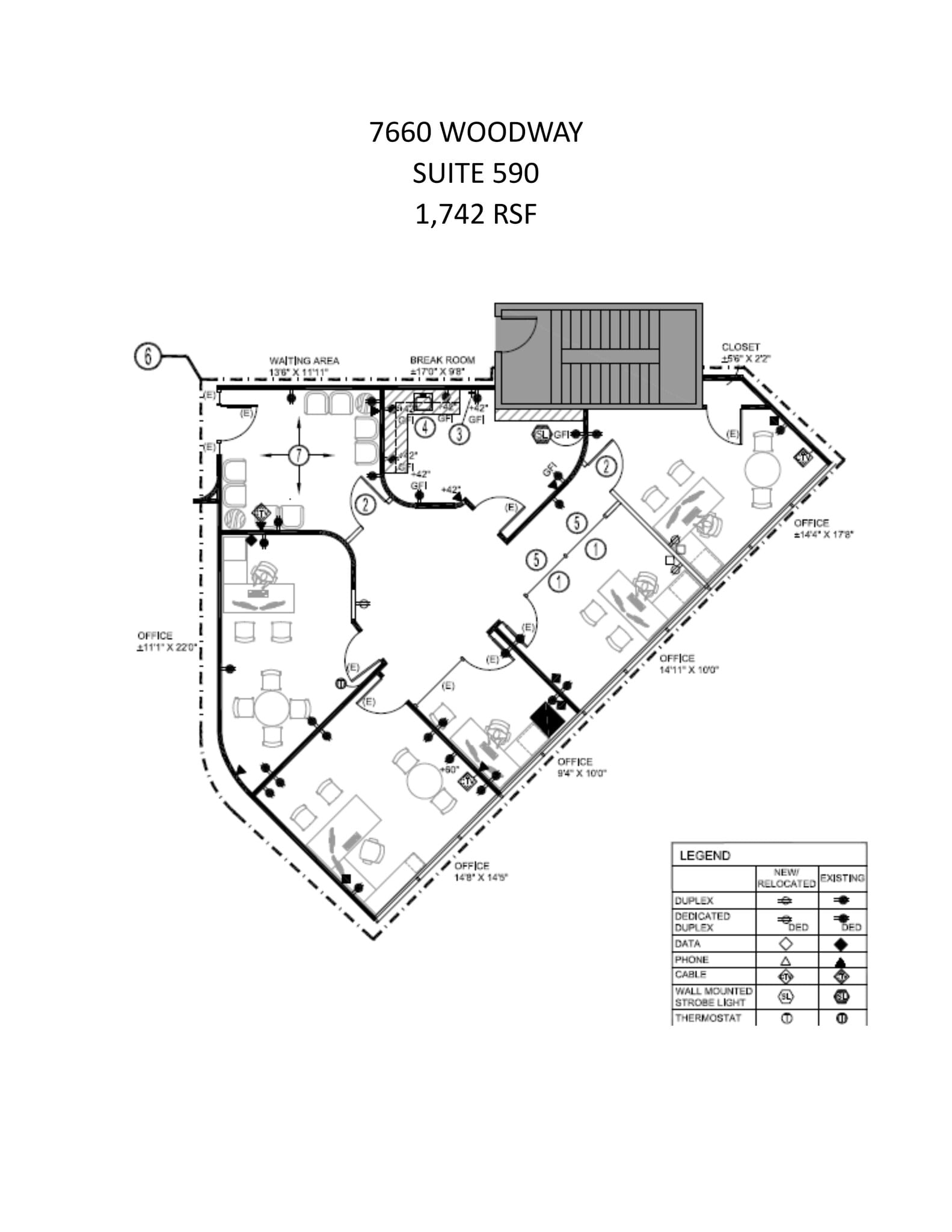
Waiting area, conference, break and 4 offices. Lots of glass throughout!
- Rate includes utilities, building services and property expenses
| Space | Size | Term | Rental Rate | Space Use | Build-Out | Available |
| 3rd Floor, Ste 310 | 562 SF | Negotiable | Upon Request Upon Request Upon Request Upon Request | Office | Full Build-Out | Now |
| 3rd Floor, Ste 312 | 1,131 SF | Negotiable | Upon Request Upon Request Upon Request Upon Request | Office | - | Now |
| 3rd Floor, Ste 385 | 2,260 SF | Negotiable | Upon Request Upon Request Upon Request Upon Request | Office | - | Now |
| 3rd Floor, Ste 390 | 993 SF | Negotiable | Upon Request Upon Request Upon Request Upon Request | Office | Full Build-Out | 30 Days |
| 4th Floor, Ste 465 | 2,974 SF | Negotiable | Upon Request Upon Request Upon Request Upon Request | Office | Full Build-Out | Now |
| 4th Floor, Ste 470A | 3,470 SF | Negotiable | Upon Request Upon Request Upon Request Upon Request | Office | - | Now |
| 5th Floor, Ste 540 | 6,978 SF | Negotiable | Upon Request Upon Request Upon Request Upon Request | Office | Full Build-Out | Now |
| 5th Floor, Ste 583 | 921 SF | Negotiable | Upon Request Upon Request Upon Request Upon Request | Office | - | Now |
| 5th Floor, Ste 584 | 750 SF | Negotiable | Upon Request Upon Request Upon Request Upon Request | Office | - | Now |
| 5th Floor, Ste 590 | 1,742 SF | Negotiable | Upon Request Upon Request Upon Request Upon Request | Office | - | Now |
3rd Floor, Ste 310
| Size |
| 562 SF |
| Term |
| Negotiable |
| Rental Rate |
| Upon Request Upon Request Upon Request Upon Request |
| Space Use |
| Office |
| Build-Out |
| Full Build-Out |
| Available |
| Now |
3rd Floor, Ste 312
| Size |
| 1,131 SF |
| Term |
| Negotiable |
| Rental Rate |
| Upon Request Upon Request Upon Request Upon Request |
| Space Use |
| Office |
| Build-Out |
| - |
| Available |
| Now |
3rd Floor, Ste 385
| Size |
| 2,260 SF |
| Term |
| Negotiable |
| Rental Rate |
| Upon Request Upon Request Upon Request Upon Request |
| Space Use |
| Office |
| Build-Out |
| - |
| Available |
| Now |
3rd Floor, Ste 390
| Size |
| 993 SF |
| Term |
| Negotiable |
| Rental Rate |
| Upon Request Upon Request Upon Request Upon Request |
| Space Use |
| Office |
| Build-Out |
| Full Build-Out |
| Available |
| 30 Days |
4th Floor, Ste 465
| Size |
| 2,974 SF |
| Term |
| Negotiable |
| Rental Rate |
| Upon Request Upon Request Upon Request Upon Request |
| Space Use |
| Office |
| Build-Out |
| Full Build-Out |
| Available |
| Now |
4th Floor, Ste 470A
| Size |
| 3,470 SF |
| Term |
| Negotiable |
| Rental Rate |
| Upon Request Upon Request Upon Request Upon Request |
| Space Use |
| Office |
| Build-Out |
| - |
| Available |
| Now |
5th Floor, Ste 540
| Size |
| 6,978 SF |
| Term |
| Negotiable |
| Rental Rate |
| Upon Request Upon Request Upon Request Upon Request |
| Space Use |
| Office |
| Build-Out |
| Full Build-Out |
| Available |
| Now |
5th Floor, Ste 583
| Size |
| 921 SF |
| Term |
| Negotiable |
| Rental Rate |
| Upon Request Upon Request Upon Request Upon Request |
| Space Use |
| Office |
| Build-Out |
| - |
| Available |
| Now |
5th Floor, Ste 584
| Size |
| 750 SF |
| Term |
| Negotiable |
| Rental Rate |
| Upon Request Upon Request Upon Request Upon Request |
| Space Use |
| Office |
| Build-Out |
| - |
| Available |
| Now |
5th Floor, Ste 590
| Size |
| 1,742 SF |
| Term |
| Negotiable |
| Rental Rate |
| Upon Request Upon Request Upon Request Upon Request |
| Space Use |
| Office |
| Build-Out |
| - |
| Available |
| Now |
3rd Floor, Ste 310
| Size | 562 SF |
| Term | Negotiable |
| Rental Rate | Upon Request |
| Space Use | Office |
| Build-Out | Full Build-Out |
| Available | Now |
Located just minutes from Loop 610, I-10, and Memorial Drive, 7660 Woodway offers exceptional connectivity to Houston’s major business districts and downtown. The surrounding area provides abundant dining, retail, and fitness options, making it an attractive choice for businesses seeking accessibility and a vibrant work environment.
- Rate includes utilities, building services and property expenses
- Fully Built-Out as Standard Office
- Conference Rooms
- Space is in Excellent Condition
- Central Air Conditioning
- Reception Area
- Private Restrooms
- Security System
- Food Service
- Located in Houston’s prestigious Galleria
- Access to shared conferencing facilities
- Tenant lounge
3rd Floor, Ste 312
| Size | 1,131 SF |
| Term | Negotiable |
| Rental Rate | Upon Request |
| Space Use | Office |
| Build-Out | - |
| Available | Now |
- Rate includes utilities, building services and property expenses
3rd Floor, Ste 385
| Size | 2,260 SF |
| Term | Negotiable |
| Rental Rate | Upon Request |
| Space Use | Office |
| Build-Out | - |
| Available | Now |
- Rate includes utilities, building services and property expenses
- Space is in Excellent Condition
3rd Floor, Ste 390
| Size | 993 SF |
| Term | Negotiable |
| Rental Rate | Upon Request |
| Space Use | Office |
| Build-Out | Full Build-Out |
| Available | 30 Days |
- Rate includes utilities, building services and property expenses
- Fully Built-Out as Standard Office
- 5 Private Offices
- 5 Workstations
- Space is in Excellent Condition
4th Floor, Ste 465
| Size | 2,974 SF |
| Term | Negotiable |
| Rental Rate | Upon Request |
| Space Use | Office |
| Build-Out | Full Build-Out |
| Available | Now |
- Rate includes utilities, building services and property expenses
- Fully Built-Out as Standard Office
- Office intensive layout
- Space is in Excellent Condition
4th Floor, Ste 470A
| Size | 3,470 SF |
| Term | Negotiable |
| Rental Rate | Upon Request |
| Space Use | Office |
| Build-Out | - |
| Available | Now |
- Rate includes utilities, building services and property expenses
5th Floor, Ste 540
| Size | 6,978 SF |
| Term | Negotiable |
| Rental Rate | Upon Request |
| Space Use | Office |
| Build-Out | Full Build-Out |
| Available | Now |
- Fully Built-Out as Standard Office
- Office intensive layout
5th Floor, Ste 583
| Size | 921 SF |
| Term | Negotiable |
| Rental Rate | Upon Request |
| Space Use | Office |
| Build-Out | - |
| Available | Now |
- Rate includes utilities, building services and property expenses
5th Floor, Ste 584
| Size | 750 SF |
| Term | Negotiable |
| Rental Rate | Upon Request |
| Space Use | Office |
| Build-Out | - |
| Available | Now |
- Rate includes utilities, building services and property expenses
5th Floor, Ste 590
| Size | 1,742 SF |
| Term | Negotiable |
| Rental Rate | Upon Request |
| Space Use | Office |
| Build-Out | - |
| Available | Now |
Waiting area, conference, break and 4 offices. Lots of glass throughout!
- Rate includes utilities, building services and property expenses
Property Overview
7660 Woodway is a top-tier Class B suburban property located in the prestigious Galleria/Uptown submarket, one of Houston's preferred submarkets, second in size behind the CBD, and is the eighth largest submarket in the country. The property is located along the winding banks of the Buffalo Bayou. The unique structure forms a slender and graceful trapezoid. Dark bronze, solar-cool glass covers the angular exterior, reflecting nature's greenery. Raised front wing forms a dramatic, triangular canopy over the entrance and inside, five-story atrium, a second three-story atrium is in the in the rear of the building, providing light, landscaping, and open space. The property has gone through renovations including the following: brand new HVAC System, brand new roof, restrooms, elevator cabs, updated shared conference room and break-room with market items.
- 24 Hour Access
- Atrium
- Controlled Access
- Conferencing Facility
- Food Service
- Property Manager on Site
- Security System
- Natural Light
- Plug & Play
- Monument Signage
Property Facts
Presented by
7660 Woodway | Private Office Space
Hmm, there seems to have been an error sending your message. Please try again.
Thanks! Your message was sent.





















