Log In/Sign Up
Your email has been sent.
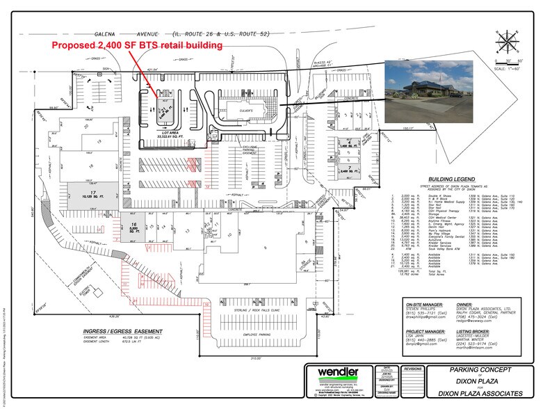
Proposed Outlot BTS
Dixon, IL 61021
Dixon Plaza Outlot · Retail Property For Sale


Investment Highlights
- Will BTS 2,400 +/- SF Out Lot Building, Adjacent to Culvers.
- Frontage on Galena Avenue Retail Corridor
- Dixon Plaza Retail Center with anchors Anytime Fitness, AutoZone, Pam's Hallmark, and CGH Medical Center.
Executive Summary
Outlot Building (will build to suit) available next to Culvers: 2,400 +/- SF Proposed. Center Anchors - Anytime Fitness, AutoZone, Pam's Hallmark, CGH Medical Center.
Property Facts
Sale Type
Investment
Sale Condition
Build to Suit
Property Type
Retail
Property Subtype
Building Size
2,400 SF
Building Class
C
Construction Status
Proposed
Percent Leased
100%
Building Height
1 Story
Property Taxes
| Parcel Number | 07-02-30-477-016 | Improvements Assessment | $1,404,345 CAD |
| Land Assessment | $401,241 CAD | Total Assessment | $1,805,586 CAD |
Property Taxes
Parcel Number
07-02-30-477-016
Land Assessment
$401,241 CAD
Improvements Assessment
$1,404,345 CAD
Total Assessment
$1,805,586 CAD
1 of 8
Videos
Matterport 3D Exterior
Matterport 3D Tour
Photos
Street View
Street
Map
