Your email has been sent.
76000 Rouen 9,007 SF of Office Space Available



Some information has been automatically translated.
Highlights
- Availability: Approximately 24 months after renovation work.
All Available Spaces(2)
Display Rental Rate as
- Space
- Size
- Term
-
Rental Rate
- Space Use
- Build-Out
- Available
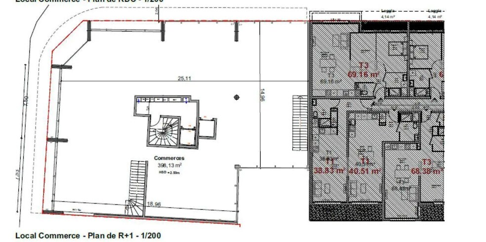
Local commercial réparti sur deux niveaux, offrant une surface totale d'environ 836 m² sur une artère très fréquentée du centre-ville de Rouen. Situés à côté des arrêts de bus TEOR, ces locaux sont idéaux pour un commerce de détail, un cabinet médical ou un centre de formation. BNP PARIBAS REAL ESTATE propose à la location des locaux commerciaux d'une superficie totale d'environ 836 m², idéalement situés sur un axe stratégique à fort trafic, offrant une excellente visibilité à tous les types d'entreprises recevant du public (ERP). Les locaux sont livrés sous forme de coque, avec les services publics prêts à être connectés et les vitrines installées. Idéal pour aménager votre projet selon vos besoins !
- Delivered in case form: perfect for the person
Local commercial réparti sur deux niveaux, offrant une surface totale d'environ 836 m² sur une artère très fréquentée du centre-ville de Rouen. Situés à côté des arrêts de bus TEOR, ces locaux sont idéaux pour un commerce de détail, un cabinet médical ou un centre de formation. BNP PARIBAS REAL ESTATE propose à la location des locaux commerciaux d'une superficie totale d'environ 836 m², idéalement situés sur un axe stratégique à fort trafic, offrant une excellente visibilité à tous les types d'entreprises recevant du public (ERP). Les locaux sont livrés sous forme de coque, avec les services publics prêts à être connectés et les vitrines installées. Idéal pour aménager votre projet selon vos besoins !
- Delivered in case form: perfect for the person
| Space | Size | Term | Rental Rate | Space Use | Build-Out | Available |
| Ground, Ste OLBUR2534169/1 - 90 | 4,725 SF | Negotiable | $26.26 CAD/SF/YR HT-HC $2.19 CAD/SF/MO HT-HC $124,085 CAD/YR HT-HC $10,340 CAD/MO HT-HC | Office | Shell Space | TBD |
| 1st Floor, Ste OLBUR2534169/1 - 90 | 4,284 SF | Negotiable | $26.26 CAD/SF/YR HT-HC $2.19 CAD/SF/MO HT-HC $112,496 CAD/YR HT-HC $9,375 CAD/MO HT-HC | Office | Shell Space | TBD |
Ground, Ste OLBUR2534169/1 - 90
| Size |
| 4,725 SF |
| Term |
| Negotiable |
|
Rental Rate
|
| $26.26 CAD/SF/YR HT-HC $2.19 CAD/SF/MO HT-HC $124,085 CAD/YR HT-HC $10,340 CAD/MO HT-HC |
| Space Use |
| Office |
| Build-Out |
| Shell Space |
| Available |
| TBD |
1st Floor, Ste OLBUR2534169/1 - 90
| Size |
| 4,284 SF |
| Term |
| Negotiable |
|
Rental Rate
|
| $26.26 CAD/SF/YR HT-HC $2.19 CAD/SF/MO HT-HC $112,496 CAD/YR HT-HC $9,375 CAD/MO HT-HC |
| Space Use |
| Office |
| Build-Out |
| Shell Space |
| Available |
| TBD |
Ground, Ste OLBUR2534169/1 - 90
| Size | 4,725 SF |
| Term | Negotiable |
|
Rental Rate
|
$26.26 CAD/SF/YR HT-HC |
| Space Use | Office |
| Build-Out | Shell Space |
| Available | TBD |
Local commercial réparti sur deux niveaux, offrant une surface totale d'environ 836 m² sur une artère très fréquentée du centre-ville de Rouen. Situés à côté des arrêts de bus TEOR, ces locaux sont idéaux pour un commerce de détail, un cabinet médical ou un centre de formation. BNP PARIBAS REAL ESTATE propose à la location des locaux commerciaux d'une superficie totale d'environ 836 m², idéalement situés sur un axe stratégique à fort trafic, offrant une excellente visibilité à tous les types d'entreprises recevant du public (ERP). Les locaux sont livrés sous forme de coque, avec les services publics prêts à être connectés et les vitrines installées. Idéal pour aménager votre projet selon vos besoins !
- Delivered in case form: perfect for the person
1st Floor, Ste OLBUR2534169/1 - 90
| Size | 4,284 SF |
| Term | Negotiable |
|
Rental Rate
|
$26.26 CAD/SF/YR HT-HC |
| Space Use | Office |
| Build-Out | Shell Space |
| Available | TBD |
Local commercial réparti sur deux niveaux, offrant une surface totale d'environ 836 m² sur une artère très fréquentée du centre-ville de Rouen. Situés à côté des arrêts de bus TEOR, ces locaux sont idéaux pour un commerce de détail, un cabinet médical ou un centre de formation. BNP PARIBAS REAL ESTATE propose à la location des locaux commerciaux d'une superficie totale d'environ 836 m², idéalement situés sur un axe stratégique à fort trafic, offrant une excellente visibilité à tous les types d'entreprises recevant du public (ERP). Les locaux sont livrés sous forme de coque, avec les services publics prêts à être connectés et les vitrines installées. Idéal pour aménager votre projet selon vos besoins !
- Delivered in case form: perfect for the person
Property Overview
Discover this brand-new commercial development ideally located in the heart of Rouen city center, positioned on a high‑traffic thoroughfare offering exceptional visibility. Situated just steps away from the TEOR bus stops, these premises benefit from a constant flow of pedestrians and public transport users, making them perfectly suited for a retail business, medical or paramedical practice, or training center. Designed to accommodate a wide range of operations open to the public (ERP), the property’s strategic location ensures outstanding exposure for your future activity. The premises are delivered as a shell, giving you the freedom to design and tailor the interior entirely to your needs. Storefront windows are already installed, and all utilities are ready for connection, allowing for a smooth and efficient fit‑out process.
Property Facts
Presented by
"76000 Rouen"
Hmm, there seems to have been an error sending your message. Please try again.
Thanks! Your message was sent.
