Log In/Sign Up
Your email has been sent.
Rue Molière 3,046 SF Office Condo Unit Offered at $2,888,813 CAD in 69006 Lyon



Some information has been automatically translated.
Investment Highlights
- Ensemble de bureaux rénovés par architecte
- Adresse prestigieuse au cœur du 6e arrondissement de Lyon
- Prestations haut de gamme : climatisation réversible, fibre, parquet, alarme
Executive Summary
The property is located in an upscale Haussmann-style building dating from 1900, whose common areas and façades have just been renovated. The condominium is elegant, well maintained, and reflects the prestige of the neighborhood. The set-back courtyard-facing premises ensure peace and privacy while benefiting from a sought-after location in the immediate vicinity of the shops, services, and public transportation of the 6th arrondissement.
1 Unit Available
- Unit
- Unit Size
- Condo Use
- Price
- NOI
| Sale Type | Investment or Owner User | Agency Fee | 3.00% of sale price |
| Sale Type | Investment or Owner User |
| Agency Fee | 3.00% of sale price |
Description
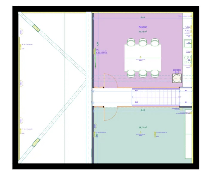
Cet ensemble de bureaux développe une surface totale d’environ 283 m², répartie sur trois niveaux, au calme d’une cour intérieure, au sein d’un immeuble haussmannien de grand standing.
Rez-de-chaussée
Entrée spacieuse toute hauteur, offrant une première impression qualitative
4 bureaux fermés :
2 bureaux doubles (2 postes chacun)
2 bureaux individuels
Cuisine moderne avec espace lounge, pouvant faire office de salle de réunion (8 personnes)
Espace sanitaires comprenant 3 WC
1er étage
3 bureaux doubles
Grand open space pouvant accueillir jusqu’à 12 postes de travail
2? étage
Bureau de direction d’environ 24 m²
Salle de réunion (capacité 10 personnes) avec seconde cuisine
Espace détente
L’ensemble permet l’implantation d’environ 26 postes de travail, dans une configuration fonctionnelle et évolutive.
Rez-de-chaussée
Entrée spacieuse toute hauteur, offrant une première impression qualitative
4 bureaux fermés :
2 bureaux doubles (2 postes chacun)
2 bureaux individuels
Cuisine moderne avec espace lounge, pouvant faire office de salle de réunion (8 personnes)
Espace sanitaires comprenant 3 WC
1er étage
3 bureaux doubles
Grand open space pouvant accueillir jusqu’à 12 postes de travail
2? étage
Bureau de direction d’environ 24 m²
Salle de réunion (capacité 10 personnes) avec seconde cuisine
Espace détente
L’ensemble permet l’implantation d’environ 26 postes de travail, dans une configuration fonctionnelle et évolutive.
Sale Notes
Opportunité rare sur le marché lyonnais : bureaux de caractère situés rue Molière, au cœur du très recherché 6? arrondissement de Lyon, alliant cachet de l’ancien et prestations contemporaines haut de gamme.
Entièrement rénové par un architecte, ce bien bénéficie d’une rénovation lourde réalisée avec des matériaux nobles (bois, béton, pierre, verre), offrant un environnement de travail élégant, inspirant et immédiatement opérationnel. Implantés en retrait sur cour intérieure, les bureaux profitent d’un calme absolu, tout en étant à proximité immédiate des commerces, services et transports.
L’immeuble haussmannien, parfaitement entretenu, a récemment fait l’objet d’une rénovation complète de ses façades, renforçant encore l’attractivité patrimoniale du bien. Les charges de copropriété maîtrisées et la faible taxe foncière constituent un atout supplémentaire.
Sans aucun travaux à prévoir, ces bureaux s’adressent idéalement à des professions libérales, cabinets de conseil, agences ou sièges de sociétés recherchant un emplacement prestigieux et une image de marque forte.
Entièrement rénové par un architecte, ce bien bénéficie d’une rénovation lourde réalisée avec des matériaux nobles (bois, béton, pierre, verre), offrant un environnement de travail élégant, inspirant et immédiatement opérationnel. Implantés en retrait sur cour intérieure, les bureaux profitent d’un calme absolu, tout en étant à proximité immédiate des commerces, services et transports.
L’immeuble haussmannien, parfaitement entretenu, a récemment fait l’objet d’une rénovation complète de ses façades, renforçant encore l’attractivité patrimoniale du bien. Les charges de copropriété maîtrisées et la faible taxe foncière constituent un atout supplémentaire.
Sans aucun travaux à prévoir, ces bureaux s’adressent idéalement à des professions libérales, cabinets de conseil, agences ou sièges de sociétés recherchant un emplacement prestigieux et une image de marque forte.
| Unit | Unit Size | Condo Use | Price | NOI |
| Unit Lot 1 | 3,046 SF | Office | $2,888,813 CAD ($948.40 CAD/SF) | - |
Unit Lot 1
| Unit Size |
| 3,046 SF |
| Condo Use |
| Office |
| Price |
| $2,888,813 CAD ($948.40 CAD/SF) |
| NOI |
| - |
1 of 9
Videos
Matterport 3D Exterior
Matterport 3D Tour
Photos
Street View
Street
Map
Unit Lot 1
| Unit Size | 3,046 SF |
| Condo Use | Office |
| Price | $2,888,813 CAD ($948.40 CAD/SF) |
| NOI | - |
| Sale Type | Investment or Owner User |
| Agency Fee | 3.00% of sale price |
| Description | |
| Cet ensemble de bureaux développe une surface totale d’environ 283 m², répartie sur trois niveaux, au calme d’une cour intérieure, au sein d’un immeuble haussmannien de grand standing.<br> <br> Rez-de-chaussée<br> <br> Entrée spacieuse toute hauteur, offrant une première impression qualitative<br> <br> 4 bureaux fermés :<br> <br> 2 bureaux doubles (2 postes chacun)<br> <br> 2 bureaux individuels<br> <br> Cuisine moderne avec espace lounge, pouvant faire office de salle de réunion (8 personnes)<br> <br> Espace sanitaires comprenant 3 WC<br> <br> 1er étage<br> <br> 3 bureaux doubles<br> <br> Grand open space pouvant accueillir jusqu’à 12 postes de travail<br> <br> 2? étage<br> <br> Bureau de direction d’environ 24 m²<br> <br> Salle de réunion (capacité 10 personnes) avec seconde cuisine<br> <br> Espace détente<br> <br> L’ensemble permet l’implantation d’environ 26 postes de travail, dans une configuration fonctionnelle et évolutive.</li></ul> | |
| Sale Notes | |
| Opportunité rare sur le marché lyonnais : bureaux de caractère situés rue Molière, au cœur du très recherché 6? arrondissement de Lyon, alliant cachet de l’ancien et prestations contemporaines haut de gamme.<br> <br> Entièrement rénové par un architecte, ce bien bénéficie d’une rénovation lourde réalisée avec des matériaux nobles (bois, béton, pierre, verre), offrant un environnement de travail élégant, inspirant et immédiatement opérationnel. Implantés en retrait sur cour intérieure, les bureaux profitent d’un calme absolu, tout en étant à proximité immédiate des commerces, services et transports.<br> <br> L’immeuble haussmannien, parfaitement entretenu, a récemment fait l’objet d’une rénovation complète de ses façades, renforçant encore l’attractivité patrimoniale du bien. Les charges de copropriété maîtrisées et la faible taxe foncière constituent un atout supplémentaire.<br> <br> Sans aucun travaux à prévoir, ces bureaux s’adressent idéalement à des professions libérales, cabinets de conseil, agences ou sièges de sociétés recherchant un emplacement prestigieux et une image de marque forte.</li></ul> |
Property Facts
The following property facts and amenities apply to the entire building. Details for individual condo units may vary and are listed in the unit information above.
| Total Building Size | 10,000 - 60,000 SF | Building Class | B |
| Property Type | Multifamily (Condo) | Floors | 6 |
| Property Subtype | Apartment | Year Built | 1890 - 1899 |
| Total Building Size | 10,000 - 60,000 SF |
| Property Type | Multifamily (Condo) |
| Property Subtype | Apartment |
| Building Class | B |
| Floors | 6 |
| Year Built | 1890 - 1899 |
Amenities
Site Amenities
- Security System
- On-Site Retail
- Fiber Optic Internet
Unit Mix Information
| Description | No. Units | Avg. Rent/Mo | SF |
|---|---|---|---|
| Studios | 15 | - | - |
1 1
1 of 6
Videos
Matterport 3D Exterior
Matterport 3D Tour
Photos
Street View
Street
Map
1 of 1
Presented by
Rue Molière
Already a member? Log In
Hmm, there seems to have been an error sending your message. Please try again.
Thanks! Your message was sent.


