Your email has been sent.
Apline Ridge Center SEC Kyle Canyon Rd & Alpine Ridge Way rd 1,500 - 8,700 SF of Retail Space Available in Las Vegas, NV 89143



Highlights
- Easy Access to US-95 Highway
- Rare Entitlements for Gas Station and Drive Thru Restaurant
Space Availability (3)
Display Rental Rate as
- Space
- Size
- Term
- Rental Rate
- Rent Type
| Space | Size | Term | Rental Rate | Rent Type | ||
| 1st Floor, Ste Bldg A - QSR | 2,200 SF | 10-20 Years | Upon Request Upon Request Upon Request Upon Request | Triple Net (NNN) | ||
| 1st Floor, Ste Bldg B - Coffee/Bev | 1,500 SF | 10-20 Years | Upon Request Upon Request Upon Request Upon Request | Negotiable | ||
| 1st Floor, Ste Bldg C - Gas Station | 5,000 SF | Negotiable | Upon Request Upon Request Upon Request Upon Request | Negotiable |
SEC Kyle Canyon Rd & Alpine Ridge Way rd - 1st Floor - Ste Bldg A - QSR
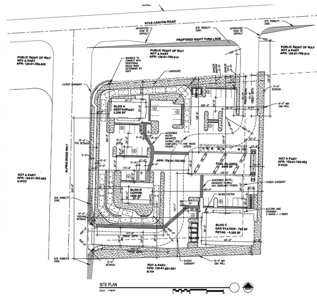
Building A is for a proposed 2,200sf freestanding building with drive thru. Ideal for QSR and/or Fast Food users. The parcel size is roughly .5ac. Ownership is strictly looking for Ground Leases with National Tenants at this time.
- Lease rate does not include utilities, property expenses or building services
- Space is an outparcel at this property
- Strong Visibility from Main Roads
SEC Kyle Canyon Rd & Alpine Ridge Way Rd - 1st Floor - Ste Bldg B - Coffee/Bev
Building B is for a proposed 1,500sf freestanding building with drive thru. Ideal for Coffee/Beverage and/or Fast Food users. The parcel size is roughly .5ac. Ownership is strictly looking for Ground Leases with National Tenants at this time.
- Space is an outparcel at this property
- Drive Thru
- Strong Visibility from Main Roads
SEC Kyle Canyon Rd & Alpine Ridge Way Rd - 1st Floor - Ste Bldg C - Gas Station
Building C is for a planned Gas Station/C-store and is on roughly 1.5ac. Ownership is looking to Ground Lease the site to a National user. Already has entitlements.
- Space is an outparcel at this property
- Space is in Excellent Condition
- Central Air and Heating
- Strong visibility from main roads
Rent Types
The rent amount and type that the tenant (lessee) will be responsible to pay to the landlord (lessor) throughout the lease term is negotiated prior to both parties signing a lease agreement. The rent type will vary depending upon the services provided. For example, triple net rents are typically lower than full service rents due to additional expenses the tenant is required to pay in addition to the base rent. Contact the listing broker for a full understanding of any associated costs or additional expenses for each rent type.
1. Full Service: A rental rate that includes normal building standard services as provided by the landlord within a base year rental.
2. Double Net (NN): Tenant pays for only two of the building expenses; the landlord and tenant determine the specific expenses prior to signing the lease agreement.
3. Triple Net (NNN): A lease in which the tenant is responsible for all expenses associated with their proportional share of occupancy of the building.
4. Modified Gross: Modified Gross is a general type of lease rate where typically the tenant will be responsible for their proportional share of one or more of the expenses. The landlord will pay the remaining expenses. See the below list of common Modified Gross rental rate structures: 4. Plus All Utilities: A type of Modified Gross Lease where the tenant is responsible for their proportional share of utilities in addition to the rent. 4. Plus Cleaning: A type of Modified Gross Lease where the tenant is responsible for their proportional share of cleaning in addition to the rent. 4. Plus Electric: A type of Modified Gross Lease where the tenant is responsible for their proportional share of the electrical cost in addition to the rent. 4. Plus Electric & Cleaning: A type of Modified Gross Lease where the tenant is responsible for their proportional share of the electrical and cleaning cost in addition to the rent. 4. Plus Utilities and Char: A type of Modified Gross Lease where the tenant is responsible for their proportional share of the utilities and cleaning cost in addition to the rent. 4. Industrial Gross: A type of Modified Gross lease where the tenant pays one or more of the expenses in addition to the rent. The landlord and tenant determine these prior to signing the lease agreement.
5. Tenant Electric: The landlord pays for all services and the tenant is responsible for their usage of lights and electrical outlets in the space they occupy.
6. Negotiable or Upon Request: Used when the leasing contact does not provide the rent or service type.
7. TBD: To be determined; used for buildings for which no rent or service type is known, commonly utilized when the buildings are not yet built.
Property Facts
| Total Space Available | 8,700 SF | Frontage | 325’ on Kyle Canyon Rd |
| Center Type | Strip Center | Gross Leasable Area | 8,700 SF |
| Stores | 1 | Total Land Area | 7.44 AC |
| Center Properties | 3 | Year Built | 2026 |
| Total Space Available | 8,700 SF |
| Center Type | Strip Center |
| Stores | 1 |
| Center Properties | 3 |
| Frontage | 325’ on Kyle Canyon Rd |
| Gross Leasable Area | 8,700 SF |
| Total Land Area | 7.44 AC |
| Year Built | 2026 |
About the Property
Alpine Ridge Center is located on the SEC of Kyle Canyon Rd and Alpine Ridge Way in Northwest Las Vegas. The site has entitlements for Fuel/C-store as well as two drive thru pads. Ownership's preference is a Ground Lease but may consider a RBTS as well. This is one of very few locations in the trade area with Clark County zoning and ability to have multiple drive thru's and a Fuel user.
Nearby Major Retailers
Presented by
Apline Ridge Center | SEC Kyle Canyon Rd & Alpine Ridge Way rd
Hmm, there seems to have been an error sending your message. Please try again.
Thanks! Your message was sent.




