Log In/Sign Up
Your email has been sent.
LOT Available
Display Rental Rate as
| Rental Rate |
|
Lot Size | 3.44 AC |
| Lease Term | Negotiable |
| Rental Rate | |
| Lease Term | Negotiable |
| Lot Size | 3.44 AC |
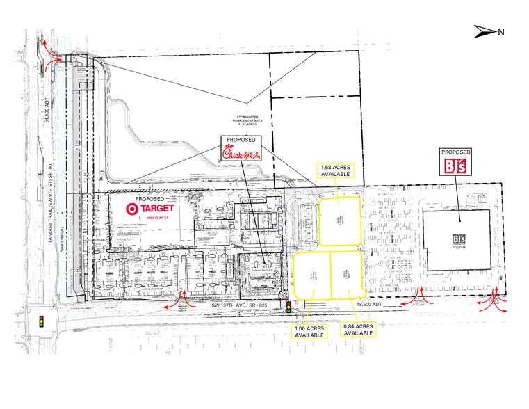
The project will be anchored by BJ’s Wholesale Club and shadow anchored by Target located at the NW quadrant of SW 8th St (Tamiami Trail) and SW 137th Ave This is strategically positioned to capture the under-serviced market of West Miami and will benefit from its regional access to the Dolphin Expwy (836) & Florida’s Turnpike 15+ Acres; 150,000 SF proposed retail Pad sites available Projected Delivery: 4th Qtr 2026
Property Facts
1 1
1 of 4
Videos
Matterport 3D Exterior
Matterport 3D Tour
Photos
Street View
Street
Map
1 of 1
Presented by
SW 137th Ave
Already a member? Log In
Hmm, there seems to have been an error sending your message. Please try again.
Thanks! Your message was sent.



