Your email has been sent.
Fully Entitled Drive Thru PAD - 53K VPD SWC Ellsworth & Broadway 0.64 Acres of Commercial Land for Lease in Mesa, AZ 85208



Highlights
- C-2 Zoning & Fully Entitled Drive-Thru: A rare, immediate opportunity for drive-thrus, coffee, or auto uses that captures maximum commuter flow before
- Strong Neighborhood Demographics: Serving an established population of over 130,000 with an average household income exceeding $73,000 within a 3-mile
- A 4% Co-Broke is Proudly Offered to Procuring Brokers.
- High-Traffic Location: Over 53,000 VPD at the SWC of Ellsworth & Broadway. Excellent visibility from both major thoroughfares.
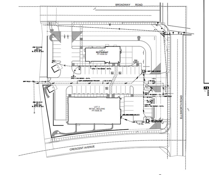
- Co-Tenancy & Access: Part of a 2-tenant development with Jack in the Box. Full ingress/egress from both Broadway and Ellsworth. Other intersection ten
LOT Available
Display Rental Rate as
| Rental Rate |
|
Lot Size | 0.64 AC |
| Lease Term | Negotiable |
| Rental Rate | |
| Lease Term | Negotiable |
| Lot Size | 0.64 AC |
Over 53,000 Vehicles Per Day at this Extremely High-Trafficked Hard Corner Allowing for Drive-Thru, Automotive Repair/Oil Change and up to 8,000 Square Feet of Retail. Extremely well-located pad on the SWC corner of Ellsworth and Broadway, with high traffic count, and great access to the Red Mountain (202) Freeway. Shared utility, access and cross-parking easements with Jack in the Box; opposite neighborhood shopping center anchored by Fry’s Groceries and Circle K on the SEC; CVS located on the NEC. Available for ground lease, build to suit or reverse build to suit with flexible terms and a 4% Co-Broker Fee. Capitalize on the traffic flow: Located strategically above the traffic dead zone to the south, this pad is fully entitled for a drive-thru with a concept site plan already approved by Maricopa County.
Property Overview
Commercial Pad available for Ground Lease, BTS or Reverse BTS. Extremely well-located pad on the SWC corner of Ellsworth and Broadway, with 53,000 vehicles per day, and closest access to the Red Mountain (202) Freeway. Immediately next to Jack in the Box; opposite neighborhood shopping center anchored by Fry's Groceries and Circle K on the SEC; CVS located on the NEC. Already approved for a concept site plan for a drive-thru restaurant/coffee or an 8,000 Sq Ft Retail Structure with Maricopa County, offering flexible lease terms. Perfect uses include Fast Food/QSR with Drive-Thru, or capitalizing on the lack of a coffee drive-thru in the immediate trade area. C-2 zoning (Maricopa County) allows general commercial uses including retail, offices, drive-through restaurants, and automotive services such as Oil Change and Repair. Unlike the traffic dead zone immediately south of the property, this pad offers a fully entitled drive-thru opportunity, ensuring your concept captures the full benefit of the 53,000+ vehicles per day without impedance.
Property Facts
Presented by
Fully Entitled Drive Thru PAD - 53K VPD | SWC Ellsworth & Broadway
Hmm, there seems to have been an error sending your message. Please try again.
Thanks! Your message was sent.

