Log In/Sign Up
Your email has been sent.
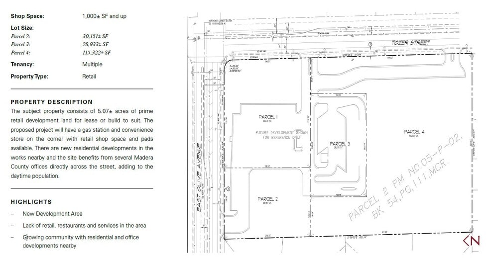
SWC Olive Avenue
Madera, CA 93637
Land For Lease


Highlights
- New Development Area
- Growing community with residential and office developments nearby
- Lack of retail, restaurants and services in the area
Property Facts
| Total Space Available | 5.07 AC | Proposed Use | Commercial |
| Property Type | Land | Cross Streets | Tozer Street |
| Property Subtype | Commercial |
| Total Space Available | 5.07 AC |
| Property Type | Land |
| Property Subtype | Commercial |
| Proposed Use | Commercial |
| Cross Streets | Tozer Street |
1 of 5
Videos
Matterport 3D Exterior
Matterport 3D Tour
Photos
Street View
Street
Map
