Your email has been sent.
The Houghton Centre Salthouse Rd 4,994 - 16,134 SF of Office Space Available in Northampton NN4 7EX


Highlights
- Excellent transport links
- Newly refurbished
- Industrial estate location
All Available Spaces(3)
Display Rental Rate as
- Space
- Size
- Term
- Rental Rate
- Space Use
- Build-Out
- Available
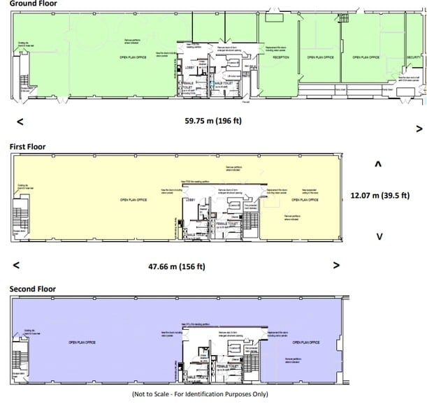
A modern three storey office building with passenger lift providing mostly open plan floors. The building has recently undergone a comprehensive refurbishment to include upgraded lighting, new carpets and redecoration. The ground floor benefits from a spacious reception. Disabled, male and female toilets are available on each floor and main offices on each floor are also fitted with tea station / kitchen units. Available as whole or on a floor-by-floor basis.
- Use Class: B2
- Open Floor Plan Layout
- Can be combined with additional space(s) for up to 16,134 SF of adjacent space
- Passenger lifts
- Spacious reception
- Partially Built-Out as Standard Office
- Fits 16 - 49 People
- Private Restrooms
- Recently refurbished
A modern three storey office building with passenger lift providing mostly open plan floors. The building has recently undergone a comprehensive refurbishment to include upgraded lighting, new carpets and redecoration. The ground floor benefits from a spacious reception. Disabled, male and female toilets are available on each floor and main offices on each floor are also fitted with tea station / kitchen units. Available as whole or on a floor-by-floor basis.
- Use Class: B2
- Open Floor Plan Layout
- Can be combined with additional space(s) for up to 16,134 SF of adjacent space
- Passenger lifts
- Spacious reception
- Partially Built-Out as Standard Office
- Fits 13 - 41 People
- Private Restrooms
- Recently refurbished
A modern three storey office building with passenger lift providing mostly open plan floors. The building has recently undergone a comprehensive refurbishment to include upgraded lighting, new carpets and redecoration. The ground floor benefits from a spacious reception. Disabled, male and female toilets are available on each floor and main offices on each floor are also fitted with tea station / kitchen units. Available as whole or on a floor-by-floor basis.
- Use Class: B2
- Open Floor Plan Layout
- Can be combined with additional space(s) for up to 16,134 SF of adjacent space
- Passenger lifts
- Spacious reception
- Partially Built-Out as Standard Office
- Fits 13 - 40 People
- Private Restrooms
- Recently refurbished
| Space | Size | Term | Rental Rate | Space Use | Build-Out | Available |
| Ground | 6,114 SF | Negotiable | $18.42 CAD/SF/YR $1.53 CAD/SF/MO $112,615 CAD/YR $9,385 CAD/MO | Office | Partial Build-Out | Now |
| 1st Floor | 5,026 SF | Negotiable | $18.42 CAD/SF/YR $1.53 CAD/SF/MO $92,575 CAD/YR $7,715 CAD/MO | Office | Partial Build-Out | Now |
| 2nd Floor | 4,994 SF | Negotiable | $18.42 CAD/SF/YR $1.53 CAD/SF/MO $91,986 CAD/YR $7,665 CAD/MO | Office | Partial Build-Out | Now |
Ground
| Size |
| 6,114 SF |
| Term |
| Negotiable |
| Rental Rate |
| $18.42 CAD/SF/YR $1.53 CAD/SF/MO $112,615 CAD/YR $9,385 CAD/MO |
| Space Use |
| Office |
| Build-Out |
| Partial Build-Out |
| Available |
| Now |
1st Floor
| Size |
| 5,026 SF |
| Term |
| Negotiable |
| Rental Rate |
| $18.42 CAD/SF/YR $1.53 CAD/SF/MO $92,575 CAD/YR $7,715 CAD/MO |
| Space Use |
| Office |
| Build-Out |
| Partial Build-Out |
| Available |
| Now |
2nd Floor
| Size |
| 4,994 SF |
| Term |
| Negotiable |
| Rental Rate |
| $18.42 CAD/SF/YR $1.53 CAD/SF/MO $91,986 CAD/YR $7,665 CAD/MO |
| Space Use |
| Office |
| Build-Out |
| Partial Build-Out |
| Available |
| Now |
Ground
| Size | 6,114 SF |
| Term | Negotiable |
| Rental Rate | $18.42 CAD/SF/YR |
| Space Use | Office |
| Build-Out | Partial Build-Out |
| Available | Now |
A modern three storey office building with passenger lift providing mostly open plan floors. The building has recently undergone a comprehensive refurbishment to include upgraded lighting, new carpets and redecoration. The ground floor benefits from a spacious reception. Disabled, male and female toilets are available on each floor and main offices on each floor are also fitted with tea station / kitchen units. Available as whole or on a floor-by-floor basis.
- Use Class: B2
- Partially Built-Out as Standard Office
- Open Floor Plan Layout
- Fits 16 - 49 People
- Can be combined with additional space(s) for up to 16,134 SF of adjacent space
- Private Restrooms
- Passenger lifts
- Recently refurbished
- Spacious reception
1st Floor
| Size | 5,026 SF |
| Term | Negotiable |
| Rental Rate | $18.42 CAD/SF/YR |
| Space Use | Office |
| Build-Out | Partial Build-Out |
| Available | Now |
A modern three storey office building with passenger lift providing mostly open plan floors. The building has recently undergone a comprehensive refurbishment to include upgraded lighting, new carpets and redecoration. The ground floor benefits from a spacious reception. Disabled, male and female toilets are available on each floor and main offices on each floor are also fitted with tea station / kitchen units. Available as whole or on a floor-by-floor basis.
- Use Class: B2
- Partially Built-Out as Standard Office
- Open Floor Plan Layout
- Fits 13 - 41 People
- Can be combined with additional space(s) for up to 16,134 SF of adjacent space
- Private Restrooms
- Passenger lifts
- Recently refurbished
- Spacious reception
2nd Floor
| Size | 4,994 SF |
| Term | Negotiable |
| Rental Rate | $18.42 CAD/SF/YR |
| Space Use | Office |
| Build-Out | Partial Build-Out |
| Available | Now |
A modern three storey office building with passenger lift providing mostly open plan floors. The building has recently undergone a comprehensive refurbishment to include upgraded lighting, new carpets and redecoration. The ground floor benefits from a spacious reception. Disabled, male and female toilets are available on each floor and main offices on each floor are also fitted with tea station / kitchen units. Available as whole or on a floor-by-floor basis.
- Use Class: B2
- Partially Built-Out as Standard Office
- Open Floor Plan Layout
- Fits 13 - 40 People
- Can be combined with additional space(s) for up to 16,134 SF of adjacent space
- Private Restrooms
- Passenger lifts
- Recently refurbished
- Spacious reception
Property Overview
The property comprises a building of reinforced concrete construction arranged over 3 floors offering 16,134 square feet of accommodation within. The property is located on Brackmills Industrial Estate, Northamptonshire.
- Kitchen
- Reception
- Storage Space
- Demised WC facilities
- Fully Carpeted
Property Facts
Presented by
The Houghton Centre | Salthouse Rd
Hmm, there seems to have been an error sending your message. Please try again.
Thanks! Your message was sent.






