Log In/Sign Up
Your email has been sent.
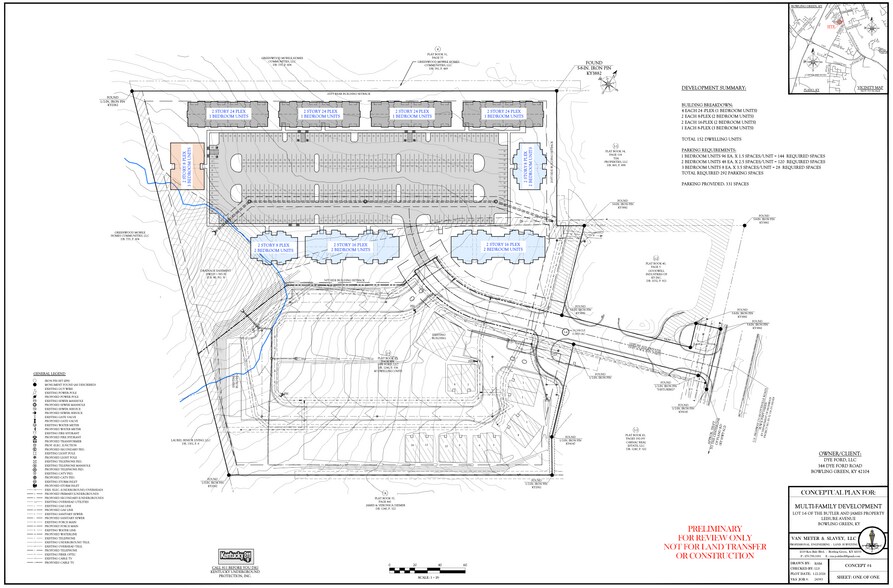
Scottsville Rd - Fully Entitled 152 Unit Multifamily Dev 8 Acres of Commercial Land Offered at $2,435,313 CAD in Bowling Green, KY 42101



Executive Summary
This fully entitled 8 acre multifamily development site along Scottsville Road offers a shovel ready opportunity approved for 152 two story units with a completed conceptual plan that includes efficient circulation, a diverse unit mix, and parking counts above required minimums. The property sits in a high visibility corridor with 25,000 AADT and strong surrounding residential and commercial growth, supported by a five mile population base exceeding seventy thousand residents and solid median household incomes. With zoning, density, and planning already in place, the site provides a rare, large scale development opportunity in a rapidly expanding Bowling Green submarket.
Property Facts
| Price | $2,435,313 CAD | Property Subtype | Commercial |
| Sale Type | Investment | Proposed Use | |
| No. Lots | 1 | Total Lot Size | 8.00 AC |
| Property Type | Land | Cross Streets | Plano Road |
| Zoning | RM-4 - RM-4 Commercial | ||
| Price | $2,435,313 CAD |
| Sale Type | Investment |
| No. Lots | 1 |
| Property Type | Land |
| Property Subtype | Commercial |
| Proposed Use | |
| Total Lot Size | 8.00 AC |
| Cross Streets | Plano Road |
| Zoning | RM-4 - RM-4 Commercial |
1 Lot Available
Lot
| Price | $2,435,313 CAD | Lot Size | 8.00 AC |
| Price Per AC | $304,414.11 CAD |
| Price | $2,435,313 CAD |
| Price Per AC | $304,414.11 CAD |
| Lot Size | 8.00 AC |
Fully entitled. 8 acre parcel zoned high density multifamily (RM-4).
1 1
Fairly walkable
40/100
Exceptionally drivable
100/100
Somewhat bikeable
20/100
Property Taxes
| Parcel Number | 053B-23 | Improvements Assessment | $0 CAD |
| Land Assessment | $0 CAD | Total Assessment | $6,713,000 CAD |
Property Taxes
Parcel Number
053B-23
Land Assessment
$0 CAD
Improvements Assessment
$0 CAD
Total Assessment
$6,713,000 CAD
1 of 4
Videos
Matterport 3D Exterior
Matterport 3D Tour
Photos
Street View
Street
Map
1 of 1
Presented by
Scottsville Rd - Fully Entitled 152 Unit Multifamily Dev
Already a member? Log In
Hmm, there seems to have been an error sending your message. Please try again.
Thanks! Your message was sent.
