Your email has been sent.
Sublease Highlights
- Good Road Connections
- Planning Application for 6 Padel Courts
- Physiotherapist On Site
Space Availability (1)
Display Rental Rate as
- Space
- Size
- Term
- Rental Rate
- Type
| Space | Size | Term | Rental Rate | Rent Type | ||
| 1st Floor | 1,313 SF | Negotiable | $22.49 CAD/SF/YR $1.87 CAD/SF/MO $29,527 CAD/YR $2,461 CAD/MO | TBD |
1st Floor
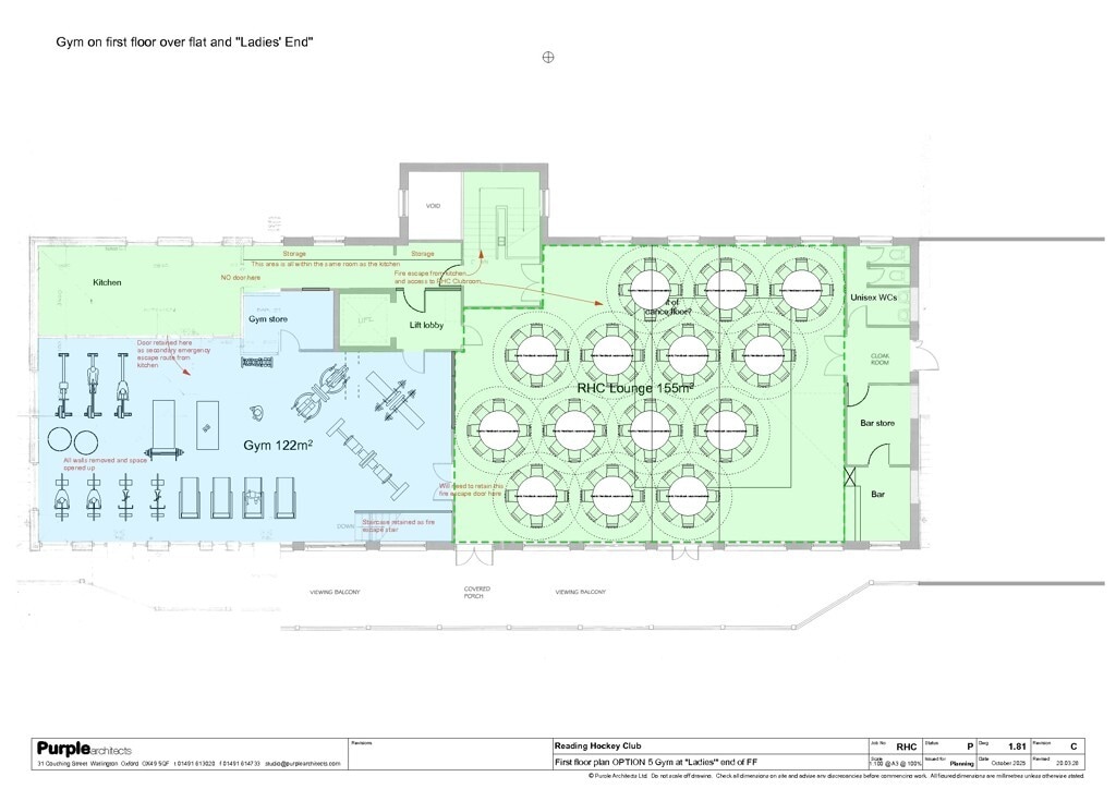
First floor gymnasium space to let within Reading Cricket & Hockey Club which has approximately 1,000 members. The facilities include changing rooms, showers and ample free parking. There will be a physiotherapist on site and a planning application has been submitted for 6 padel courts. Sports, wellbeing and health related businesses only. There is an option for tenant to run the club catering and bar. Also, there is an additional space of up to 1,669 sq ft available by separate arrangement.
- Use Class: E
- Sublease space available from current tenant
- Space is an outparcel at this property
- Central Air Conditioning
- Shower Facilities
- Facilites Include Changing Rooms
- Onsite Showers
- Ample Free Parking
Service Types
The rent amount and service type that the tenant (lessee) will be responsible to pay to the landlord (lessor) throughout the lease term is negotiated prior to both parties signing a lease agreement. The service type will vary depending upon the services provided. Contact the listing broker for a full understanding of any associated costs or additional expenses for each service type.
1. Fully Repairing & Insuring: All obligations for repairing and insuring the property (or their share of the property) both internally and externally.
2. Internal Repairing Only: The tenant is responsible for internal repairs only. The landlord is responsible for structural and external repairs.
3. Internal Repairing & Insuring: The tenant is responsible for internal repairs and insurance for internal parts of the property only. The landlord is responsible for structural and external repairs.
4. Negotiable or TBD: This is used when the leasing contact does not provide the service type.
Property Facts
| Total Space Available | 1,313 SF | Gross Leasable Area | 2,982 SF |
| Property Type | Retail | Year Built | 1940 |
| Property Subtype | Health Club | Parking Ratio | 25.13/1,000 SF |
| Total Space Available | 1,313 SF |
| Property Type | Retail |
| Property Subtype | Health Club |
| Gross Leasable Area | 2,982 SF |
| Year Built | 1940 |
| Parking Ratio | 25.13/1,000 SF |
About the Property
Reading Cricket & Hockey Club is located on Sonning Lane just off the A4 Bath road, 7 miles south of Henley and 4 miles north of Reading, Bracknell is 11 miles east. The M4 motorway (junction10) is just a 10 minute drive.
- Air Conditioning
Nearby Major Retailers
Presented by
Reading Cricket & Hockey Club | Sonning Lane
Hmm, there seems to have been an error sending your message. Please try again.
Thanks! Your message was sent.






