Your email has been sent.
Investment Highlights
- Excellent connectivity to M6, M54, and key Midlands distribution routes
- 30 million people reachable within a two-hour drive
- Ideal for nationwide and regional food distribution
Executive Summary
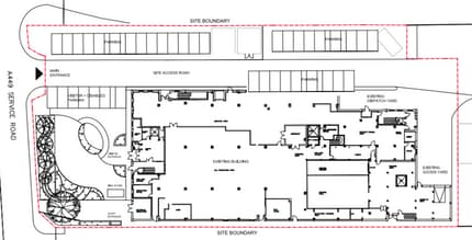
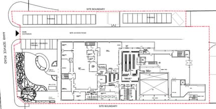
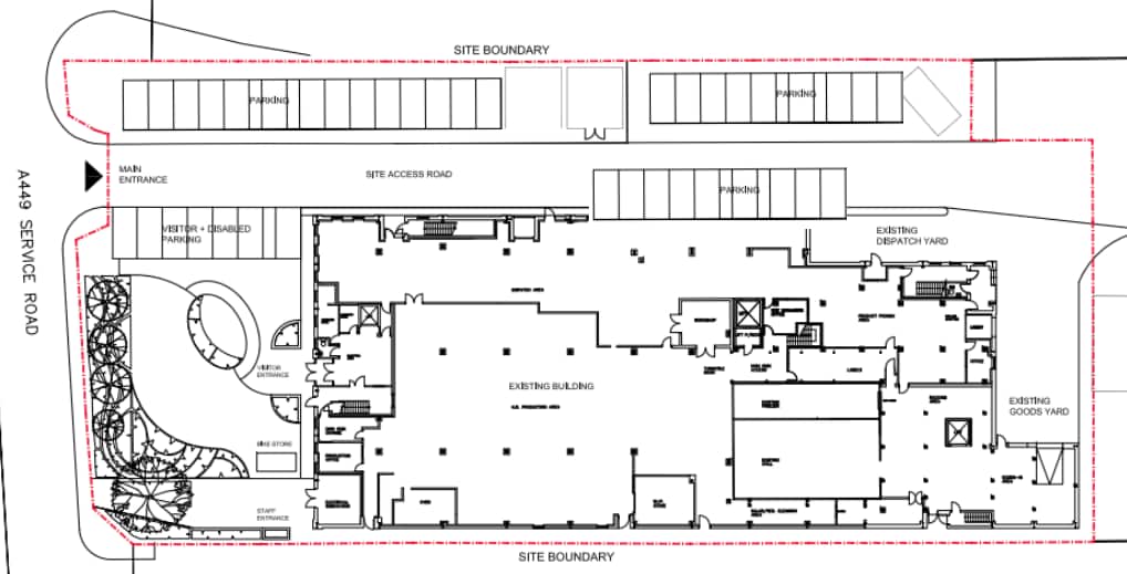
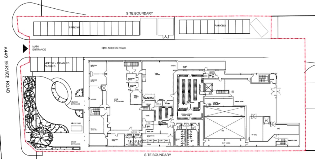
The property offers a plug-and-play, food-grade infrastructure designed to meet the highest compliance standards, suitable for businesses that are expanding or relocating. It is retailer-approved and holds a BRC Grade A certification for both high-risk and low-risk operations. The facility includes temperature-controlled zones and employs trained, experienced on-site food production staff. Its flexible layout supports a wide range of food processing applications. The site is secure and gated, providing excellent logistical access.
Property Facts
| Sale Type | Owner User | No. Stories | 1 |
| Tenure | Freehold | Year Built | 1975 |
| Property Type | Industrial | Tenancy | Single |
| Property Subtype | Food Processing | Parking Ratio | 0.76/1,000 SF |
| Building Class | B | No. Drive In / Grade-Level Doors | 2 |
| Rentable Building Area | 38,000 SF |
| Sale Type | Owner User |
| Tenure | Freehold |
| Property Type | Industrial |
| Property Subtype | Food Processing |
| Building Class | B |
| Rentable Building Area | 38,000 SF |
| No. Stories | 1 |
| Year Built | 1975 |
| Tenancy | Single |
| Parking Ratio | 0.76/1,000 SF |
| No. Drive In / Grade-Level Doors | 2 |
Amenities
- Bus Line
- Fenced Lot
- Security System
- Signage
- Reception
- Automatic Blinds
Utilities
- Gas
- Water
- Sewer
Space Availability
- Space
- Size
- Space Use
- Build-Out
- Available
An exceptional opportunity to lease approx. 38,000 sq ft stateof-the-art Food Processing Facility. The property offers a plug-and-play, food-grade infrastructure designed to meet the highest compliance standards, suitable for businesses that are expanding or relocating. It is retailer-approved and holds a BRC Grade A certification for both high-risk and low-risk operations. The facility includes temperature-controlled zones and employs trained, experienced on-site food production staff. Its flexible layout supports a wide range of food processing applications. The site is secure and gated, providing excellent logistical access.
An exceptional opportunity to lease approx. 38,000 sq ft stateof-the-art Food Processing Facility. The property offers a plug-and-play, food-grade infrastructure designed to meet the highest compliance standards, suitable for businesses that are expanding or relocating. It is retailer-approved and holds a BRC Grade A certification for both high-risk and low-risk operations. The facility includes temperature-controlled zones and employs trained, experienced on-site food production staff. Its flexible layout supports a wide range of food processing applications. The site is secure and gated, providing excellent logistical access.
| Space | Size | Space Use | Build-Out | Available |
| Ground | 21,392 SF | Industrial | Partial Build-Out | Now |
| 1st Floor | 16,608 SF | Industrial | Partial Build-Out | Now |
Ground
| Size |
| 21,392 SF |
| Space Use |
| Industrial |
| Build-Out |
| Partial Build-Out |
| Available |
| Now |
1st Floor
| Size |
| 16,608 SF |
| Space Use |
| Industrial |
| Build-Out |
| Partial Build-Out |
| Available |
| Now |
Ground
| Size | 21,392 SF |
| Space Use | Industrial |
| Build-Out | Partial Build-Out |
| Available | Now |
An exceptional opportunity to lease approx. 38,000 sq ft stateof-the-art Food Processing Facility. The property offers a plug-and-play, food-grade infrastructure designed to meet the highest compliance standards, suitable for businesses that are expanding or relocating. It is retailer-approved and holds a BRC Grade A certification for both high-risk and low-risk operations. The facility includes temperature-controlled zones and employs trained, experienced on-site food production staff. Its flexible layout supports a wide range of food processing applications. The site is secure and gated, providing excellent logistical access.
1st Floor
| Size | 16,608 SF |
| Space Use | Industrial |
| Build-Out | Partial Build-Out |
| Available | Now |
An exceptional opportunity to lease approx. 38,000 sq ft stateof-the-art Food Processing Facility. The property offers a plug-and-play, food-grade infrastructure designed to meet the highest compliance standards, suitable for businesses that are expanding or relocating. It is retailer-approved and holds a BRC Grade A certification for both high-risk and low-risk operations. The facility includes temperature-controlled zones and employs trained, experienced on-site food production staff. Its flexible layout supports a wide range of food processing applications. The site is secure and gated, providing excellent logistical access.
Presented by
Stafford Court | Stafford Rd
Hmm, there seems to have been an error sending your message. Please try again.
Thanks! Your message was sent.






