Your email has been sent.
Harpur Crewe House Swarkestone Rd 1,544 SF of Retail Space Available in Derby DE73 6UD



Highlights
- Part of former Co-Op food store.
- Lat remaining unit.
- Neighbouring Birds and Domino's Pizza.
- Works underway to sub divide into 3 new units.
- Well located in neighbourhood centre.
- Suitable for a variety of high street uses.
Space Availability (1)
Display Rental Rate as
- Space
- Size
- Term
- Rental Rate
- Type
| Space | Size | Term | Rental Rate | Rent Type | ||
| Ground, Ste 2B | 1,544 SF | Negotiable | $38.23 CAD/SF/YR $3.19 CAD/SF/MO $59,030 CAD/YR $4,919 CAD/MO | TBD |
Ground, Ste 2B
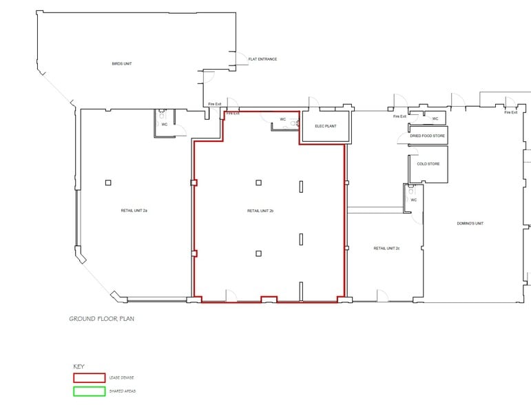
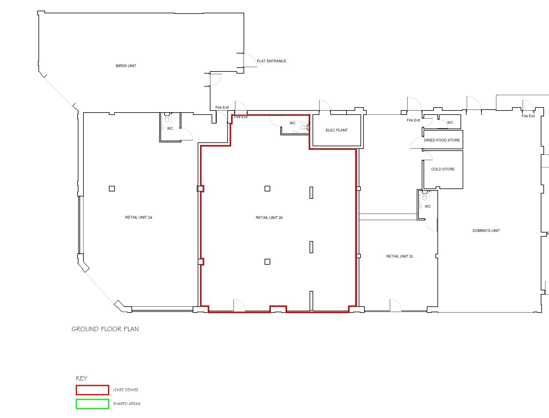
The units are available individually or combined. See plan attached. Rents are based on £13 per sq ft. The units are available by way of a new lease for a term of years to be agreed.
- Use Class: E
- Located in-line with other retail
- Suitable for a range of uses
- Excellent position within centre
- High profile location
Service Types
The rent amount and service type that the tenant (lessee) will be responsible to pay to the landlord (lessor) throughout the lease term is negotiated prior to both parties signing a lease agreement. The service type will vary depending upon the services provided. Contact the listing broker for a full understanding of any associated costs or additional expenses for each service type.
1. Fully Repairing & Insuring: All obligations for repairing and insuring the property (or their share of the property) both internally and externally.
2. Internal Repairing Only: The tenant is responsible for internal repairs only. The landlord is responsible for structural and external repairs.
3. Internal Repairing & Insuring: The tenant is responsible for internal repairs and insurance for internal parts of the property only. The landlord is responsible for structural and external repairs.
4. Negotiable or TBD: This is used when the leasing contact does not provide the service type.
Select Tenants at Harpur Crewe House
- Tenant
- Description
- UK Locations
- Reach
- Birds Bakery
- Bakery
- 59
- Regional
- Co-op
- Supermarket
- 3,827
- National
| Tenant | Description | UK Locations | Reach |
| Birds Bakery | Bakery | 59 | Regional |
| Co-op | Supermarket | 3,827 | National |
Property Facts
| Total Space Available | 1,544 SF | Gross Leasable Area | 4,445 SF |
| Property Type | Retail | Year Built | 1980 |
| Total Space Available | 1,544 SF |
| Property Type | Retail |
| Gross Leasable Area | 4,445 SF |
| Year Built | 1980 |
About the Property
The property is situated in a prominent position at the corner of Swarkestone Road (A514) and High Street, Chellaston to the south of Derby and in close proximity of the Derby Southern Bypass (A50). The property forms much of the ground floor of the overall building known as Harpur Crewe House. Other retailers are Birds the Bakers and George’s Fish & Chips. Opposite adjacent to the property is a parade of shop units, all occupied by local businesses. Short distance further is a Tesco Express store and a short distance away in the opposite direction is a Lidl Supermarket.
Presented by
Harpur Crewe House | Swarkestone Rd
Hmm, there seems to have been an error sending your message. Please try again.
Thanks! Your message was sent.



