Your email has been sent.
Some information has been automatically translated.
Highlights
- Programme neuf
- Parking mutualisé
- Accès rapide A89
All Available Spaces(3)
Display Rental Rate as
- Space
- Size
- Term
-
Rental Rate
- Space Use
- Build-Out
- Available
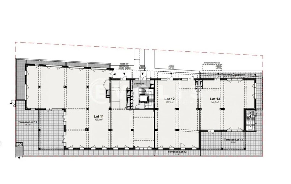
Evolis vous présente le Parc du Viaduc à Tarare, lots de 160 à 300m² disponibles à la vente et/ou la location comprenant un total de 5 207 m² dans l'ensemble du parc d'activité. Idéalement situé, ce parc neuf propose de belles prestations, à seulement 20 min de la TECHLID ! Locaux en charpente bois, livrés bruts, fluides en attente. Idéal pour des activités artisanales, startup, stockage. Des bureaux sont également disponibles à la vente sur le parc. Prestations Activités: . Parking mutualisé (168 places) . Charpente ossature bois Façades légères à ossature métallique . Hauteur libre sous plafond 5,70 mètres . Hauteur libre sous mezzanine 2,50 mètres Bureaux : . Hauteur sous plafond des bureaux 2,70 mètres . Modularité du cloisonnement basée sur un tramage tous les 2,70 mètres . Traitement hygiénique par ventilation mécanique d'air à double flux . Production calorifique / frigorifique : système PAC DRV 2 tubes dans local technique au niveau 0 Commerces : . Bâtiment en ERP catégorie 5 non définie bâtiment en ERP catégorie 3 type N (lot 11 uniquement) . Niveau 0 : Hauteur sous poutre 2,80 mètres . Niveau 1 : Hauteur sous poutre 3,30 mètres . Modularité du cloisonnement basée sur un tramage tous les 2,70 mètres . Prédisposition pour équipement technique en attente en sous-sol Surface RDC : 3912 m²
- Agency Fee: 15.00% of annual rent
- Includes 1,184 SF of dedicated office space
- Security System
- Emergency Lighting
- Exposed Ceiling
- Mezzanine aménageable en bureaux
- Hauteur libre sous mezzanine 2,50 mètres
- Security Deposit: 3 months of rent
- Space is in Excellent Condition
- Secure Storage
- High Ceilings
- Espace brut à configurer
- Parking mutualisé disponible
- Parc d'activité de 5 207 m²
Evolis vous présente le Parc du Viaduc à Tarare, lots de 160 à 300m² disponibles à la vente et/ou la location comprenant un total de 5 207 m² dans l'ensemble du parc d'activité. Idéalement situé, ce parc neuf propose de belles prestations, à seulement 20 min de la TECHLID ! Locaux en charpente bois, livrés bruts, fluides en attente. Idéal pour des activités artisanales, startup, stockage. Des bureaux sont également disponibles à la vente sur le parc. Prestations Activités: . Parking mutualisé (168 places) . Charpente ossature bois Façades légères à ossature métallique . Hauteur libre sous plafond 5,70 mètres . Hauteur libre sous mezzanine 2,50 mètres Bureaux : . Hauteur sous plafond des bureaux 2,70 mètres . Modularité du cloisonnement basée sur un tramage tous les 2,70 mètres . Traitement hygiénique par ventilation mécanique d'air à double flux . Production calorifique / frigorifique : système PAC DRV 2 tubes dans local technique au niveau 0 Commerces : . Bâtiment en ERP catégorie 5 non définie bâtiment en ERP catégorie 3 type N (lot 11 uniquement) . Niveau 0 : Hauteur sous poutre 2,80 mètres . Niveau 1 : Hauteur sous poutre 3,30 mètres . Modularité du cloisonnement basée sur un tramage tous les 2,70 mètres . Prédisposition pour équipement technique en attente en sous-sol Surface RDC : 3912 m²
- Agency Fee: 15.00% of annual rent
- Includes 377 SF of dedicated office space
- Security System
- Emergency Lighting
- Exposed Ceiling
- Mezzanine aménageable en bureaux
- Hauteur libre sous mezzanine 2,50 mètres
- Security Deposit: 3 months of rent
- Space is in Excellent Condition
- Secure Storage
- High Ceilings
- Espace brut à configurer
- Parking mutualisé disponible
- Parc d'activité de 5 207 m²
Evolis vous présente le Parc du Viaduc à Tarare, lots de 160 à 300m² disponibles à la vente et/ou la location comprenant un total de 5 207 m² dans l'ensemble du parc d'activité. Idéalement situé, ce parc neuf propose de belles prestations, à seulement 20 min de la TECHLID ! Locaux en charpente bois, livrés bruts, fluides en attente. Idéal pour des activités artisanales, startup, stockage. Des bureaux sont également disponibles à la vente sur le parc. Prestations Activités: . Parking mutualisé (168 places) . Charpente ossature bois Façades légères à ossature métallique . Hauteur libre sous plafond 5,70 mètres . Hauteur libre sous mezzanine 2,50 mètres Bureaux : . Hauteur sous plafond des bureaux 2,70 mètres . Modularité du cloisonnement basée sur un tramage tous les 2,70 mètres . Traitement hygiénique par ventilation mécanique d'air à double flux . Production calorifique / frigorifique : système PAC DRV 2 tubes dans local technique au niveau 0 Commerces : . Bâtiment en ERP catégorie 5 non définie bâtiment en ERP catégorie 3 type N (lot 11 uniquement) . Niveau 0 : Hauteur sous poutre 2,80 mètres . Niveau 1 : Hauteur sous poutre 3,30 mètres . Modularité du cloisonnement basée sur un tramage tous les 2,70 mètres . Prédisposition pour équipement technique en attente en sous-sol Surface RDC : 3912 m²
- Agency Fee: 15.00% of annual rent
- Includes 603 SF of dedicated office space
- Security System
- Emergency Lighting
- Exposed Ceiling
- Mezzanine aménageable en bureaux
- Hauteur libre sous mezzanine 2,50 mètres
- Security Deposit: 3 months of rent
- Space is in Excellent Condition
- Secure Storage
- High Ceilings
- Espace brut à configurer
- Parking mutualisé disponible
- Parc d'activité de 5 207 m²
| Space | Size | Term | Rental Rate | Space Use | Build-Out | Available |
| Ground - E1 | 4,801 SF | 3/6/9 | $14.18 CAD/SF/YR HT-HC $1.18 CAD/SF/MO HT-HC $68,070 CAD/YR HT-HC $5,673 CAD/MO HT-HC | Flex | Full Build-Out | Now |
| Ground - E2 | 2,756 SF | 3/6/9 | $14.93 CAD/SF/YR HT-HC $1.24 CAD/SF/MO HT-HC $41,128 CAD/YR HT-HC $3,427 CAD/MO HT-HC | Flex | Full Build-Out | Now |
| Ground - E3 | 1,970 SF | 3/6/9 | $15.67 CAD/SF/YR HT-HC $1.31 CAD/SF/MO HT-HC $30,870 CAD/YR HT-HC $2,573 CAD/MO HT-HC | Flex | Full Build-Out | Now |
Ground - E1
| Size |
| 4,801 SF |
| Term |
| 3/6/9 |
|
Rental Rate
|
| $14.18 CAD/SF/YR HT-HC $1.18 CAD/SF/MO HT-HC $68,070 CAD/YR HT-HC $5,673 CAD/MO HT-HC |
| Space Use |
| Flex |
| Build-Out |
| Full Build-Out |
| Available |
| Now |
Ground - E2
| Size |
| 2,756 SF |
| Term |
| 3/6/9 |
|
Rental Rate
|
| $14.93 CAD/SF/YR HT-HC $1.24 CAD/SF/MO HT-HC $41,128 CAD/YR HT-HC $3,427 CAD/MO HT-HC |
| Space Use |
| Flex |
| Build-Out |
| Full Build-Out |
| Available |
| Now |
Ground - E3
| Size |
| 1,970 SF |
| Term |
| 3/6/9 |
|
Rental Rate
|
| $15.67 CAD/SF/YR HT-HC $1.31 CAD/SF/MO HT-HC $30,870 CAD/YR HT-HC $2,573 CAD/MO HT-HC |
| Space Use |
| Flex |
| Build-Out |
| Full Build-Out |
| Available |
| Now |
Ground - E1
| Size | 4,801 SF |
| Term | 3/6/9 |
|
Rental Rate
|
$14.18 CAD/SF/YR HT-HC |
| Space Use | Flex |
| Build-Out | Full Build-Out |
| Available | Now |
Evolis vous présente le Parc du Viaduc à Tarare, lots de 160 à 300m² disponibles à la vente et/ou la location comprenant un total de 5 207 m² dans l'ensemble du parc d'activité. Idéalement situé, ce parc neuf propose de belles prestations, à seulement 20 min de la TECHLID ! Locaux en charpente bois, livrés bruts, fluides en attente. Idéal pour des activités artisanales, startup, stockage. Des bureaux sont également disponibles à la vente sur le parc. Prestations Activités: . Parking mutualisé (168 places) . Charpente ossature bois Façades légères à ossature métallique . Hauteur libre sous plafond 5,70 mètres . Hauteur libre sous mezzanine 2,50 mètres Bureaux : . Hauteur sous plafond des bureaux 2,70 mètres . Modularité du cloisonnement basée sur un tramage tous les 2,70 mètres . Traitement hygiénique par ventilation mécanique d'air à double flux . Production calorifique / frigorifique : système PAC DRV 2 tubes dans local technique au niveau 0 Commerces : . Bâtiment en ERP catégorie 5 non définie bâtiment en ERP catégorie 3 type N (lot 11 uniquement) . Niveau 0 : Hauteur sous poutre 2,80 mètres . Niveau 1 : Hauteur sous poutre 3,30 mètres . Modularité du cloisonnement basée sur un tramage tous les 2,70 mètres . Prédisposition pour équipement technique en attente en sous-sol Surface RDC : 3912 m²
- Agency Fee: 15.00% of annual rent
- Security Deposit: 3 months of rent
- Includes 1,184 SF of dedicated office space
- Space is in Excellent Condition
- Security System
- Secure Storage
- Emergency Lighting
- High Ceilings
- Exposed Ceiling
- Espace brut à configurer
- Mezzanine aménageable en bureaux
- Parking mutualisé disponible
- Hauteur libre sous mezzanine 2,50 mètres
- Parc d'activité de 5 207 m²
Ground - E2
| Size | 2,756 SF |
| Term | 3/6/9 |
|
Rental Rate
|
$14.93 CAD/SF/YR HT-HC |
| Space Use | Flex |
| Build-Out | Full Build-Out |
| Available | Now |
Evolis vous présente le Parc du Viaduc à Tarare, lots de 160 à 300m² disponibles à la vente et/ou la location comprenant un total de 5 207 m² dans l'ensemble du parc d'activité. Idéalement situé, ce parc neuf propose de belles prestations, à seulement 20 min de la TECHLID ! Locaux en charpente bois, livrés bruts, fluides en attente. Idéal pour des activités artisanales, startup, stockage. Des bureaux sont également disponibles à la vente sur le parc. Prestations Activités: . Parking mutualisé (168 places) . Charpente ossature bois Façades légères à ossature métallique . Hauteur libre sous plafond 5,70 mètres . Hauteur libre sous mezzanine 2,50 mètres Bureaux : . Hauteur sous plafond des bureaux 2,70 mètres . Modularité du cloisonnement basée sur un tramage tous les 2,70 mètres . Traitement hygiénique par ventilation mécanique d'air à double flux . Production calorifique / frigorifique : système PAC DRV 2 tubes dans local technique au niveau 0 Commerces : . Bâtiment en ERP catégorie 5 non définie bâtiment en ERP catégorie 3 type N (lot 11 uniquement) . Niveau 0 : Hauteur sous poutre 2,80 mètres . Niveau 1 : Hauteur sous poutre 3,30 mètres . Modularité du cloisonnement basée sur un tramage tous les 2,70 mètres . Prédisposition pour équipement technique en attente en sous-sol Surface RDC : 3912 m²
- Agency Fee: 15.00% of annual rent
- Security Deposit: 3 months of rent
- Includes 377 SF of dedicated office space
- Space is in Excellent Condition
- Security System
- Secure Storage
- Emergency Lighting
- High Ceilings
- Exposed Ceiling
- Espace brut à configurer
- Mezzanine aménageable en bureaux
- Parking mutualisé disponible
- Hauteur libre sous mezzanine 2,50 mètres
- Parc d'activité de 5 207 m²
Ground - E3
| Size | 1,970 SF |
| Term | 3/6/9 |
|
Rental Rate
|
$15.67 CAD/SF/YR HT-HC |
| Space Use | Flex |
| Build-Out | Full Build-Out |
| Available | Now |
Evolis vous présente le Parc du Viaduc à Tarare, lots de 160 à 300m² disponibles à la vente et/ou la location comprenant un total de 5 207 m² dans l'ensemble du parc d'activité. Idéalement situé, ce parc neuf propose de belles prestations, à seulement 20 min de la TECHLID ! Locaux en charpente bois, livrés bruts, fluides en attente. Idéal pour des activités artisanales, startup, stockage. Des bureaux sont également disponibles à la vente sur le parc. Prestations Activités: . Parking mutualisé (168 places) . Charpente ossature bois Façades légères à ossature métallique . Hauteur libre sous plafond 5,70 mètres . Hauteur libre sous mezzanine 2,50 mètres Bureaux : . Hauteur sous plafond des bureaux 2,70 mètres . Modularité du cloisonnement basée sur un tramage tous les 2,70 mètres . Traitement hygiénique par ventilation mécanique d'air à double flux . Production calorifique / frigorifique : système PAC DRV 2 tubes dans local technique au niveau 0 Commerces : . Bâtiment en ERP catégorie 5 non définie bâtiment en ERP catégorie 3 type N (lot 11 uniquement) . Niveau 0 : Hauteur sous poutre 2,80 mètres . Niveau 1 : Hauteur sous poutre 3,30 mètres . Modularité du cloisonnement basée sur un tramage tous les 2,70 mètres . Prédisposition pour équipement technique en attente en sous-sol Surface RDC : 3912 m²
- Agency Fee: 15.00% of annual rent
- Security Deposit: 3 months of rent
- Includes 603 SF of dedicated office space
- Space is in Excellent Condition
- Security System
- Secure Storage
- Emergency Lighting
- High Ceilings
- Exposed Ceiling
- Espace brut à configurer
- Mezzanine aménageable en bureaux
- Parking mutualisé disponible
- Hauteur libre sous mezzanine 2,50 mètres
- Parc d'activité de 5 207 m²
Property Overview
Le Parc du Viaduc est un programme neuf conçu pour accueillir des activités artisanales, industrielles légères ou de petites entreprises en recherche d’un environnement moderne et fonctionnel. L’ensemble se distingue par son architecture en structure bois et ses façades légères, apportant un cadre de travail qualitatif et durable. Les cellules sont pensées pour offrir une flexibilité importante, avec des volumes faciles à adapter et des hauteurs confortables permettant d’implanter aussi bien des machines que des espaces de travail. Le site intègre un parking mutualisé en nombre conséquent, garantissant une accessibilité facilitée pour les collaborateurs et les visiteurs. Le parc bénéficie d’une localisation stratégique à Tarare, à proximité immédiate de l’autoroute A89 et à moins de quarante-cinq minutes des principales gares lyonnaises. Cette situation permet de connecter aisément les différents bassins économiques de la région, tout en proposant un environnement calme et propice aux activités de production ou de logistique légère. La conception récente du site garantit un niveau de performance technique élevé et une qualité d’exploitation durable pour les entreprises souhaitant s’y implanter.
Property Facts
Presented by
"69170 Tarare"
Hmm, there seems to have been an error sending your message. Please try again.
Thanks! Your message was sent.







