Log In/Sign Up
Your email has been sent.
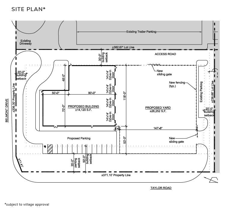
Proposed BTS (Paragon Business Park) Taylor Rd 14,120 SF of Industrial Space Available in Romeoville, IL 60446

Highlights
- Conveniently located along W Taylor Rd.
- Located at the entrance to Paragon Business Park.
Features
Clear Height
20’
Drive In Bays
4
Exterior Dock Doors
4
Standard Parking Spaces
31
All Available Space(1)
Display Rental Rate as
- Space
- Size
- Term
- Rental Rate
- Space Use
- Build-Out
- Available
Customize this space to suit your needs.
- Space is in Excellent Condition
| Space | Size | Term | Rental Rate | Space Use | Build-Out | Available |
| 1st Floor | 14,120 SF | Negotiable | Upon Request Upon Request Upon Request Upon Request | Industrial | Spec Suite | 2026-08-01 |
1st Floor
| Size |
| 14,120 SF |
| Term |
| Negotiable |
| Rental Rate |
| Upon Request Upon Request Upon Request Upon Request |
| Space Use |
| Industrial |
| Build-Out |
| Spec Suite |
| Available |
| 2026-08-01 |
1 of 1
Videos
Matterport 3D Exterior
Matterport 3D Tour
Photos
Street View
Street
Map
1st Floor
| Size | 14,120 SF |
| Term | Negotiable |
| Rental Rate | Upon Request |
| Space Use | Industrial |
| Build-Out | Spec Suite |
| Available | 2026-08-01 |
Customize this space to suit your needs.
- Space is in Excellent Condition
Property Overview
14,120 square foot proposed built to suit building with a 26,252 square foot yard.
Warehouse Facility Facts
Building Size
14,120 SF
Lot Size
2.13 AC
Year Built
2027
Construction
Metal
Zoning
I - Industrial
1 1
Somewhat walkable
30/100
Exceptionally drivable
90/100
Fairly bikeable
50/100
1 of 2
Videos
Matterport 3D Exterior
Matterport 3D Tour
Photos
Street View
Street
Map
1 of 1
Presented by
Proposed BTS (Paragon Business Park) | Taylor Rd
Already a member? Log In
Hmm, there seems to have been an error sending your message. Please try again.
Thanks! Your message was sent.


