Log In/Sign Up
Your email has been sent.
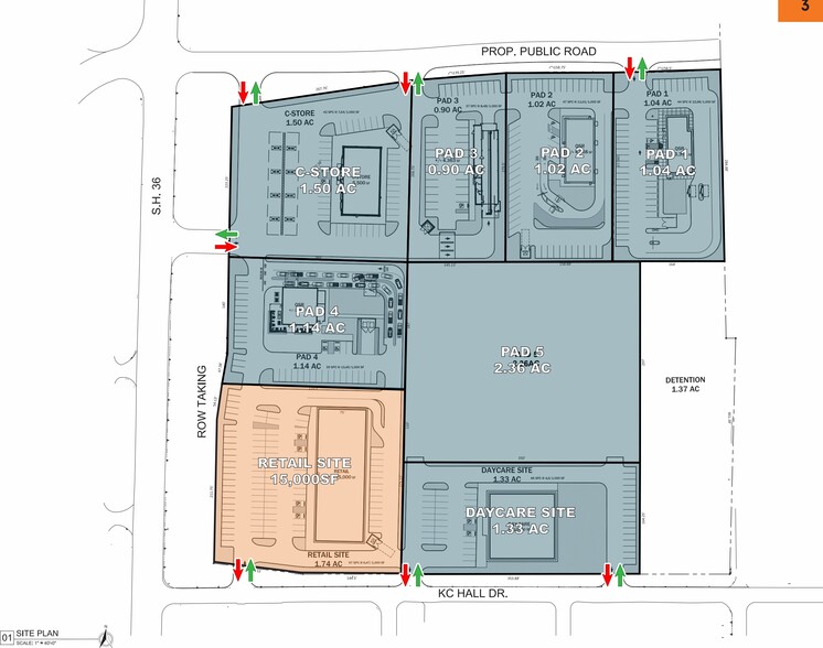
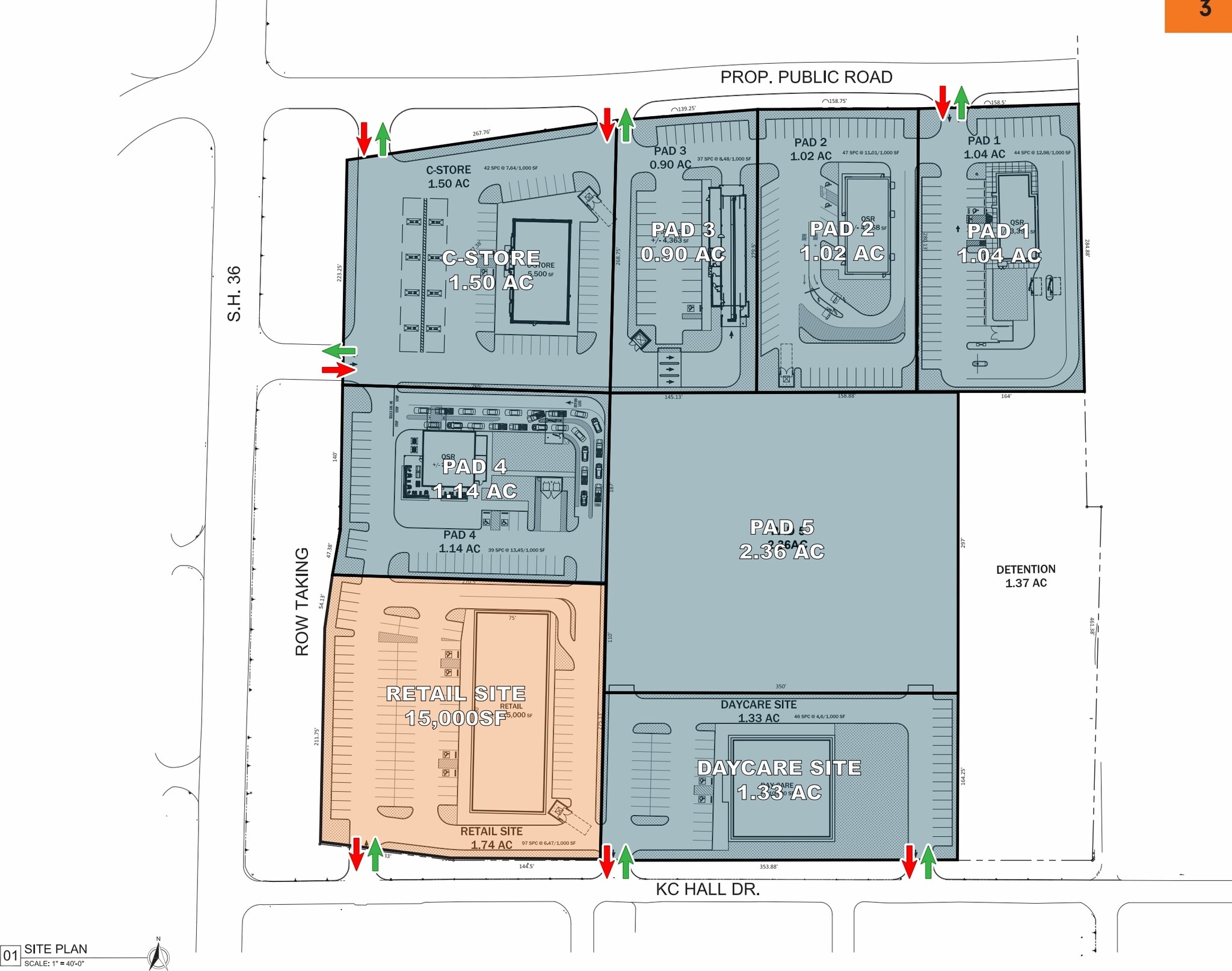
Texas 36 & K.C. Hall Dr - Rosenberg Commons Pad Sites 0.9 - 2.36 Acre Commercial Land Lots in Rosenberg, TX 77471

Property Facts
| Sale Type | Investment | Property Subtype | Commercial |
| No. Lots | 7 | Proposed Use | Commercial |
| Property Type | Land | Total Lot Size | 9.31 AC |
| Sale Type | Investment |
| No. Lots | 7 |
| Property Type | Land |
| Property Subtype | Commercial |
| Proposed Use | Commercial |
| Total Lot Size | 9.31 AC |
7 Lots Available
Lot 1
| Lot Size | 1.04 AC |
| Lot Size | 1.04 AC |
Lot 2
| Lot Size | 1.02 AC |
| Lot Size | 1.02 AC |
Lot 3
| Lot Size | 0.90 AC |
| Lot Size | 0.90 AC |
Lot 4
| Lot Size | 1.14 AC |
| Lot Size | 1.14 AC |
Lot 5
| Lot Size | 2.36 AC |
| Lot Size | 2.36 AC |
Lot C-Store
| Lot Size | 1.50 AC |
| Lot Size | 1.50 AC |
Lot Daycare
| Lot Size | 1.33 AC |
| Lot Size | 1.33 AC |
Proposed Daycare Site
1 1
Somewhat walkable
20/100
Exceptionally drivable
100/100
Somewhat bikeable
30/100
1 of 2
Videos
Matterport 3D Exterior
Matterport 3D Tour
Photos
Street View
Street
Map
1 of 1
Presented by
Texas 36 & K.C. Hall Dr - Rosenberg Commons Pad Sites
Already a member? Log In
Hmm, there seems to have been an error sending your message. Please try again.
Thanks! Your message was sent.
