Log In/Sign Up
Your email has been sent.
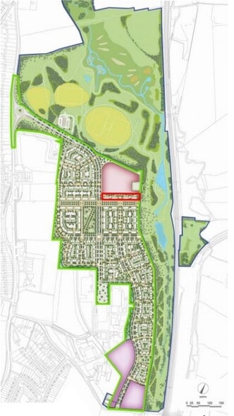
The Av 0.98 Acres of Commercial Land in Wingerworth S42 6FT



Investment Highlights
- Vacant and cleared site extending to circa 0.40 hectares (0.98 acres)
- 2 miles south of Chesterfield, adjacent to new Country Park
- Within Existing Outline Consent on wider Avenue site
Executive Summary
Conditional offers are invited by way of informal tender for the freehold interest in the Property with vacant possession and limited title guarantee, including overage requirements. Offers must be made on the specified Offer Form and meet and reflect the requirements of the draft Heads of Terms and Agreement for Sale within the legal pack in the data room. Offers that do not meet the stated bid criteria will not be considered. Please direct any queries on bid process requirements to the agents. The deadline for offers is midday on 22 December 2021 at 1pm.
Property Facts
| Sale Type | Investment | Property Type | Land |
| Tenure | Freehold | Property Subtype | Commercial |
| No. Lots | 1 | Total Lot Size | 0.98 AC |
| Sale Type | Investment |
| Tenure | Freehold |
| No. Lots | 1 |
| Property Type | Land |
| Property Subtype | Commercial |
| Total Lot Size | 0.98 AC |
1 Lot Available
Lot
| Lot Size | 0.98 AC |
| Lot Size | 0.98 AC |
Vacant and cleared site extending to circa 0.40 hectares (0.98 acres). The Property itself comprises the land edged red on the Site Plan above, extending to circa 0.40 hectares (0.98 acres) in total. It is a remediated and level development platform
1 of 5
Videos
Matterport 3D Exterior
Matterport 3D Tour
Photos
Street View
Street
Map
Presented by
The Av
Already a member? Log In
Hmm, there seems to have been an error sending your message. Please try again.
Thanks! Your message was sent.

