Log In/Sign Up
Your email has been sent.
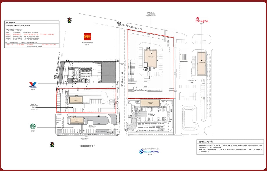
Twin City Highway - HWY 73 & TWIN CITY HWY, GROVES, TEXAS 0.84 - 1.74 Acre Commercial Land Lots in Groves, TX 77619



Executive Summary
-Major redevelopment of 7-story office building at Highway 73 & Twin City Highway in Groves, Texas
-Pad sites available for sale or ground lease adjacent to new Starbuck’s and Chick-fil-A at “Main & Main”
-Cross access with adjacent Wells Fargo branch and directly accessible from Highway 73, Twin City Highway (aka SH-347), and 39th Street
- Site is at dedicated exit from Highway 73
- Close proximity to Walmart, HEB, and numerous major employment generators
-Pad sites available for sale or ground lease adjacent to new Starbuck’s and Chick-fil-A at “Main & Main”
-Cross access with adjacent Wells Fargo branch and directly accessible from Highway 73, Twin City Highway (aka SH-347), and 39th Street
- Site is at dedicated exit from Highway 73
- Close proximity to Walmart, HEB, and numerous major employment generators
Property Facts
2 Lots Available
Lot B
| Lot Size | 0.84 AC |
| Lot Size | 0.84 AC |
- 0.84 acres fronting Twin City Highway (TX 347)
Lot D
| Lot Size | 1.74 AC |
| Lot Size | 1.74 AC |
- 1.74 acres, +/- 220' of frontage on SH 73
Fairly walkable
40/100
Exceptionally drivable
100/100
Somewhat bikeable
30/100
1 of 6
Videos
Matterport 3D Exterior
Matterport 3D Tour
Photos
Street View
Street
Map
Presented by
Twin City Highway - HWY 73 & TWIN CITY HWY, GROVES, TEXAS
Already a member? Log In
Hmm, there seems to have been an error sending your message. Please try again.
Thanks! Your message was sent.

