Log In/Sign Up
Your email has been sent.
Two (2) Buildings Totaling ±20,100 SF 2 Industrial Properties Offered at $14,541,554 CAD in Newport Beach, CA



Executive Summary
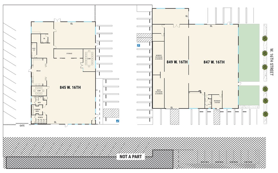
845 - 849 W. 16th Street, Newport Beach consists of two (2) buildings on one (1) parcel of land. Both buildings are currently leased, however, 845 W. 16th Street can be available to occupy November 1, 2026. An investor can purchase and enjoy the cash flow, or an owner occupant can purchase and occupy one or both buildings when the leases expire. This property provides a premier Newport Beach address with convenient access to the 55 Freeway, Pacific Coast Highway and Newport Harbor. Surrounded by top amenities and Hoag Hospital, this property balances professional prestige with financial growth in one of California’s most sought-after coastal markets.
847 & 849 W. 16TH STREET FEATURES:
• ±10,956 SF Building
• ±80% HVAC Creative Space with Open Ceiling and Exposed Ducting
• 12’ - 16’ Warehouse Clear Height
• 3:1 Parking Ratio
• 100 Amps of Power (verify)
• Divisible into Two (2) Units
• Three (3) Ground Level Loading Doors
• 16th Street Frontage/Signage
845 W. 16TH STREET FEATURES:
• ±9,144 SF Building
• 100% HVAC Creative Space with Open Ceiling and Exposed Ducting
• 12’ Clear Height
• 3:1 Parking Ratio
• 100 Amps of Power (verify)
• Fire Sprinklers
• Secured Parking/Yard Area
• One (1) Ground Level Loading Door
• Completely Renovated in 2015 Including Large Break Room, Conference Room and Open Production Area
• New Roof Installed in 2024
847 & 849 W. 16TH STREET FEATURES:
• ±10,956 SF Building
• ±80% HVAC Creative Space with Open Ceiling and Exposed Ducting
• 12’ - 16’ Warehouse Clear Height
• 3:1 Parking Ratio
• 100 Amps of Power (verify)
• Divisible into Two (2) Units
• Three (3) Ground Level Loading Doors
• 16th Street Frontage/Signage
845 W. 16TH STREET FEATURES:
• ±9,144 SF Building
• 100% HVAC Creative Space with Open Ceiling and Exposed Ducting
• 12’ Clear Height
• 3:1 Parking Ratio
• 100 Amps of Power (verify)
• Fire Sprinklers
• Secured Parking/Yard Area
• One (1) Ground Level Loading Door
• Completely Renovated in 2015 Including Large Break Room, Conference Room and Open Production Area
• New Roof Installed in 2024
Property Facts
| Price | $14,541,554 CAD | Number of Properties | 2 |
| Price / SF | $723.46 CAD / SF | Individually For Sale | 0 |
| Cap Rate | 4.20% | Total Building Size | 20,100 SF |
| Sale Type | Investment or Owner User | Total Land Area | 1.09 AC |
| Status | Active |
| Price | $14,541,554 CAD |
| Price / SF | $723.46 CAD / SF |
| Cap Rate | 4.20% |
| Sale Type | Investment or Owner User |
| Status | Active |
| Number of Properties | 2 |
| Individually For Sale | 0 |
| Total Building Size | 20,100 SF |
| Total Land Area | 1.09 AC |
Properties
| Property Name / Address | Property Type | Size | Year Built | Individual Price |
|---|---|---|---|---|
| 849-849 W 16th St, Newport Beach, CA 92663 | Industrial | 10,956 SF | 1954 | - |
| 845 W 16th St, Newport Beach, CA 92663 | Industrial | 9,144 SF | 1954 | - |
1 of 5
Videos
Matterport 3D Exterior
Matterport 3D Tour
Photos
Street View
Street
Map
Presented by
Two (2) Buildings Totaling ±20,100 SF
Already a member? Log In
Hmm, there seems to have been an error sending your message. Please try again.
Thanks! Your message was sent.

