Se Connecter/S’inscrire
Votre courriel a été envoyé.
Certaines informations ont été traduites automatiquement.
Faits saillants de l'investissement
- Great High Visibility/High Traffic Location on just off Main Thoroughfare
- Minutes from I-66
- Zoned Commercial
Résumé de l'annonce
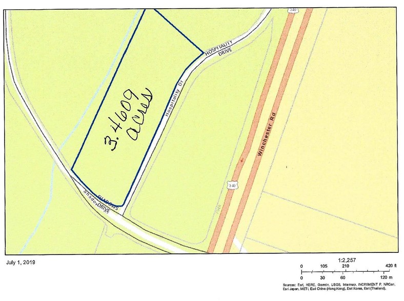
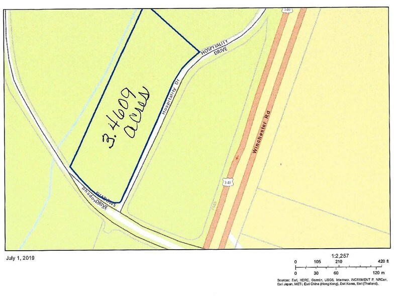
3.46 Acres of Commercially Zoned Land on Rt. 522/Rt.340. Hotel and restaurant are next door to this property. Ideal development parcel with excellent access and road visibility.
Faits sur la propriété
| Prix | 1 220 995 $ CAD | Type de propriété | Terrain |
| Type de vente | Investissement ou propriétaire utilisateur | Sous-type de propriété | Terrain commercial |
| Nombre de lots | 1 | Taille totale du lot | 3,46 AC |
| Zonage | Commercial | ||
| Prix | 1 220 995 $ CAD |
| Type de vente | Investissement ou propriétaire utilisateur |
| Nombre de lots | 1 |
| Type de propriété | Terrain |
| Sous-type de propriété | Terrain commercial |
| Taille totale du lot | 3,46 AC |
| Zonage | Commercial |
1 Lot disponible
Lot 12J-1
| Prix | 1 220 995 $ CAD | Taille du lot | 3,46 AC |
| Prix par AC | 352 888,68 $ CAD |
| Prix | 1 220 995 $ CAD |
| Prix par AC | 352 888,68 $ CAD |
| Taille du lot | 3,46 AC |
3.46 Acres of Commercially Zoned Land on Rt. 522/Rt.340. Hotel and restaurant are next door to this property. Ideal development parcel with excellent access and road visibility.
Plutôt praticable à pied
20/100
Exceptionnellement facile d’accès en voiture
100/100
Transports en commun limités
30/100
Assez praticable en vélo
20/100
Impôts fonciers
| Numéro de lot | 12J-1 | Évaluation des bâtiments | 0 $ CAD |
| Évaluation du terrain | 1 596 638 $ CAD | Évaluation totale | 1 596 638 $ CAD |
Impôts fonciers
Numéro de lot
12J-1
Évaluation du terrain
1 596 638 $ CAD
Évaluation des bâtiments
0 $ CAD
Évaluation totale
1 596 638 $ CAD
1 de 8
Vidéos
Visite extérieure 3D Matterport
Visite 3D Matterport
Photos
Vue depuis la rue
Rue
Carte
Présenté par
0 Hospitality Dr
Vous êtes déjà membre? Connectez-vous
Hmm, il semble y avoir eu une erreur lors de l’envoi de votre message. Veuillez réessayer.
Merci! Votre message a été envoyé.




