Se Connecter/S’inscrire
Votre courriel a été envoyé.
0 Reed Ave Ave - Builder Lots in Mandarin-Jacksonville Lot • Résidentiel • 0,25 Acres • 2 514 150 $ CAD • Jacksonville, FL 32257



Certaines informations ont été traduites automatiquement.
Faits saillants de l'investissement
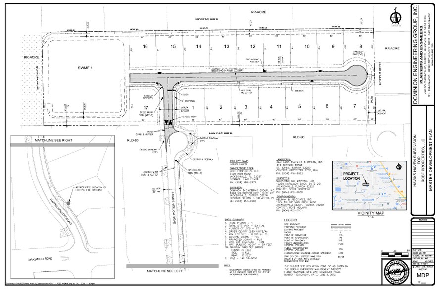
- PUD single family development in Mandarin area of Jacksonville, FL
- Site does not require a lift station (city water and sewer at site)
- 80' x 115' shovel ready lots
Résumé de l'annonce
Great small subdivision opportunity for homebuilder in the Mandarin area of Jacksonville, FL. This PUD with all entitlements is shovel ready and approved for 17 lots(80'x115'). No lift station required, and utilities are at the site. Individual builder lots are available and will average .25 acres per lot. Hawks Haven subdivision is located within a quiet neighborhood area of Mandarin and will provide a great location for new homeowners. Development will start early 2026. Developed lot prices average in the low $200s. Please contact me for further details and information (904.280.3907, mbeckley@rcbfproperties.com).
Faits sur la propriété
| Prix | 2 514 150 $ CAD | Sous-type de propriété | Résidentiel |
| Type de vente | Investissement ou propriétaire utilisateur | Utilisation proposée | Développement familial unique |
| Nombre de lots | 1 | Taille totale du lot | 0,25 AC |
| Type de propriété | Terrain | Rues transversales | Hawks Hollow |
| Zonage | PUD - Développement d'unités planifiées | ||
| Prix | 2 514 150 $ CAD |
| Type de vente | Investissement ou propriétaire utilisateur |
| Nombre de lots | 1 |
| Type de propriété | Terrain |
| Sous-type de propriété | Résidentiel |
| Utilisation proposée | Développement familial unique |
| Taille totale du lot | 0,25 AC |
| Rues transversales | Hawks Hollow |
| Zonage | PUD - Développement d'unités planifiées |
1 Lot disponible
Lot
| Prix | 2 514 150 $ CAD | Taille du lot | 0,25 AC |
| Prix par AC | 10 056 599,76 $ CAD |
| Prix | 2 514 150 $ CAD |
| Prix par AC | 10 056 599,76 $ CAD |
| Taille du lot | 0,25 AC |
PUD with 17 single family builder lots averaging .25 acres per lot in Jacksonville, Florida. Hawks Haven subdivision is located within a quiet neighborhood area of Mandarin (lot size of 80'x115'). Development will start Feb 2026 on 6.78 ac site.
Description
Subdivision de 17 lots dans le secteur de Mandarin à Jacksonville, FL, prêt pour le développement. Aucune station de pompage requise.
1 1
Impôts fonciers
| Numéro de lot | 149153-0050 | Évaluation des bâtiments | 0 $ CAD |
| Évaluation du terrain | 0 $ CAD | Évaluation totale | 946 328 $ CAD |
Impôts fonciers
Numéro de lot
149153-0050
Évaluation du terrain
0 $ CAD
Évaluation des bâtiments
0 $ CAD
Évaluation totale
946 328 $ CAD
1 de 4
Vidéos
Visite extérieure 3D Matterport
Visite 3D Matterport
Photos
Vue depuis la rue
Rue
Carte
1 de 1
Présenté par
0 Reed Ave Ave - Builder Lots in Mandarin-Jacksonville
Vous êtes déjà membre? Connectez-vous
Hmm, il semble y avoir eu une erreur lors de l’envoi de votre message. Veuillez réessayer.
Merci! Votre message a été envoyé.
