Se Connecter/S’inscrire
Votre courriel a été envoyé.
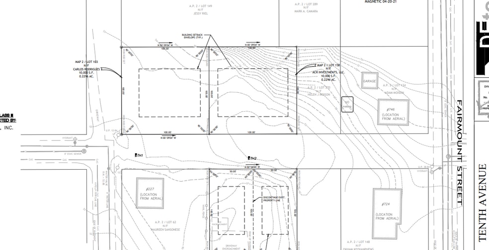
0 Tenth St - Roadway Extension & Land Development Project Lot • Résidentiel • 0,23 Acres • 410 400 $ CAD • Woonsocket, RI 02895

Certaines informations ont été traduites automatiquement.
Résumé de l'annonce
Exceptional land development opportunity in Woonsocket, RI, featuring three buildable lots, each approximately 10,000 square feet. All parcels are zoned R3 and come with city approval to construct three two-family homes (no building permits issued yet, city approval only). DPW approval is currently in progress, adding momentum to this ready-to-move-forward project. Roadway extension plans and land development plans are already in hand, providing valuable time and cost savings for developers. This offering presents a rare chance to develop multi-family housing in a strong rental market. Conveniently located near major highways, shopping, dining, and local amenities, the property offers excellent accessibility and appeal for future tenants or owner-occupants. An outstanding investment opportunity with significant upside in a desirable Woonsocket location.
Faits sur la propriété
| Prix | 410 400 $ CAD | Sous-type de propriété | Résidentiel |
| Type de vente | Investissement | Utilisation proposée | Maison unifamiliale |
| Nombre de lots | 1 | Taille totale du lot | 0,23 AC |
| Type de propriété | Terrain | ||
| Zonage | R3 - Résidentiel | ||
| Prix | 410 400 $ CAD |
| Type de vente | Investissement |
| Nombre de lots | 1 |
| Type de propriété | Terrain |
| Sous-type de propriété | Résidentiel |
| Utilisation proposée | Maison unifamiliale |
| Taille totale du lot | 0,23 AC |
| Zonage | R3 - Résidentiel |
1 Lot disponible
Lot
| Prix | 410 400 $ CAD | Taille du lot | 0,23 AC |
| Prix par AC | 1 784 347,87 $ CAD |
| Prix | 410 400 $ CAD |
| Prix par AC | 1 784 347,87 $ CAD |
| Taille du lot | 0,23 AC |
1 1
Assez practicable à pied
40/100
Moyennement facile d'accès en voiture
70/100
Transports en commun limités
30/100
Plutôt praticable en vélo
40/100
Impôts fonciers
| Numéro de lot | WOON-000002D-000270-000048 | Évaluation des bâtiments | 0 $ CAD |
| Évaluation du terrain | 26 516 $ CAD | Évaluation totale | 26 516 $ CAD |
Impôts fonciers
Numéro de lot
WOON-000002D-000270-000048
Évaluation du terrain
26 516 $ CAD
Évaluation des bâtiments
0 $ CAD
Évaluation totale
26 516 $ CAD
1 de 2
Vidéos
Visite extérieure 3D Matterport
Visite 3D Matterport
Photos
Vue depuis la rue
Rue
Carte
1 de 1
Présenté par
0 Tenth St - Roadway Extension & Land Development Project
Vous êtes déjà membre? Connectez-vous
Hmm, il semble y avoir eu une erreur lors de l’envoi de votre message. Veuillez réessayer.
Merci! Votre message a été envoyé.
