Se Connecter/S’inscrire
Votre courriel a été envoyé.
US Route One, Freeport 0 US Route 1 Terrain à louer de 37,9 acres • Terrain commercial • Freeport, ME 04032



Certaines informations ont été traduites automatiquement.
LOT Disponible
Afficher les taux de location en
| Taux de location |
|
Taille du lot | 37,90 AC |
| Durée du bail | Négociable |
| Taux de location | |
| Durée du bail | Négociable |
| Taille du lot | 37,90 AC |
LEASE RATE: TBD
Aperçu de la propriété
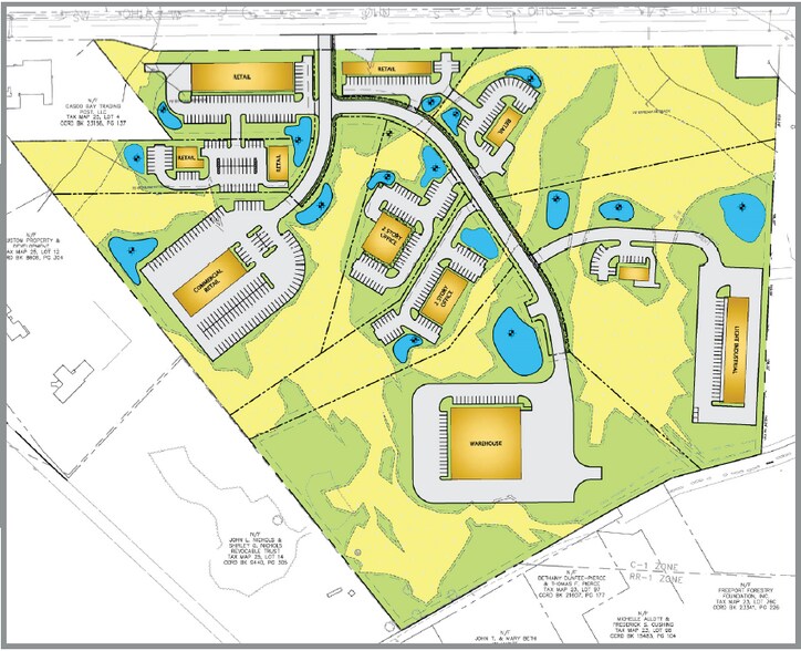
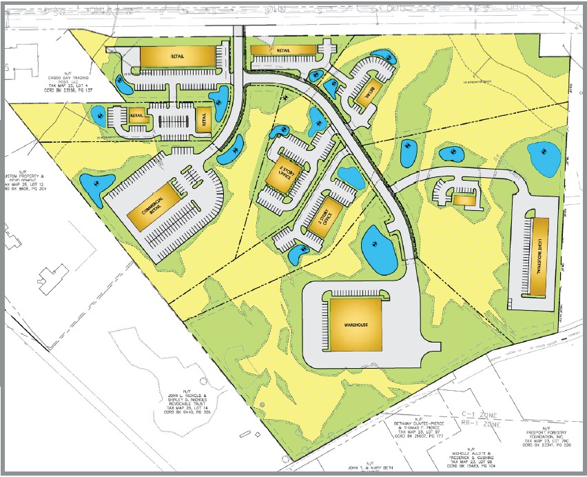
PLAN CONCEPT UTILISATIONS POTENTIelles* (aux fins de la conception du plan) ESPACE DE DÉTAIL : 3 Bâtiments - chacun ayant un minimum de 2 500 pi³ ESPACE DE RESTAURANT/DÉTAIL DE DÉTAIL : 2 Bâtiments - chacun ayant un minimum de 2 500 pi2 BUREAU : 2 Bâtiments - chacun ayant un minimum de 5 000 SF ENTREPÔT : 1 Bâtiment - avec un minimum de 3 000 pi2 INDUSTRIEL LÉGER : 1 Bâtiment - avec un minimum de 3 000 pc
Faits sur la propriété
| Superficie totale disponible | 37,90 AC | Sous-type de propriété | Terrain commercial |
| Type de propriété | Terrain |
| Superficie totale disponible | 37,90 AC |
| Type de propriété | Terrain |
| Sous-type de propriété | Terrain commercial |
1 1
Plutôt practicable à pied
20/100
Exceptionnellement facile d'accès en voiture
100/100
Assez praticable en vélo
20/100
1 de 5
Vidéos
Visite extérieure 3D Matterport
Visite 3D Matterport
Photos
Vue depuis la rue
Rue
Carte
1 de 1
Présenté par
US Route One, Freeport | 0 US Route 1
Vous êtes déjà membre? Connectez-vous
Hmm, il semble y avoir eu une erreur lors de l’envoi de votre message. Veuillez réessayer.
Merci! Votre message a été envoyé.
