Se Connecter/S’inscrire
Votre courriel a été envoyé.
Certaines informations ont été traduites automatiquement.
Résumé de l'annonce
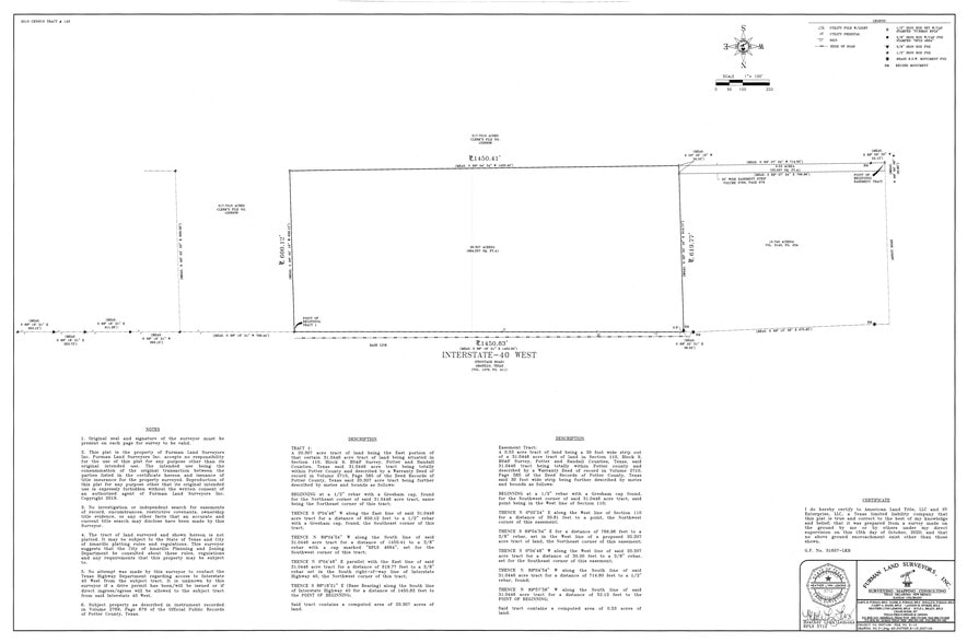
La propriété a une façade sur l'Interstate 40 près du chemin Arnot. Le terrain peut être divisé en 4 parcelles de 5 acres chacune. Les découpes des bordures de l'allée peuvent être consultées dans les documents. Les lots sont d'une valeur de 6$ pi2. Parfait pour les commerces de détail, les bureaux, les hôtels et les bâtiments médicaux !
Faits sur la propriété
1 Lot disponible
Lot
| Prix | 7 233 972 $ CAD | Taille du lot | 20,00 AC |
| Prix par AC | 361 698,61 $ CAD |
| Prix | 7 233 972 $ CAD |
| Prix par AC | 361 698,61 $ CAD |
| Taille du lot | 20,00 AC |
Property has frontage on Interstate 40 close to Arnot Rd. The land can be split into 4 parcels that are 5 acres each.The driveway curb cuts can be viewed in the documents. The lots are $6 sq ft. Perfect for retail, office, hotel and medical buildings
1 1
Exceptionnellement facile d’accès en voiture
100/100
Assez praticable en vélo
20/100
Impôts fonciers
| Numéro de lot | R-370-1100-6300-0 | Évaluation des bâtiments | 0 $ CAD |
| Évaluation du terrain | 4 195 $ CAD | Évaluation totale | 4 195 $ CAD |
Impôts fonciers
Numéro de lot
R-370-1100-6300-0
Évaluation du terrain
4 195 $ CAD
Évaluation des bâtiments
0 $ CAD
Évaluation totale
4 195 $ CAD
1 de 5
Vidéos
Visite extérieure 3D Matterport
Visite 3D Matterport
Photos
Vue depuis la rue
Rue
Carte
1 de 1
Présenté par
0 W IH 40
Vous êtes déjà membre? Connectez-vous
Hmm, il semble y avoir eu une erreur lors de l’envoi de votre message. Veuillez réessayer.
Merci! Votre message a été envoyé.



