Votre courriel a été envoyé.
0 Yates - SW Lakeland Multifamily Land Lot • Résidentiel • 29,72 Acres • 5 208 764 $ CAD • Lakeland, FL 33811



Certaines informations ont été traduites automatiquement.
Faits saillants de l'investissement
- Potential for significant ROI
- Flexible zoning for various development options
- Close to amenities and transportation
Résumé de l'annonce
Ideally positioned for professional renters, the site offers immediate proximity to Lakeland’s premier employment hubs, including Publix, GEICO, the Amazon Air Cargo Hub, and Lakeland Linder International Airport. This is a rare opportunity to develop a high-density project at the epicenter of Lakeland’s major infrastructure and economic growth.
Faits sur la propriété
1 Lot disponible
Lot
| Prix | 5 208 764 $ CAD | Taille du lot | 29,72 AC |
| Prix par AC | 175 261,25 $ CAD |
| Prix | 5 208 764 $ CAD |
| Prix par AC | 175 261,25 $ CAD |
| Taille du lot | 29,72 AC |
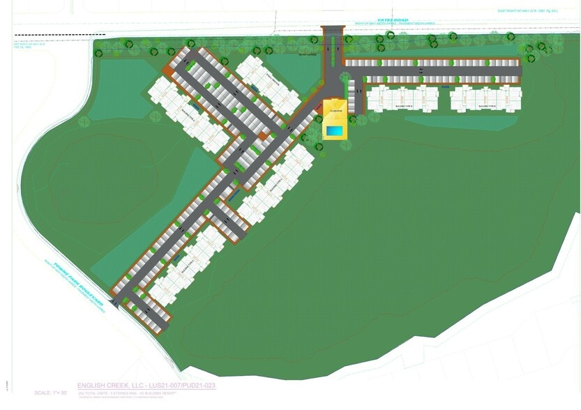
This entitled, 252-unit multifamily site is located near the signalized intersection of West Pipkin and Yates Road in Southwest Lakeland. The property is fully zoned with utilities at the site, allowing for an accelerated development timeline.
Description
This entitled, 252-unit multifamily site is located near the signalized intersection of West Pipkin and Yates Road in Southwest Lakeland. The property is fully zoned with utilities at the site, allowing for an accelerated development timeline. Residents will benefit from the recently completed West Pipkin Road expansion, which added lanes in both directions to significantly improve traffic flow and accessibility in this high-growth corridor. Ideally positioned for professional renters, the site offers immediate proximity to Lakeland’s premier employment hubs, including Publix, GEICO, the Amazon Air Cargo Hub, and Lakeland Linder International Airport. This is a rare opportunity to develop a high-density project at the epicenter of Lakeland’s major infrastructure and economic growth.
Impôts fonciers
| Numéro de lot | 23-29-09-000000-023110 | Évaluation des bâtiments | 0 $ CAD |
| Évaluation du terrain | 1 053 942 $ CAD | Évaluation totale | 1 053 942 $ CAD |
Impôts fonciers
Présenté par
0 Yates - SW Lakeland Multifamily Land
Hmm, il semble y avoir eu une erreur lors de l’envoi de votre message. Veuillez réessayer.
Merci! Votre message a été envoyé.

