Votre courriel a été envoyé.
00 Industry Center - Prime Industrial Assemblage – Industry Center Lot • Terrain industriel • 3,98 Acres • 2 330 430 $ CAD • Saint Augustine, FL 32084



Certaines informations ont été traduites automatiquement.
FAITS SAILLANTS DE L'INVESTISSEMENT
- -Ingénierie et plans approuvés
- - Two ingress/egress points on Industry Center Rd for enhanced public and fire-service access
- - Utilities available along Industry Center Rd
- - Route pavée avec accès direct à FL State Road 16
- - New traffic signals pending at Industry Center Rd & Stratton Rd / SR-16
- - Plans, surveys, and concept layouts available
RÉSUMÉ DE L'ANNONCE
FAITS SUR LA PROPRIÉTÉ
1 LOT DISPONIBLE
Lot
| Prix | 2 330 430 $ CAD | Taille du lot | 3,98 AC |
| Prix par AC | 585 535,26 $ CAD |
| Prix | 2 330 430 $ CAD |
| Prix par AC | 585 535,26 $ CAD |
| Taille du lot | 3,98 AC |
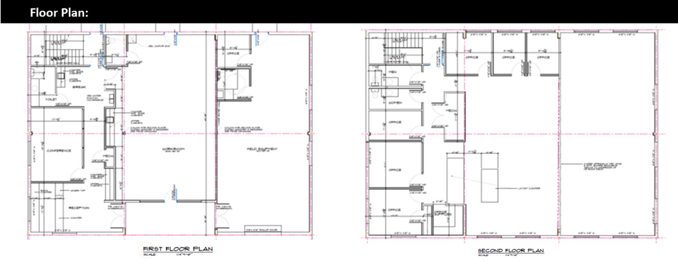
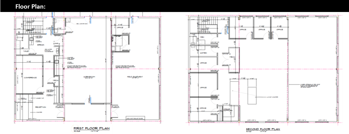
SITE AUTORISÉ disponible sur le chemin Industry Center reliant la route nationale 16. Le site d'environ 0,75 acre est entièrement autorisé pour un entrepôt à deux étages, une salle d'exposition et un bureau. Des plans et des sondages sont disponibles sur demande. Le chemin Industry Center a d
DESCRIPTION
SITE AUTORISÉ disponible sur le chemin Industry Center reliant la route nationale 16. Le site d'environ 0,75 acre est entièrement autorisé pour un entrepôt à deux étages, une salle d'exposition et un bureau. Des plans et des sondages sont disponibles sur demande. Le chemin Industry Center a un accès direct à la SR-16. La propriété est située en face du complexe du comté de St. Johns pour l'entretien de la flotte, la Division des routes et des ponts et l'ingénierie. Il s'agit d'une occasion idéale de construire un espace de bureau/entrepôt sur mesure dans le comté de St. Johns
Impôts fonciers
| Numéro de lot | 088280-0010 | Évaluation des bâtiments | 19 175 $ CAD |
| Évaluation du terrain | 271 470 $ CAD | Évaluation totale | 290 646 $ CAD |
Impôts fonciers
Présenté par
00 Industry Center - Prime Industrial Assemblage – Industry Center
Hmm, il semble y avoir eu une erreur lors de l’envoi de votre message. Veuillez réessayer.
Merci! Votre message a été envoyé.
