Votre courriel a été envoyé.
Pine Island Point - Outparcel 5 00 Sea Pine Terrain à louer de 2,81 acres • Terrain commercial • Myrtle Beach, SC 29577



Certaines informations ont été traduites automatiquement.
Faits saillants
- Prime location at Highway 17 & Highway 501
- Surrounded by top national retailers and strong co-tenancy
- Minutes from Myrtle Beach International Airport and major tourist attractions
- Adjacent to Coastal Grand Mall and 55+ residential community
- Pad-ready outparcels with stormwater infrastructure in place
LOT Disponible
Afficher les taux de location en
| Taux de location |
|
Taille du lot | 2,81 AC |
| Durée du bail | Négociable |
| Taux de location | |
| Durée du bail | Négociable |
| Taille du lot | 2,81 AC |
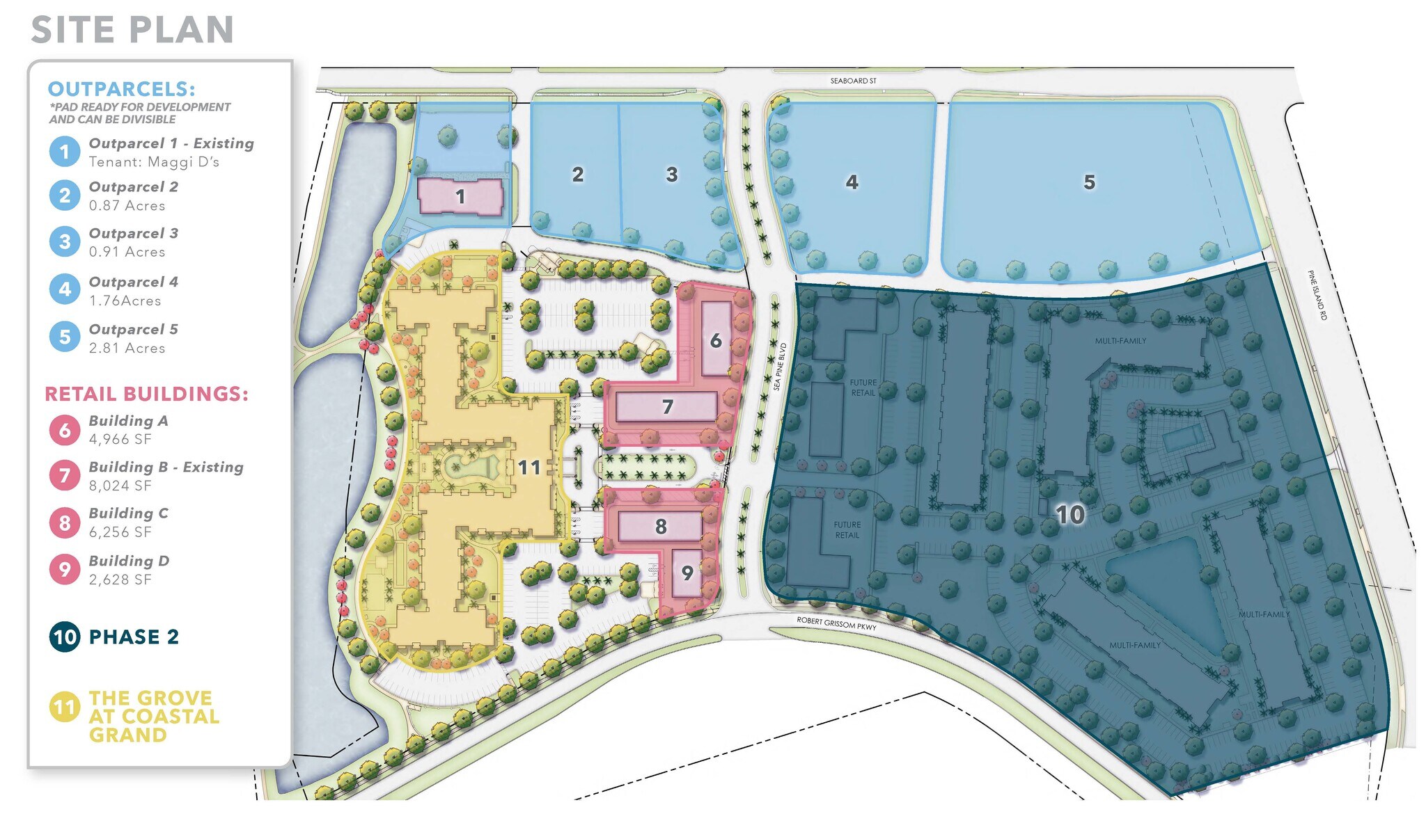
*PAD READY FOR DEVELOPMENT AND CAN BE DIVISIBLE **MASTER STORM WATER POND IS IN PLACE FOR OUTPARCELS
Aperçu de la propriété
Pine Island Point offers a premier retail destination in the heart of Myrtle Beach, strategically positioned at the intersection of Highway 17 and Highway 501. This vibrant development sits directly behind Coastal Grand Mall and adjacent to The Grove at Coastal Grand, a 194-unit 55+ community, ensuring a steady flow of local and visitor traffic. Building B is complete, featuring a single vacancy—Unit 401—ready for immediate tenant upfit. Pre-leasing opportunities are available for Buildings A, C, and D, providing flexible layouts to suit a variety of retail concepts. With ample parking, marquee visibility, and proximity to Myrtle Beach International Airport, this location is ideal for retailers seeking strong demographics and high exposure in one of America’s fastest-growing markets.
Faits sur la propriété
| Superficie totale disponible | 2,81 AC | Sous-type de propriété | Terrain commercial |
| Type de propriété | Terrain | Utilisation proposée | Commercial |
| Superficie totale disponible | 2,81 AC |
| Type de propriété | Terrain |
| Sous-type de propriété | Terrain commercial |
| Utilisation proposée | Commercial |
Présenté par
Pine Island Point - Outparcel 5 | 00 Sea Pine
Hmm, il semble y avoir eu une erreur lors de l’envoi de votre message. Veuillez réessayer.
Merci! Votre message a été envoyé.
