Se Connecter/S’inscrire
Votre courriel a été envoyé.
1 High St 1 435 pi² 81% Loué Commerce de détail Immeuble Milton Keynes MK17 8RQ 962 490 $ CAD (670,72 $ CAD/pi²) 7,87% Taux de capitalisation


Certaines informations ont été traduites automatiquement.
Faits saillants de l'investissement
- Woburn Sands is a market town located to the South East of Milton Keynes and within the administrative area of the city
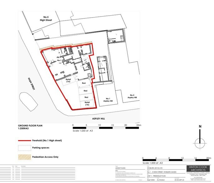
- Freehold retail investment for sale in thriving High Street location.
- The town is accessed by road from North or South by the A5130 and from the A5 and the West by Bow Brickhill Road.
Résumé de l'annonce
The freehold interest in the property, subject to the existing occupational leases, is available for sale at a price of £600,000 (+ VAT if applicable). A sale at this price equates to a net initial yield of 7.20%, before purchaser’s costs. Following the rent reviews effective 1st December 2026, based upon RPI being no less than the current rate at the review date, the expected income would increase to £46,725 pa equating to an effective yield of 7.79%.
Faits sur la propriété
Type de vente
Investissement
Type de propriété
Commerce de détail
Ancienneté
Pleine propriété
Sous-type de propriété
Commerce pied immeuble
Taille du bâtiment
1 435 pi²
Classe d’immeuble
B
Année de construction
1985
Prix
962 490 $ CAD
Prix par pi²
670,72 $ CAD
Taux de capitalisation
7,87%
Revenu net d’exploitation
75 748 $ CAD
Pourcentage loué
81%
Location
Multiples
Hauteur du bâtiment
2 étages
Coefficient d’occupation des sols de l’immeuble
1,10
Taille du lot
0,03 AC
Façade
43’ sur High Street
Commodités
- Espace d'entreposage
Disponibilité des espaces
- Espace
- Taille
- Utilisation de l’espace
- Poste
- Disponible
Disponible à la location à un loyer de 10 000£ par année exclusif
| Espace | Taille | Utilisation de l’espace | Poste | Disponible |
| 1C | 269 pi² | Commerce de détail | Embout | Maintenant |
1C
| Taille |
| 269 pi² |
| Utilisation de l’espace |
| Commerce de détail |
| Poste |
| Embout |
| Disponible |
| Maintenant |
1C
| Taille | 269 pi² |
| Utilisation de l’espace | Commerce de détail |
| Poste | Embout |
| Disponible | Maintenant |
Disponible à la location à un loyer de 10 000£ par année exclusif
1 1
1 de 3
Vidéos
Visite extérieure 3D Matterport
Visite 3D Matterport
Photos
Vue depuis la rue
Rue
Carte
1 de 1
Présenté par
1 High St
Vous êtes déjà membre? Connectez-vous
Hmm, il semble y avoir eu une erreur lors de l’envoi de votre message. Veuillez réessayer.
Merci! Votre message a été envoyé.
Votre message a été envoyé !
Activez votre compte LoopNet dès maintenant pour suivre les propriétés, recevoir des alertes en temps réel, gagner du temps sur vos demandes futures et bien plus encore.
