Votre courriel a été envoyé.
One North Wacker 1 N Wacker 3 492–132 529 pi² d'espace disponible • Bureau • 4 étoiles • Chicago, IL 60606

Certaines informations ont été traduites automatiquement.
Faits saillants
- Le lieu de travail de classe A de 51 étages en acier inoxydable doté d'un hall emblématique rempli de lumière donne une première impression audacieuse aux clients et aux invités.
- Deux restaurants sur place — Kinsley by Fairgrounds et One North Kitchen & Bar — offrent de délicieuses destinations de l'aube au crépuscule.
- Une approche personnalisée et personnalisée du service à la clientèle s'aligne sur les normes intransigeantes de nos clients.
- À quelques pas du restaurant, de la gare Union et d'Ogilvie, et à un accès immédiat au CTA, le meilleur de Chicago est un prolongement du lieu de travail.
- Les commodités inspirées des hôpitaux comprennent un centre de conditionnement physique privé et The Commons, un centre de conférences et d'événements pour les formations, les réunions et la collaboration.
- Les conditions de location flexibles sont soutenues par l'engagement à long terme et la stabilité financière d'Irvine Co.
Tous les espaces disponibles(11)
Afficher les taux de location en
- Espace
- Taille
- Terme
- Taux de location
- Utilisation de l’espace
- État
- Disponible
Newly built spec suite with a mostly open floor plan. Includes 9 private offices and 1 conference room that are window facing, as well as a kitchen area.
- Disposition du plan d’étage ouverte en général
- 1 salle de conférence
- Cuisine
- 9 bureaux privés
- Espace en excellent état
- Entièrement construit comme Bureau standard
- Peut être associé à un ou plusieurs espaces supplémentaires pour obtenir jusqu’à 8 263 pi² d’espace adjacent.
- Espace en excellent état
- Entièrement construit comme Bureau standard
- Peut être associé à un ou plusieurs espaces supplémentaires pour obtenir jusqu’à 8 263 pi² d’espace adjacent.
- Espace en excellent état
- Espace de trophée haut de gamme
- Le taux de location ne comprend pas les services publics, les services de bâtiment ou les dépenses immobilières.
- Le taux de location ne comprend pas les services publics, les services de bâtiment ou les dépenses immobilières.
- Plan ouvert
- Disposition du plan d’étage ouverte en général
- Peut être associé à un ou plusieurs espaces supplémentaires pour obtenir jusqu’à 52 099 pi² d’espace adjacent.
- Peut être associé à un ou plusieurs espaces supplémentaires pour obtenir jusqu’à 52 099 pi² d’espace adjacent.
| Espace | Taille | Terme | Taux de location | Utilisation de l’espace | État | Disponible |
| 4e étage, ste 400 | 6 137 pi² | Négociable | Sur demande Sur demande Sur demande Sur demande | Bureau | selon spécifications | Maintenant |
| 5e étage, ste 510 | 3 617 pi² | Négociable | Sur demande Sur demande Sur demande Sur demande | Bureau | construction complète | Maintenant |
| 5e étage, ste 540 | 4 646 pi² | Négociable | Sur demande Sur demande Sur demande Sur demande | Bureau | construction complète | Maintenant |
| 8e étage, ste 850 | 14 778 pi² | Négociable | Sur demande Sur demande Sur demande Sur demande | Bureau | construction partielle | Maintenant |
| 17e étage, ste 1740 | 5 784 pi² | Négociable | Sur demande Sur demande Sur demande Sur demande | Bureau | construction partielle | 2026-06-01 |
| 17e étage, ste 1775 | 4 545 pi² | Négociable | Sur demande Sur demande Sur demande Sur demande | Bureau | construction partielle | 2026-06-01 |
| 19e étage, ste 1930 | 4 417 pi² | Négociable | Sur demande Sur demande Sur demande Sur demande | Bureau | - | 2026-08-01 |
| 28e étage, ste 2800 | 33 014 pi² | Négociable | Sur demande Sur demande Sur demande Sur demande | Bureau | construction partielle | 2027-07-01 |
| 35e étage, ste 3575 | 3 492 pi² | Négociable | Sur demande Sur demande Sur demande Sur demande | Bureau | construction partielle | 2026-07-01 |
| 46e étage, ste 4600 | 29 202 pi² | Négociable | Sur demande Sur demande Sur demande Sur demande | Bureau | construction partielle | 2027-11-01 |
| 47e étage, ste 4700 | 22 897 pi² | Négociable | Sur demande Sur demande Sur demande Sur demande | Bureau | construction partielle | 2027-11-01 |
4e étage, ste 400
| Taille |
| 6 137 pi² |
| Terme |
| Négociable |
| Taux de location |
| Sur demande Sur demande Sur demande Sur demande |
| Utilisation de l’espace |
| Bureau |
| État |
| selon spécifications |
| Disponible |
| Maintenant |
5e étage, ste 510
| Taille |
| 3 617 pi² |
| Terme |
| Négociable |
| Taux de location |
| Sur demande Sur demande Sur demande Sur demande |
| Utilisation de l’espace |
| Bureau |
| État |
| construction complète |
| Disponible |
| Maintenant |
5e étage, ste 540
| Taille |
| 4 646 pi² |
| Terme |
| Négociable |
| Taux de location |
| Sur demande Sur demande Sur demande Sur demande |
| Utilisation de l’espace |
| Bureau |
| État |
| construction complète |
| Disponible |
| Maintenant |
8e étage, ste 850
| Taille |
| 14 778 pi² |
| Terme |
| Négociable |
| Taux de location |
| Sur demande Sur demande Sur demande Sur demande |
| Utilisation de l’espace |
| Bureau |
| État |
| construction partielle |
| Disponible |
| Maintenant |
17e étage, ste 1740
| Taille |
| 5 784 pi² |
| Terme |
| Négociable |
| Taux de location |
| Sur demande Sur demande Sur demande Sur demande |
| Utilisation de l’espace |
| Bureau |
| État |
| construction partielle |
| Disponible |
| 2026-06-01 |
17e étage, ste 1775
| Taille |
| 4 545 pi² |
| Terme |
| Négociable |
| Taux de location |
| Sur demande Sur demande Sur demande Sur demande |
| Utilisation de l’espace |
| Bureau |
| État |
| construction partielle |
| Disponible |
| 2026-06-01 |
19e étage, ste 1930
| Taille |
| 4 417 pi² |
| Terme |
| Négociable |
| Taux de location |
| Sur demande Sur demande Sur demande Sur demande |
| Utilisation de l’espace |
| Bureau |
| État |
| - |
| Disponible |
| 2026-08-01 |
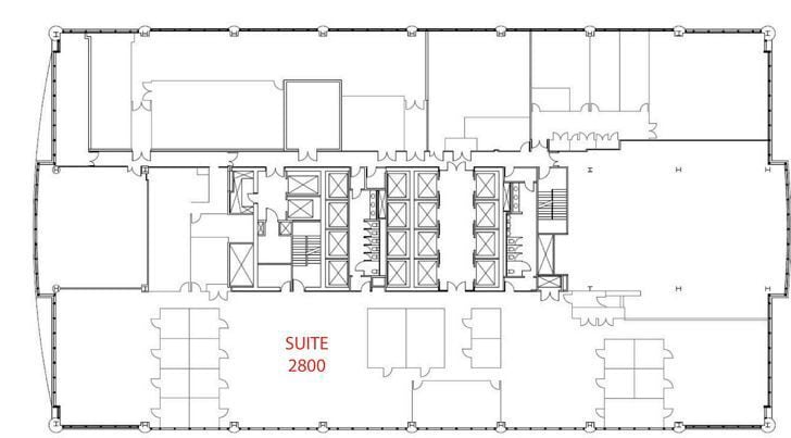
28e étage, ste 2800
| Taille |
| 33 014 pi² |
| Terme |
| Négociable |
| Taux de location |
| Sur demande Sur demande Sur demande Sur demande |
| Utilisation de l’espace |
| Bureau |
| État |
| construction partielle |
| Disponible |
| 2027-07-01 |
35e étage, ste 3575
| Taille |
| 3 492 pi² |
| Terme |
| Négociable |
| Taux de location |
| Sur demande Sur demande Sur demande Sur demande |
| Utilisation de l’espace |
| Bureau |
| État |
| construction partielle |
| Disponible |
| 2026-07-01 |
46e étage, ste 4600
| Taille |
| 29 202 pi² |
| Terme |
| Négociable |
| Taux de location |
| Sur demande Sur demande Sur demande Sur demande |
| Utilisation de l’espace |
| Bureau |
| État |
| construction partielle |
| Disponible |
| 2027-11-01 |
47e étage, ste 4700
| Taille |
| 22 897 pi² |
| Terme |
| Négociable |
| Taux de location |
| Sur demande Sur demande Sur demande Sur demande |
| Utilisation de l’espace |
| Bureau |
| État |
| construction partielle |
| Disponible |
| 2027-11-01 |
4e étage, ste 400
| Taille | 6 137 pi² |
| Terme | Négociable |
| Taux de location | Sur demande |
| Utilisation de l’espace | Bureau |
| État | selon spécifications |
| Disponible | Maintenant |
Newly built spec suite with a mostly open floor plan. Includes 9 private offices and 1 conference room that are window facing, as well as a kitchen area.
- Disposition du plan d’étage ouverte en général
- 9 bureaux privés
- 1 salle de conférence
- Espace en excellent état
- Cuisine
5e étage, ste 510
| Taille | 3 617 pi² |
| Terme | Négociable |
| Taux de location | Sur demande |
| Utilisation de l’espace | Bureau |
| État | construction complète |
| Disponible | Maintenant |
- Entièrement construit comme Bureau standard
- Espace en excellent état
- Peut être associé à un ou plusieurs espaces supplémentaires pour obtenir jusqu’à 8 263 pi² d’espace adjacent.
5e étage, ste 540
| Taille | 4 646 pi² |
| Terme | Négociable |
| Taux de location | Sur demande |
| Utilisation de l’espace | Bureau |
| État | construction complète |
| Disponible | Maintenant |
- Entièrement construit comme Bureau standard
- Espace en excellent état
- Peut être associé à un ou plusieurs espaces supplémentaires pour obtenir jusqu’à 8 263 pi² d’espace adjacent.
8e étage, ste 850
| Taille | 14 778 pi² |
| Terme | Négociable |
| Taux de location | Sur demande |
| Utilisation de l’espace | Bureau |
| État | construction partielle |
| Disponible | Maintenant |
- Espace de trophée haut de gamme
17e étage, ste 1740
| Taille | 5 784 pi² |
| Terme | Négociable |
| Taux de location | Sur demande |
| Utilisation de l’espace | Bureau |
| État | construction partielle |
| Disponible | 2026-06-01 |
17e étage, ste 1775
| Taille | 4 545 pi² |
| Terme | Négociable |
| Taux de location | Sur demande |
| Utilisation de l’espace | Bureau |
| État | construction partielle |
| Disponible | 2026-06-01 |
19e étage, ste 1930
| Taille | 4 417 pi² |
| Terme | Négociable |
| Taux de location | Sur demande |
| Utilisation de l’espace | Bureau |
| État | - |
| Disponible | 2026-08-01 |
- Le taux de location ne comprend pas les services publics, les services de bâtiment ou les dépenses immobilières.
28e étage, ste 2800
| Taille | 33 014 pi² |
| Terme | Négociable |
| Taux de location | Sur demande |
| Utilisation de l’espace | Bureau |
| État | construction partielle |
| Disponible | 2027-07-01 |
- Le taux de location ne comprend pas les services publics, les services de bâtiment ou les dépenses immobilières.
- Disposition du plan d’étage ouverte en général
- Plan ouvert
35e étage, ste 3575
| Taille | 3 492 pi² |
| Terme | Négociable |
| Taux de location | Sur demande |
| Utilisation de l’espace | Bureau |
| État | construction partielle |
| Disponible | 2026-07-01 |
46e étage, ste 4600
| Taille | 29 202 pi² |
| Terme | Négociable |
| Taux de location | Sur demande |
| Utilisation de l’espace | Bureau |
| État | construction partielle |
| Disponible | 2027-11-01 |
- Peut être associé à un ou plusieurs espaces supplémentaires pour obtenir jusqu’à 52 099 pi² d’espace adjacent.
47e étage, ste 4700
| Taille | 22 897 pi² |
| Terme | Négociable |
| Taux de location | Sur demande |
| Utilisation de l’espace | Bureau |
| État | construction partielle |
| Disponible | 2027-11-01 |
- Peut être associé à un ou plusieurs espaces supplémentaires pour obtenir jusqu’à 52 099 pi² d’espace adjacent.
Aperçu de la propriété
À l'épicentre de ce que Chicago a de meilleur à offrir, One North Wacker est un lieu de travail à l'élégance intemporelle qui engage et inspire à chaque tournant : d'une gamme complète d'équipements inspirés de l'hospitalité et d'espaces de travail flexibles adaptés à votre style de travail à un emplacement centralisé qui accélère tous les types de déplacements. Pour ceux qui sont prêts à élever le niveau de leur environnement de travail, One North Wacker offre le summum en matière de prestige, d'engagement et de succès, le tout soutenu par Irvine Co. une stabilité financière de premier plan de l'industrie et un service à la clientèle exceptionnel.
- Atrium
- Banque
- Accès contrôlé
- Installations de conférences
- Dépanneur
- Centre de conditionnement physique
- Service d'alimentation
- Métro
- Gestionnaire d'immeuble sur place
- Restaurant
Faits sur la propriété
Durabilité
Durabilité
Certification LEED Établi par le U.S. Green Building Council (USGBC, Conseil américain du bâtiment durable), le programme de certification LEED (Leadership in Energy and Environmental Design) est axé sur la conception, la construction, l’exploitation et l’entretien de bâtiments, de maisons et de quartiers écologiques. Sa vocation est d’aider les propriétaires et les exploitants à adopter des pratiques écoresponsables et à utiliser les ressources de façon efficace. La certification LEED est un symbole mondialement reconnu de réussite et de leadership en matière de développement durable. Pour obtenir la certification LEED, un projet doit obtenir des points en respectant des conditions préalables et un barème de crédits qui tiennent compte des émissions de carbone, de l’énergie, de l’eau, des déchets, du transport, des matériaux, de la santé et de la qualité de l’environnement intérieur. Les projets passent par un processus de vérification et d’évaluation et reçoivent un pointage correspondant à un niveau de certification LEED: Platine (80 points et plus) Or (60 à 79 points) Silver (50-59 points) Certifié (40 à 49 points)
Présenté par
One North Wacker | 1 N Wacker
Hmm, il semble y avoir eu une erreur lors de l’envoi de votre message. Veuillez réessayer.
Merci! Votre message a été envoyé.

























