Votre courriel a été envoyé.
10-12 10-14 Whitefriargate 3 062–11 406 pi² d'espace disponible • Commerce de détail • Hull HU1 2ER


Certaines informations ont été traduites automatiquement.
Faits saillants
- UK City of Culture 2017 with ongoing regeneration
- Vibrant cultural scene: Freedom Festival, Hull Truck Theatre, Bonus Arena
- £25m city centre public realm investment
- M62 motorway, one of the main east-west routes in the north of England, connects Hull to Leeds and beyond
Disponibilité des espaces (2)
Afficher les taux de location en
- Espace
- Taille
- Terme
- Taux de location
- Type
| Espace | Taille | Terme | Taux de location | Type de loyer | ||
| RDC | 8 344 pi² | 5 ans | Sur demande Sur demande Sur demande Sur demande | Réparation complète et assurance | ||
| RDC, ste 13-14 | 3 062 pi² | 3 ans | Sur demande Sur demande Sur demande Sur demande | À déterminer |
RDC
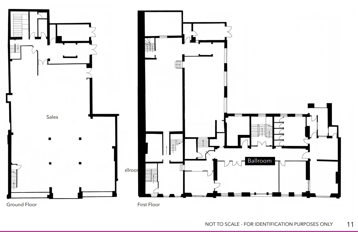
The ground floor provides a predominantly open-plan sales area benefiting from excellent frontage onto Whitefriargate. The first floor includes staff areas and storage, with potential to be reinstated into a large open-plan area or ballroom (subject to consents). Upper floors provide additional storage and ancillary accommodation, while the third floor and attic offer further flexibility for future adaptation. All areas are approximate and span a total of 9,637 sq ft across the building.
- Classe d’utilisation : Class 1A
- Situé en ligne avec d’autres commerces de détail
- Prominent Grade II* listed building with historic
- Former Neptune Inn with original banqueting hall
- Large open-plan ground floor sales area
- Generous storage across upper levels
- Impressive architectural features with heritage de
RDC, ste 13-14
The ground floor provides a predominantly open-plan sales area benefiting from excellent frontage onto Whitefriargate. The first floor includes staff areas and storage, with potential to be reinstated into a large open-plan area or ballroom (subject to consents). Upper floors provide additional storage and ancillary accommodation, while the third floor and attic offer further flexibility for future adaptation. All areas are approximate and span a total of 9,637 sq ft across the building.
- Classe d’utilisation : Class 1A
- Situé en ligne avec d’autres commerces de détail
- Prominent Grade II* listed building with historic
- Former Neptune Inn with original banqueting hall
- Large open-plan ground floor sales area
- Generous storage across upper levels
- Impressive architectural features with heritage de
Types de services
Le type de service et le montant du loyer que le locataire (preneur) est tenu de payer au propriétaire (bailleur) sur la durée du bail sont négociés avant la signature du bail par les deux parties. Le type de service varie selon les services fournis. Contactez le courtier inscripteur pour tout connaître sur les frais connexes et additionnels associés à chaque type de service.
1. Réparations et assurances complètes: Toutes les obligations de réparer et d’assurer la propriété (ou de sa part de la propriété) à l’interne comme à l’externe.
2. Réparations internes seulement: Le locataire est responsable des réparations internes seulement. Le propriétaire est responsable des réparations structurelles et externes.
3. Réparations et assurances internes: Le locataire est responsable des réparations internes et des assurances pour les parties internes de la propriété seulement. Le propriétaire est responsable des réparations structurelles et externes.
4. Négociable ou à déterminer: Cette option est utilisée lorsque le contact de location ne fournit pas le type de service.
Faits sur la propriété
| Superficie totale disponible | 11 406 pi² | Superficie commerciale brute | 19 369 pi² |
| Type de propriété | Commerce de détail | Année de construction | 1797 |
| Sous-type de propriété | Bien à usage mixte |
| Superficie totale disponible | 11 406 pi² |
| Type de propriété | Commerce de détail |
| Sous-type de propriété | Bien à usage mixte |
| Superficie commerciale brute | 19 369 pi² |
| Année de construction | 1797 |
À propos de la propriété
10–12 Whitefriargate is a substantial Grade II* listed retail building positioned on one of Hull’s premier shopping streets. The property offers accommodation across five floors, with the main trading areas situated on the ground and first floor, supported by generous storage and ancillary space above. Formerly the Neptune Inn and later Hull’s Custom House, the building retains significant historic character, including an ornate two-storey ballroom. Its prominent frontage, central location, and proximity to key leisure and cultural amenities make it a compelling opportunity for a wide range of occupiers.
- Espace d'entreposage
Principaux détaillants à proximité
Présenté par
10-12 | 10-14 Whitefriargate
Hmm, il semble y avoir eu une erreur lors de l’envoi de votre message. Veuillez réessayer.
Merci! Votre message a été envoyé.






