Se Connecter/S’inscrire
Votre courriel a été envoyé.
10 Browns Rd 20 757 pi² Industriel Immeuble Newtownabbey BT36 4RN 2 210 965 $ CAD (106,52 $ CAD/pi²)



Certaines informations ont été traduites automatiquement.
Résumé de l'annonce
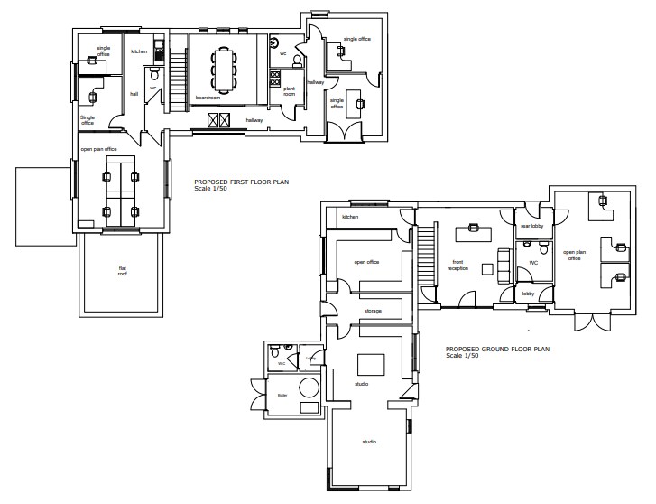
Cette propriété se compose d'un immeuble à bureaux magnifiquement aménagé de 2 780 pieds carrés, d'un entrepôt de 3 500 pieds carrés, d'un hangar couvert de 2 850 pieds carrés, d'une cour industrielle de 0,6 acre, d'un parking avec 17 places de stationnement et d'une grande maison individuelle de 2 659 m². Il y a deux allées distinctes sur cette propriété ; l'une qui mène à l'entrepôt ou aux bureaux et l'autre à la résidence.
Faits sur la propriété
| Prix | 2 210 965 $ CAD | Type de propriété | Industriel |
| Prix par pi² | 106,52 $ CAD | Aire du bâtiment louable | 20 757 pi² |
| Type de vente | Propriétaire utilisateur | Nombre d’étages | 2 |
| Ancienneté | Pleine propriété / Bail à long terme | Année de construction | 2000 |
| Prix | 2 210 965 $ CAD |
| Prix par pi² | 106,52 $ CAD |
| Type de vente | Propriétaire utilisateur |
| Ancienneté | Pleine propriété / Bail à long terme |
| Type de propriété | Industriel |
| Aire du bâtiment louable | 20 757 pi² |
| Nombre d’étages | 2 |
| Année de construction | 2000 |
1 de 6
Vidéos
Visite extérieure 3D Matterport
Visite 3D Matterport
Photos
Vue depuis la rue
Rue
Carte
Présenté par
10 Browns Rd
Vous êtes déjà membre? Connectez-vous
Hmm, il semble y avoir eu une erreur lors de l’envoi de votre message. Veuillez réessayer.
Merci! Votre message a été envoyé.
Votre message a été envoyé !
Activez votre compte LoopNet dès maintenant pour suivre les propriétés, recevoir des alertes en temps réel, gagner du temps sur vos demandes futures et bien plus encore.

