Votre courriel a été envoyé.
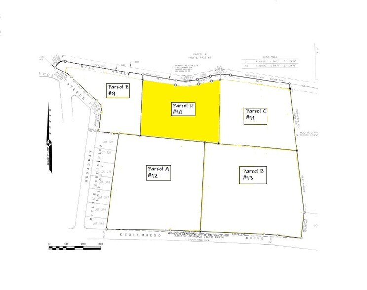
10 Parkside Court - McCloud Lot #10 Lot • Résidentiel • 3,75 Acres • 239 190 $ CAD • Mccloud, CA 96057



Certaines informations ont été traduites automatiquement.
Faits saillants de l'investissement
- Situé au centre de McCloud, à distance de marche des parcs, des écoles et des entreprises locales.
- La rue existante offre un accès facile au terrain et à l'exposition de la façade, si vous le souhaitez.
- Le terrain relativement plan et accessible facilite l'aménagement.
Faits sur la propriété
1 Lot disponible
Lot
| Prix | 239 190 $ CAD | Taille du lot | 3,75 AC |
| Prix par AC | 63 784,00 $ CAD |
| Prix | 239 190 $ CAD |
| Prix par AC | 63 784,00 $ CAD |
| Taille du lot | 3,75 AC |
Terrain principalement à niveau avec accès direct au chemin Mill à côté de l'avenue Broadway. Quelques arbres et plantes indigènes. Essai perc approuvé. Accès à pied au centre-ville, aux écoles, aux parcs, aux quartiers résidentiels et aux entreprises commerciales locales.
Description
Opportunités immobilières de premier ordre au cœur de McCloud, en Californie. Les grands terrains situés au centre sont à distance de marche de la ville et offrent des options de zonage flexibles (commercial, polyvalent, résidentiel et résidentiel à haute densité). Ce zonage polyvalent les rend idéales pour divers projets de développement. Situé dans la pittoresque région de Shasta Cascade, dans le nord de la Californie, McCloud attire de nombreux visiteurs toute l'année. C'est une porte d'entrée pour la pêche à la truite reconnue à l'échelle nationale dans les rivières McCloud, Sacramento et Klamath voisines. Les amateurs de plein air affleurent également ici pour explorer et gravir le mont Shasta, Castle Crags et les Alpes de la Trinité. McCloud est une plaque tournante pour le ski (alpin et de fond), le vélo et la randonnée jusqu'aux cascades locales, au lac Siskiyou, au lac Castle et au lac Shasta. Cet emplacement unique offre un mélange de beauté naturelle et de charme historique, ce qui en fait un endroit attrayant pour le développement résidentiel ou commercial. Maison de rêve, location de vacances ou entreprise, ce terrain offre la possibilité de faire partie d'une grande communauté historique.
Présenté par
Eleven Real Estate
10 Parkside Court - McCloud Lot #10
Hmm, il semble y avoir eu une erreur lors de l’envoi de votre message. Veuillez réessayer.
Merci! Votre message a été envoyé.

