Votre courriel a été envoyé.
Certaines informations ont été traduites automatiquement.
Faits saillants
- Possibilité pour les locataires de restaurants et de commerces de détail d'occuper les espaces au niveau de la rue des appartements Main & Mill construits en 2023 au centre de Lewisville.
- Les données démographiques sont optimistes, car la population dans un rayon de 3 milles devrait augmenter de 20 % de 2024 à 2029, après avoir augmenté de 7,2 % depuis 2020.
- Facilement accessible pour les consommateurs environnants grâce à l'Interstate 35, à l'autoroute 121 et au train léger Old Town Station, à moins d'un kilomètre de distance.
- Couvert sur 203 unités, fournissant aux consommateurs sur place et plus de 1 600 unités d'appartements construites de 2020 à 2024 dans un rayon d'un demi-mile.
- Des automobilistes bien établis se trouvent à proximité, comme le Lewisville Grand Theater, Bendt Distilling Co., Prairie House, Main Street Café et bien d'autres.
- Les collectivités à revenu élevé, comme Flower Mound, contribuent au revenu annuel du ménage de 115 000$ dans un rayon de 5 milles.
Tous les espaces disponibles(3)
Afficher les taux de location en
- Espace
- Taille
- Terme
- Taux de location
- Utilisation de l’espace
- Aménagement
- Disponible
Retail/Restaurant - Main St. frontage - High ceilings - Great visibility - Lots of light - Grease Trap in place
- Plafonds finis: 12’ - 20’
- Corner endcap at Main and Mill
- Insulation and drywall installed
- Covered visitor parking garage
- Peut être associé à un ou plusieurs espaces supplémentaires pour obtenir jusqu’à 3 738 pi² d’espace adjacent.
- Several Leave outs
- Great Windows with natural light
Retail/Restaurant - Main St. frontage - High ceilings - Great visibility - Lots of light - Grease Trap in place
- Situé en ligne avec d’autres commerces de détail
- Peut être associé à un ou plusieurs espaces supplémentaires pour obtenir jusqu’à 3 738 pi² d’espace adjacent.
- Plafonds finis: 12’ - 20’
- Accès facile à l'I-35 et à l'autoroute 121
- Excellente visibilité - Coin dur avec un signal à 4 voies
- Espace en excellent état
- Air central et chauffage
- Accessible aux fauteuils roulants
- Situé au centre du quartier Old Town Lewisville
Inline Space High ceilings Lots of light Great visibility
- Espace en excellent état
- Accessible aux fauteuils roulants
- Situé au centre du quartier Old Town Lewisville
- Disponibles au détail existants limités
- Climatisation centrale
- Accès facile à l'I-35 et à l'autoroute 121
- Excellente visibilité - Coin dur avec un signal à 4 voies
| Espace | Taille | Terme | Taux de location | Utilisation de l’espace | Aménagement | Disponible |
| 1er étage, ste A 2 | 1 912 pi² | Négociable | Sur demande Sur demande Sur demande Sur demande | Bureau/Commerce de détail | espace cloisonné | Maintenant |
| 1er étage, ste A1 | 1 826 pi² | Négociable | Sur demande Sur demande Sur demande Sur demande | Commerce de détail | espace cloisonné | Maintenant |
| 1er étage, ste B | 1 025 pi² | Négociable | Sur demande Sur demande Sur demande Sur demande | Commerce de détail | espace cloisonné | Maintenant |
1er étage, ste A 2
| Taille |
| 1 912 pi² |
| Terme |
| Négociable |
| Taux de location |
| Sur demande Sur demande Sur demande Sur demande |
| Utilisation de l’espace |
| Bureau/Commerce de détail |
| Aménagement |
| espace cloisonné |
| Disponible |
| Maintenant |
1er étage, ste A1
| Taille |
| 1 826 pi² |
| Terme |
| Négociable |
| Taux de location |
| Sur demande Sur demande Sur demande Sur demande |
| Utilisation de l’espace |
| Commerce de détail |
| Aménagement |
| espace cloisonné |
| Disponible |
| Maintenant |
1er étage, ste B
| Taille |
| 1 025 pi² |
| Terme |
| Négociable |
| Taux de location |
| Sur demande Sur demande Sur demande Sur demande |
| Utilisation de l’espace |
| Commerce de détail |
| Aménagement |
| espace cloisonné |
| Disponible |
| Maintenant |
1er étage, ste A 2
| Taille | 1 912 pi² |
| Terme | Négociable |
| Taux de location | Sur demande |
| Utilisation de l’espace | Bureau/Commerce de détail |
| Aménagement | espace cloisonné |
| Disponible | Maintenant |
Retail/Restaurant - Main St. frontage - High ceilings - Great visibility - Lots of light - Grease Trap in place
- Plafonds finis: 12’ - 20’
- Peut être associé à un ou plusieurs espaces supplémentaires pour obtenir jusqu’à 3 738 pi² d’espace adjacent.
- Corner endcap at Main and Mill
- Several Leave outs
- Insulation and drywall installed
- Great Windows with natural light
- Covered visitor parking garage
1er étage, ste A1
| Taille | 1 826 pi² |
| Terme | Négociable |
| Taux de location | Sur demande |
| Utilisation de l’espace | Commerce de détail |
| Aménagement | espace cloisonné |
| Disponible | Maintenant |
Retail/Restaurant - Main St. frontage - High ceilings - Great visibility - Lots of light - Grease Trap in place
- Situé en ligne avec d’autres commerces de détail
- Espace en excellent état
- Peut être associé à un ou plusieurs espaces supplémentaires pour obtenir jusqu’à 3 738 pi² d’espace adjacent.
- Air central et chauffage
- Plafonds finis: 12’ - 20’
- Accessible aux fauteuils roulants
- Accès facile à l'I-35 et à l'autoroute 121
- Situé au centre du quartier Old Town Lewisville
- Excellente visibilité - Coin dur avec un signal à 4 voies
1er étage, ste B
| Taille | 1 025 pi² |
| Terme | Négociable |
| Taux de location | Sur demande |
| Utilisation de l’espace | Commerce de détail |
| Aménagement | espace cloisonné |
| Disponible | Maintenant |
Inline Space High ceilings Lots of light Great visibility
- Espace en excellent état
- Climatisation centrale
- Accessible aux fauteuils roulants
- Accès facile à l'I-35 et à l'autoroute 121
- Situé au centre du quartier Old Town Lewisville
- Excellente visibilité - Coin dur avec un signal à 4 voies
- Disponibles au détail existants limités
À propos de la propriété
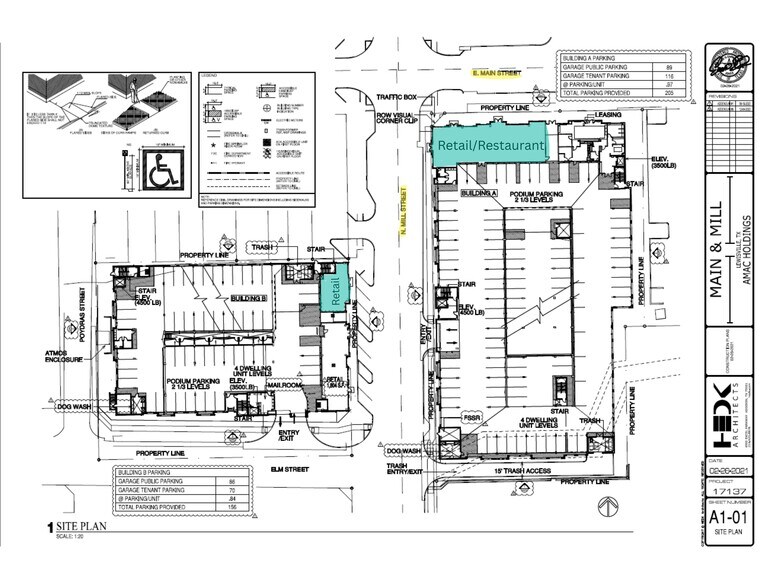
Découvrez cette occasion d'affaires de premier plan à Main & Mill, un complexe multifamilial à usage mixte exceptionnel situé dans le quartier de la vieille ville de Lewisville. Avec 203 unités d'appartements, Main & Mill offre aux clients intégrés des résidents juste au-dessus des espaces, un atout inestimable pour tout restaurant ou détaillant. Il y a aussi 175 places de stationnement publiques pour accueillir les conducteurs. Les espaces disponibles comprennent une suite de 945 pieds carrés donnant directement sur la rue Mill et une suite d'angle de 1 804 pieds carrés dans les rues Mill et Elm, dans l'édifice est. L'édifice ouest comprend une superficie de 3 611 pieds carrés à l'angle des rues Main et Mill, une intersection signalée qui garantit une visibilité supérieure. Main & Mill positionne les locataires dans une communauté dynamique qui favorise la commodité et l'accessibilité. Le nombre croissant de résidences et de destinations établies dans les environs signifie que les entreprises ont un flux constant de clients potentiels, locaux et visiteurs. Avec l'hôtel de ville de Lewisville situé à un pâté de maisons et une variété de commodités environnantes, l'artère est très fréquentée par les piétons, ce qui est idéal pour ces suites bien mises en valeur de la rue Main. Il se trouve également à deux minutes à pied de la populaire série de concerts d'été Sounds of Lewisville. Les communautés aisées de Lewisville, Coppell, Flower Mound et The Colony constituent une population idéale pour les locataires qui cherchent à tirer parti de revenus disponibles plus élevés. De plus, grâce à un accès facile aux principaux employeurs et aux nouveaux développements résidentiels, toute entreprise sera parfaitement située pour saisir l'élan de la croissance continue de Lewisville.
Faits sur la propriété
| Superficie totale disponible | 4 763 pi² | Sous-type de propriété | Appartement |
| Nombre d’unités | 203 | Style d’appartement | De hauteur moyenne |
| Max. contigu | 3 738 pi² | Taille du bâtiment | 220 000 pi² |
| Type de propriété | Immeuble residentiel | Année de construction | 2023 |
| Superficie totale disponible | 4 763 pi² |
| Nombre d’unités | 203 |
| Max. contigu | 3 738 pi² |
| Type de propriété | Immeuble residentiel |
| Sous-type de propriété | Appartement |
| Style d’appartement | De hauteur moyenne |
| Taille du bâtiment | 220 000 pi² |
| Année de construction | 2023 |
Brochure marketing
Commodités à proximité
Restaurants |
|||
|---|---|---|---|
| Praire House | Américain | $$$$$ | 2 Min. de marche |
| Old Town Market | - | $ | 3 Min. de marche |
| Easy Street Family Cafe | Café | $ | 4 Min. de marche |
| Prohibition Chicken | Poulet | - | 6 Min. de marche |
| Baja Rita's | Américain | $ | 7 Min. de marche |
| Martinez Grill & Taqueria | Grill | $ | 11 Min. de marche |
| Sweetie Pie's Ribeyes | Boulangerie | - | 15 Min. de marche |
Hôtels |
|
|---|---|
| Red Roof Inn |
81 Pièces
3 route min.
|
| La Quinta Inns & Suites |
129 Pièces
5 route min.
|
| Best Western Plus |
64 Pièces
6 route min.
|
| Tru by Hilton |
120 Pièces
7 route min.
|
À propos du propriétaire
Autres propriétés dans le ARBOR REALTY TRUST, INC portefeuille
Équipe de location
Carley Keiser, Principal/President
Kelly Lyons, President/Broker Associate
Présenté par
Main & Mill | 100 E Main St
Hmm, il semble y avoir eu une erreur lors de l’envoi de votre message. Veuillez réessayer.
Merci! Votre message a été envoyé.













