Votre courriel a été envoyé.
100 N Green Valley Pky 4 184–24 675 pi² d'espace disponible • Bureau/Médical • Henderson, NV 89074



Certaines informations ont été traduites automatiquement.
Faits saillants
- Strategically located in Henderson’s Green Valley submarket with high visibility from Interstate 215 and excellent accessibility.
Tous les espaces disponibles(3)
Afficher les taux de location en
- Espace
- Taille
- Terme
- Taux de location
- Utilisation de l’espace
- Aménagement
- Disponible
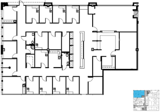
Suite 110 (Available January 2027) • Space Available: 5,753 SF • Lease Rate: Call for Pricing • Lease Type: Call for Pricing • Suite Description: Former Urgent Care suite available for lease. 12 Exam Rooms. 4 Private Offices. Nurses' Station. 2 Restrooms. Lab. Breakroom. 2 Storage Rooms. Waiting Room. Reception/Admin. Floor Plan: https://medwestrealty.com/wp-content/uploads/2022/01/Suite-110.png Available January 2027
- Entièrement construit comme Espace médical standard
- 4 bureaux privés
Suite Description: 9 Exam Rooms 3 Doctors Offices 2 In-Suite Restrooms Nurses' Station Breakroom 3 Storage Rooms Waiting Room Reception/Admin
- Entièrement construit comme Espace médical standard
- 3 bureaux privés
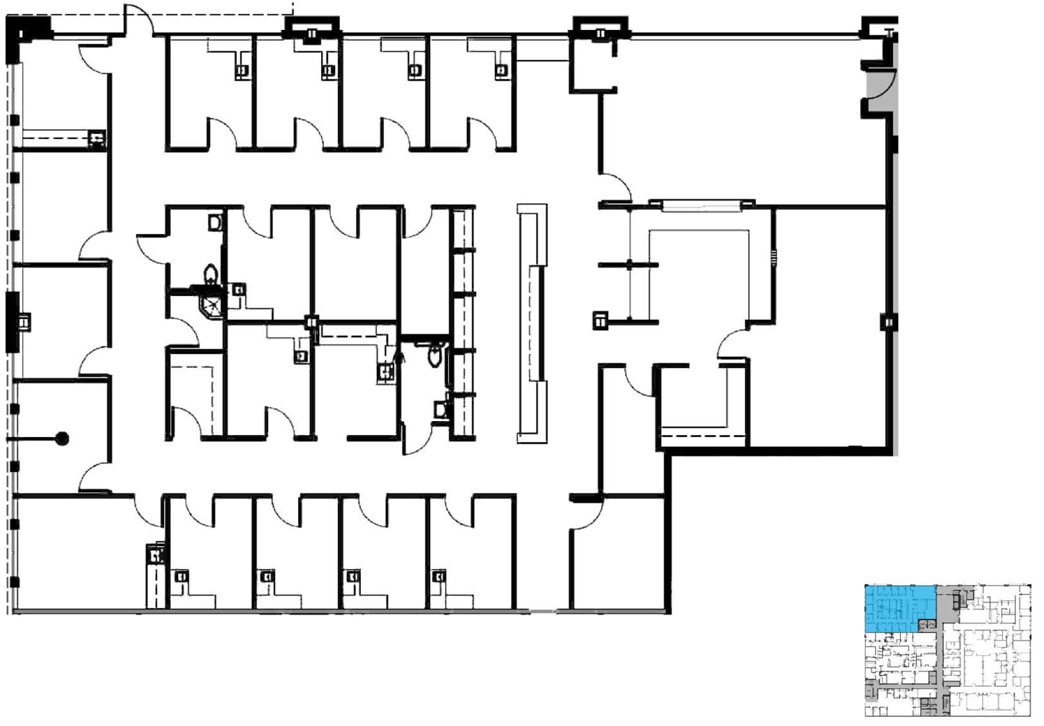
Suite 239 (Available in 60 Days) • Space Available: 5,280 SF (contiguous up to 9,461 RSF) • Lease Rate: Call for Pricing • Lease Type: Call for Pricing • Suite Description: Waiting Room. Reception/ Admin. 15 Exam Rooms. 2 In-Suite Restrooms. 3 Offices. Lab. Nurses' Station. Breakroom. Storage. Floor Plan: https://medwestrealty.com/wp-content/uploads/2022/01/Suite-239-scaled.jpg Available in 60 Days
- Entièrement construit comme Espace médical standard
- Disposition du plan d’étage ouverte en général
| Espace | Taille | Terme | Taux de location | Utilisation de l’espace | Aménagement | Disponible |
| 1er étage, ste 110 | 5 753 pi² | Négociable | Sur demande Sur demande Sur demande Sur demande | Bureau/Médical | construction complète | 2027-01-01 |
| 2e étage, ste 235 | 4 184 à 9 461 pi² | Négociable | Sur demande Sur demande Sur demande Sur demande | Bureau/Médical | construction complète | 2026-05-01 |
| 2e étage, ste 239 | 5 280 à 9 461 pi² | Négociable | Sur demande Sur demande Sur demande Sur demande | Bureau/Médical | construction complète | Maintenant |
1er étage, ste 110
| Taille |
| 5 753 pi² |
| Terme |
| Négociable |
| Taux de location |
| Sur demande Sur demande Sur demande Sur demande |
| Utilisation de l’espace |
| Bureau/Médical |
| Aménagement |
| construction complète |
| Disponible |
| 2027-01-01 |
2e étage, ste 235
| Taille |
| 4 184 à 9 461 pi² |
| Terme |
| Négociable |
| Taux de location |
| Sur demande Sur demande Sur demande Sur demande |
| Utilisation de l’espace |
| Bureau/Médical |
| Aménagement |
| construction complète |
| Disponible |
| 2026-05-01 |
2e étage, ste 239
| Taille |
| 5 280 à 9 461 pi² |
| Terme |
| Négociable |
| Taux de location |
| Sur demande Sur demande Sur demande Sur demande |
| Utilisation de l’espace |
| Bureau/Médical |
| Aménagement |
| construction complète |
| Disponible |
| Maintenant |
1er étage, ste 110
| Taille | 5 753 pi² |
| Terme | Négociable |
| Taux de location | Sur demande |
| Utilisation de l’espace | Bureau/Médical |
| Aménagement | construction complète |
| Disponible | 2027-01-01 |
Suite 110 (Available January 2027) • Space Available: 5,753 SF • Lease Rate: Call for Pricing • Lease Type: Call for Pricing • Suite Description: Former Urgent Care suite available for lease. 12 Exam Rooms. 4 Private Offices. Nurses' Station. 2 Restrooms. Lab. Breakroom. 2 Storage Rooms. Waiting Room. Reception/Admin. Floor Plan: https://medwestrealty.com/wp-content/uploads/2022/01/Suite-110.png Available January 2027
- Entièrement construit comme Espace médical standard
- 4 bureaux privés
2e étage, ste 235
| Taille | 4 184 à 9 461 pi² |
| Terme | Négociable |
| Taux de location | Sur demande |
| Utilisation de l’espace | Bureau/Médical |
| Aménagement | construction complète |
| Disponible | 2026-05-01 |
Suite Description: 9 Exam Rooms 3 Doctors Offices 2 In-Suite Restrooms Nurses' Station Breakroom 3 Storage Rooms Waiting Room Reception/Admin
- Entièrement construit comme Espace médical standard
- 3 bureaux privés
2e étage, ste 239
| Taille | 5 280 à 9 461 pi² |
| Terme | Négociable |
| Taux de location | Sur demande |
| Utilisation de l’espace | Bureau/Médical |
| Aménagement | construction complète |
| Disponible | Maintenant |
Suite 239 (Available in 60 Days) • Space Available: 5,280 SF (contiguous up to 9,461 RSF) • Lease Rate: Call for Pricing • Lease Type: Call for Pricing • Suite Description: Waiting Room. Reception/ Admin. 15 Exam Rooms. 2 In-Suite Restrooms. 3 Offices. Lab. Nurses' Station. Breakroom. Storage. Floor Plan: https://medwestrealty.com/wp-content/uploads/2022/01/Suite-239-scaled.jpg Available in 60 Days
- Entièrement construit comme Espace médical standard
- Disposition du plan d’étage ouverte en général
Aperçu de la propriété
Parkway Medical Plaza 100 North Green Valley Parkway, Henderson, NV 89074 Parkway Medical Plaza, in the Green Valley submarket of Henderson, Nevada, is a best-in-class medical outpatient building and home to a diverse group of medical providers. The building is anchored by a large ambulatory surgery center which is a joint venture between Dignity Health and United Surgical Partners. The property has on-site urgent care and imaging services for the community as well as Ob-Gyn, physical therapy, and family medicine among other providers. Parked at 5 cars per 1,000 square feet and adjacent to the 215 Freeway at Green Valley Parkway, the building provides an easy patient experience to see their provider. Adjacent retail (Smith’s, Starbucks, banks, etc.) add to the draw from the community and fantastic convenience for physicians and staff. Parkway Medical Plaza is a one-of-a-kind offering. ------------------------ Property Features: PROMINENT LOCATION & ACCESSIBILITY • 3-Story, Class A Medical Building • Building Area 88,958 SF • Abundant Surface and Covered Parking at 5 stalls per 1,000 SF IDEAL MARKET AND SITE LOCATION • Visible from Interstate 215 • 3 Miles from Dignity Health, St. Rose Dominican Siena Hospital • Prime Location, Excellent Demographics FLEXIBLE SUITE OPPORTUNITIES • Signage Opportunities • Built-out Suites • Views of Las Vegas Strip • Corner Location
- Accès 24 heures
- Ligne d'autobus
- Affichage
Faits sur la propriété
Sélectionner des locataires
- Étage
- Nom du locataire
- Secteur
- 2ᵉ
- Carelon Health
- Finance et assurances
- 2ᵉ
- Henderson myGeneration Senior Clinic
- Soins de santé et assistance sociale
- 3ᵉ
- Jackson Physical Therapy and Sports Medicine
- Soins de santé et assistance sociale
- 2ᵉ
- Naked MD
- Services
- 2ᵉ
- P3 Health Partners
- Soins de santé et assistance sociale
- 3ᵉ
- Parkway Recovery Care Center
- Soins de santé et assistance sociale
- 1ᵉʳ
- Parkway Surgery Center
- Soins de santé et assistance sociale
- 1ᵉʳ
- Pubelo Imaging
- Soins de santé et assistance sociale
- 3ᵉ
- Regenexx
- Soins de santé et assistance sociale
- 2ᵉ
- Vera Whole Health
- Soins de santé et assistance sociale
Présenté par
100 N Green Valley Pky
Hmm, il semble y avoir eu une erreur lors de l’envoi de votre message. Veuillez réessayer.
Merci! Votre message a été envoyé.






