Votre courriel a été envoyé.
100 Taylor St Unité de condo • Commerce de détail • 2 420 pi² • À vendre 743 247 $ CAD • Colonial Beach, VA 22443



Certaines informations ont été traduites automatiquement.
Faits saillants de l'investissement
- Walkable to boardwalk, town pier, beaches
- multiple layout options
- Lots of natural light
Résumé de l'annonce
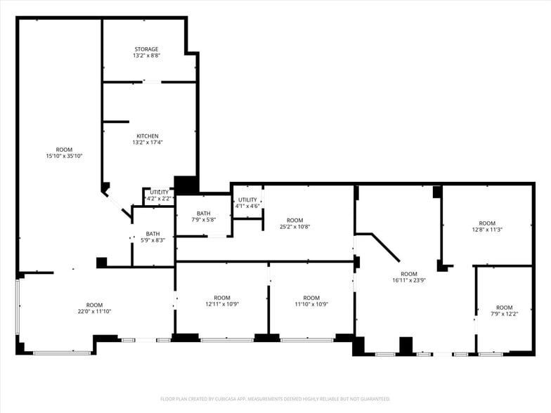
Ground-Floor Commercial Condo Units in the Heart of Colonial Beach A unique opportunity awaits with these two ground-floor commercial condo units, being sold together and currently operating as an art gallery. Located just one block from the Potomac River, sandy beach, and town pier, this property offers prime visibility and easy access in one of Colonial Beach’s most walkable areas. The flexible layout includes five gallery/showroom spaces, two storage rooms, a kitchen, two bathrooms, and a spacious private office, allowing for a wide range of business or investment possibilities. The space is ideal for retail, professional services, creative studios, or continuing as a gallery. With its central location in the town’s lively core and just steps from waterfront attractions, this property combines convenience with strong foot traffic. Whether you’re an investor seeking rental income or a business owner ready to establish yourself in Colonial Beach, these units present a rare chance to own adaptable commercial space in a growing community.
1 Unité disponible
Unité 101/102
| Taille de l’unité | 2 420 pi² | Utilisation du condo | Commerce de détail |
| Prix | 743 247 $ CAD | Type de vente | Investissement |
| Prix par pi² | 307,13 $ CAD |
| Taille de l’unité | 2 420 pi² |
| Prix | 743 247 $ CAD |
| Prix par pi² | 307,13 $ CAD |
| Utilisation du condo | Commerce de détail |
| Type de vente | Investissement |
Description
Ground-Floor Commercial Condo Units in the Heart of Colonial Beach A unique opportunity awaits with these two ground-floor commercial condo units, being sold together and currently operating as an art gallery. Located just one block from the Potomac River, sandy beach, and town pier, this property offers prime visibility and easy access in one of Colonial Beach’s most walkable areas. The flexible layout includes five gallery/showroom spaces, two storage rooms, a kitchen, two bathrooms, and a spacious private office, allowing for a wide range of business or investment possibilities. The space is ideal for retail, professional services, creative studios, or continuing as a gallery. With its central location in the town’s lively core and just steps from waterfront attractions, this property combines convenience with strong foot traffic. Whether you’re an investor seeking rental income or a business owner ready to establish yourself in Colonial Beach, these units present a rare chance to own adaptable commercial space in a growing community.
03-100 Taylor St Units 101 & 102-3
04-100 Taylor St Units 101 & 102-4
05-100 Taylor St Units 101 & 102-5
06-100 Taylor St Units 101 & 102-6
07-100 Taylor St Units 101 & 102-7
08-100 Taylor St Units 101 & 102-8
09-100 Taylor St Units 101 & 102-9
10-100 Taylor St Units 101 & 102-10
11-100 Taylor St Units 101 & 102-11
12-100 Taylor St Units 101 & 102-12
13-100 Taylor St Units 101 & 102-13
14-100 Taylor St Units 101 & 102-14
15-100 Taylor St Units 101 & 102-15
16-100 Taylor St Units 101 & 102-16
17-100 Taylor St Units 101 & 102-17
18-100 Taylor St Units 101 & 102-18
19-100 Taylor St Units 101 & 102-19
20-100 Taylor St Units 101 & 102-20
21-100 Taylor St Units 101 & 102-21
22-100 Taylor St Units 101 & 102-22
23-100 Taylor St Units 101 & 102-23
24-100 Taylor St Units 101 & 102-24
25-100 Taylor St Units 101 & 102-25
26-100 Taylor St Units 101 & 102-26
27-100 Taylor St Units 101 & 102-27
28-100 Taylor St Units 101 & 102-28
29-100 Taylor St Units 101 & 102-29
30-100 Taylor St Units 101 & 102-30
31-100 Taylor St Units 101 & 102-31
32-100 Taylor St Units 101 & 102-32
33-100 Taylor St Units 101 & 102-33
34-100 Taylor St Units 101 & 102-34
35-100 Taylor St Units 101 & 102-35
36-100 Taylor St Units 101 & 102-36
37-100 Taylor St Units 101 & 102-37
38-100 Taylor St Units 101 & 102-38
39-100 Taylor St Units 101 & 102-39
40-100 Taylor St Units 101 & 102-40
41-100 Taylor St Units 101 & 102-41
42-100 Taylor St Units 101 & 102-42
43-100 Taylor St Units 101 & 102-43
44-100 Taylor St Units 101 & 102-44
45-100 Taylor St Units 101 & 102-45
46-100 Taylor St Units 101 & 102-46
47-100 Taylor St Units 101 & 102-47
48-100 Taylor St Units 101 & 102-48
49-100 Taylor St Units 101 & 102-49
50-100 Taylor St Units 101 & 102-50
51-100 Taylor St Units 101 & 102-51
52-100 Taylor St Units 101 & 102-52
53-100 Taylor St Units 101 & 102-53
54-100 Taylor St Units 101 & 102-54
55-100 Taylor St Units 101 & 102-55
56-100 Taylor St Units 101 & 102-56
57-100 Taylor St Units 101 & 102-56-2
01-Floorplan
Faits sur la propriété
Commodités
- Lot de coin
- Affichage
- Bord de l’eau
Principaux détaillants à proximité
Présenté par
100 Taylor St
Hmm, il semble y avoir eu une erreur lors de l’envoi de votre message. Veuillez réessayer.
Merci! Votre message a été envoyé.

