Se Connecter/S’inscrire
Votre courriel a été envoyé.
Certaines informations ont été traduites automatiquement.
Faits saillants de l'investissement
- À distance de marche des palais de justice
- Plan d'étage efficace
- Zones de travail ouvertes
- 7 Bureaux spacieux privés
- Salle de bain privée de bureau
- Emplacement idéal pour le bureau de l'avocat
Résumé de l'annonce
Cet espace de bureaux à vendre au 1000 2nd St, Albuquerque, au Nouveau-Mexique, offre une excellente occasion aux professionnels qui cherchent à s'établir dans un emplacement privilégié. Stratégiquement située à une courte distance du palais de justice, cette propriété offre un accès pratique aux praticiens du droit et aux entreprises qui ont besoin de collaborer avec les services judiciaires.
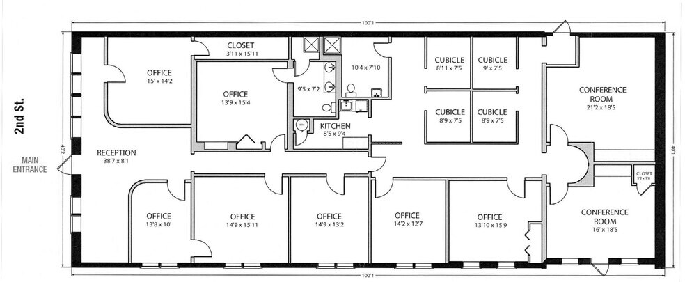
Le bureau dispose d'un aménagement moderne avec sept bureaux privés, deux salles de conférence, deux salles de bains, une kitchenette et quatre cabines. La lumière naturelle abondante et l'atmosphère professionnelle le rendent idéal pour diverses utilisations. Avec la bordure coupée sur le côté sud du bâtiment, la possibilité d'ajouter une porte enroulante et de convertir les salles de conférence en entrepôt ou en magasin crée une occasion fantastique pour quelqu'un qui a besoin d'un espace de bureau ou d'entrepôt au centre-ville. Sa proximité avec le palais de justice accroît son attrait, offrant la possibilité d'augmenter la circulation piétonnière et d'occasions de réseautage avec les professionnels du droit et les clients.
En plus de son emplacement privilégié près des principaux édifices gouvernementaux, les environs offrent une variété de commodités, y compris des restaurants, des cafés et des options de transport en commun, ce qui en fait un endroit pratique pour les employés et les clients. Cette combinaison d'accessibilité et d'environnement dynamique fait du 1000 2nd St un choix convaincant pour tous ceux qui cherchent à investir dans l'immobilier commercial à Albuquerque
Le bureau dispose d'un aménagement moderne avec sept bureaux privés, deux salles de conférence, deux salles de bains, une kitchenette et quatre cabines. La lumière naturelle abondante et l'atmosphère professionnelle le rendent idéal pour diverses utilisations. Avec la bordure coupée sur le côté sud du bâtiment, la possibilité d'ajouter une porte enroulante et de convertir les salles de conférence en entrepôt ou en magasin crée une occasion fantastique pour quelqu'un qui a besoin d'un espace de bureau ou d'entrepôt au centre-ville. Sa proximité avec le palais de justice accroît son attrait, offrant la possibilité d'augmenter la circulation piétonnière et d'occasions de réseautage avec les professionnels du droit et les clients.
En plus de son emplacement privilégié près des principaux édifices gouvernementaux, les environs offrent une variété de commodités, y compris des restaurants, des cafés et des options de transport en commun, ce qui en fait un endroit pratique pour les employés et les clients. Cette combinaison d'accessibilité et d'environnement dynamique fait du 1000 2nd St un choix convaincant pour tous ceux qui cherchent à investir dans l'immobilier commercial à Albuquerque
Taxes et dépenses d’exploitation (Réel - 2024) Cliquez ici pour accéder à |
Annuel (CAD) | Annuel par pi² (CAD) |
|---|---|---|
| Taxes |
-
|
-
|
| Dépenses d’exploitation |
-
|
-
|
| Total des dépenses |
$99,999
|
$9.99
|
Taxes et dépenses d’exploitation (Réel - 2024) Cliquez ici pour accéder à
| Taxes (CAD) | |
|---|---|
| Annuel | - |
| Annuel par pi² | - |
| Dépenses d’exploitation (CAD) | |
|---|---|
| Annuel | - |
| Annuel par pi² | - |
| Total des dépenses (CAD) | |
|---|---|
| Annuel | $99,999 |
| Annuel par pi² | $9.99 |
Faits sur la propriété
Type de vente
Propriétaire utilisateur
Type de propriété
Bureau
Taille du bâtiment
4 000 pi²
Classe d’immeuble
C
Année de construction
1948
Prix
1 016 359 $ CAD
Prix par pi²
254,09 $ CAD
Location
Multiples
Hauteur du bâtiment
1 étage
Superficie de plancher typique
4 000 pi²
Coefficient d’occupation des sols de l’immeuble
0,83
Taille du lot
0,11 AC
Zone de développement économique
Oui
Zonage
MX-M - Usage mixte - Intensité modérée
1 1
Moyennement praticable à pied
70/100
Moyennement facile d’accès en voiture
70/100
Transports en commun relativement accessibles
40/100
Moyennement praticable en vélo
60/100
Impôts fonciers
| Numéro de lot | 1-014-058-297194-4-35-01 | Évaluation des bâtiments | 132 335 $ CAD (2025) |
| Évaluation du terrain | 13 727 $ CAD (2025) | Évaluation totale | 146 062 $ CAD (2025) |
Impôts fonciers
Numéro de lot
1-014-058-297194-4-35-01
Évaluation du terrain
13 727 $ CAD (2025)
Évaluation des bâtiments
132 335 $ CAD (2025)
Évaluation totale
146 062 $ CAD (2025)
1 de 5
Vidéos
Visite extérieure 3D Matterport
Visite 3D Matterport
Photos
Vue depuis la rue
Rue
Carte
1 de 1
Présenté par
1000 2nd St NW
Vous êtes déjà membre? Connectez-vous
Hmm, il semble y avoir eu une erreur lors de l’envoi de votre message. Veuillez réessayer.
Merci! Votre message a été envoyé.



