Votre courriel a été envoyé.
Southgate Center 1001-1013 E Dimond Blvd 1 060–2 708 pi² d'espace disponible • Commerce de détail • Anchorage, AK 99515


Certaines informations ont été traduites automatiquement.
Faits saillants
- Building leased on a full NNN basis.
- Co-tenants include: AK Hears, Mochi Inc. Sparta Pizza and Starbucks.
Disponibilité des espaces (2)
Afficher les taux de location en
- Espace
- Taille
- Terme
- Taux de location
- Type de loyer
| Espace | Taille | Terme | Taux de location | Type de loyer | ||
| 1er étage, ste 2B | 1 648 pi² | 3-10 ans | 57,14 $ CAD/pi²/an 4,76 $ CAD/pi²/mois 94 169 $ CAD/an 7 847 $ CAD/mois | Loyer hypernet | ||
| 1er étage, ste 2C | 1 060 pi² | 3-10 ans | 57,14 $ CAD/pi²/an 4,76 $ CAD/pi²/mois 60 570 $ CAD/an 5 047 $ CAD/mois | Loyer hypernet |
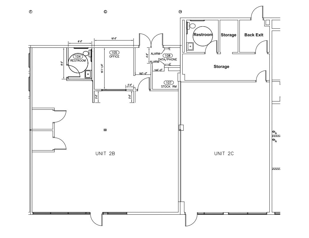
1005 E Dimond Blvd - 1er étage - ste 2B
Retail Center unit at the corner of Dimond Blvd. and Old Seward Highway, one of the busiest intersections in Anchorage, see average daily traffic counts below
- Le taux de location ne comprend pas les services publics, les services de bâtiment ou les dépenses immobilières.
- Partiellement construit comme Espace de commerce de détail standard
- Salle de bains privée
- $3.50 per sf per month plus full NNN
1005 E Dimond Blvd - 1er étage - ste 2C
Retail Center unit at the corner of Dimond Blvd. and Old Seward Highway, one of the busiest intersections in Anchorage, see average daily traffic counts below
- Le taux de location ne comprend pas les services publics, les services de bâtiment ou les dépenses immobilières.
- Partiellement construit comme Espace de commerce de détail standard
- Situé en ligne avec d’autres commerces de détail
- Salle de bains privée
- Entreposage sécurisé
- $3.50 per sf per month plus full NNN
Types de loyers
Le type et le montant du loyer que le locataire (preneur) est tenu de payer au propriétaire (bailleur) sur la durée du bail sont négociés avant la signature du bail par les deux parties. Le type de loyer varie selon les services fournis. Par exemple, le prix d’un loyer hypernet est habituellement inférieur à celui d’un bail à service complet puisque le locataire est tenu d’assumer des dépenses additionnelles par rapport au loyer de base. Contactez le courtier inscripteur pour tout connaître sur les frais connexes et additionnels associés à chaque type de loyer.
1. Service complet: Un taux de location qui comprend des services standards liés à l’immeuble fournis par le propriétaire dans le cadre d’une location annuelle de base.
2. Loyer supernet: Le locataire paie seulement deux des frais de l’immeuble. Le propriétaire et le locataire déterminent ces frais spécifiques avant la signature du bail.
3. Loyer hypernet: Un bail en vertu duquel le locataire est responsable de tous les frais liés à sa part proportionnelle d’occupation de l’immeuble.
4. Brut modifié: Le loyer brut modifié désigne un type général de taux de location dans lequel le locataire est habituellement responsable de sa part proportionnelle d’un ou de plusieurs frais. C’est le propriétaire qui paie les frais restants. Considérez les structures tarifaires courantes suivantes applicables aux loyers bruts modifiés: 4. Plus les services: Un type de bail brut modifié suivant lequel le locataire est responsable de sa part proportionnelle des coûts des services publics, en plus du loyer. 4. Plus le nettoyage: Un type de bail brut modifié suivant lequel le locataire est responsable de sa part proportionnelle des coûts de nettoyage, en plus du loyer. 4. Plus l'électricité: Un type de bail brut modifié suivant lequel le locataire est responsable de sa part proportionnelle des coûts d’électricité, en plus du loyer. 4. Plus l’électricité et le nettoyage: Un type de bail brut modifié dans lequel le locataire est responsable de sa part proportionnelle des coûts d’électricité et de nettoyage, en plus du loyer. 4. Plus les services publics et le nettoyage: Un type de bail brut modifié dans lequel le locataire est responsable de sa part proportionnelle des coûts des services publics et de nettoyage, en plus du loyer. 4. Bail industriel brut: Un type de bail brut modifié dans lequel le locataire paie un ou plusieurs des frais, en plus du loyer. Le propriétaire et le locataire déterminent ces frais spécifiques avant la signature du bail.
5. L’électricité est à la charge du locataire: Le propriétaire paie pour tous les services et le locataire est responsable de sa propre utilisation de l’éclairage et des prises électriques dans l’espace qu’il occupe.
6. Négociable ou sur demande: Cette option est utilisée lorsque le contact de location ne précise pas le type de loyer ou de service.
7. À déterminer: À déterminer ; utilisé pour les immeubles dont le type de services ou de loyer n’est pas connu, souvent quand l’immeuble n’est pas encore construit.
Sélectionner des locataires à Southgate Center
- Locataire
- Description
- Emplacements US
- Portée
- AK Hears
- Soins de santé et assistance sociale
- -
- -
- Mochi Inc
- Détaillant
- -
- -
- Sparta Pizza
- Restaurant
- 1
- -
- Starbucks
- Café
- 21 679
- International
| Locataire | Description | Emplacements US | Portée |
| AK Hears | Soins de santé et assistance sociale | - | - |
| Mochi Inc | Détaillant | - | - |
| Sparta Pizza | Restaurant | 1 | - |
| Starbucks | Café | 21 679 | International |
Faits sur la propriété
À propos de la propriété
Situé à l'angle nord-est de Dimond Blvd et Old Seward Highway, le Southgate Shopping Center est dominé par Starbucks et offre l'une des meilleures opportunités de visibilité de marque dans le sud d'Anchorage.
- Enseigne sur pylône
Principaux détaillants à proximité
Présenté par
Southgate Center | 1001-1013 E Dimond Blvd
Hmm, il semble y avoir eu une erreur lors de l’envoi de votre message. Veuillez réessayer.
Merci! Votre message a été envoyé.


