Se Connecter/S’inscrire
Votre courriel a été envoyé.
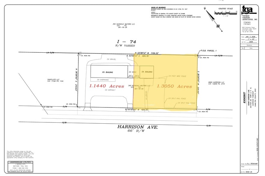
10048 Harrison Ave Lot • Terrain commercial • 1,3 Acres • Harrison, OH 45030



Certaines informations ont été traduites automatiquement.
Faits saillants de l'investissement
- Building on property also available for sale or for lease
- Prime location on Harrison Ave
- Strong visibility from the roadway
- Blank canvas for future development or investment
- Convenient to shopping, dining, and surrounding neighborhoods
Résumé de l'annonce
Excellent opportunity to own a parcel of land in a convenient Harrison location. Situated along Harrison Avenue, this property offers strong visibility and easy access to nearby amenities, major routes, and the growing Harrison community. Ideal for a variety of potential uses, the land provides a blank canvas for your vision—whether for future development, investment, or personal use. Enjoy the balance of small-town charm with close proximity to shopping, dining, and surrounding neighborhoods. Buyer to perform due diligence regarding zoning, utilities, and permitted uses.
Faits sur la propriété
1 Lot disponible
Lot
| Taille du lot | 1,30 AC |
| Taille du lot | 1,30 AC |
Land for sale with Barn.
1 1
Assez practicable à pied
40/100
Exceptionnellement facile d'accès en voiture
100/100
Transports en commun limités
20/100
Plutôt praticable en vélo
40/100
1 de 6
Vidéos
Visite extérieure 3D Matterport
Visite 3D Matterport
Photos
Vue depuis la rue
Rue
Carte
1 de 1
Présenté par
Powder Coating Specialty
10048 Harrison Ave
Vous êtes déjà membre? Connectez-vous
Hmm, il semble y avoir eu une erreur lors de l’envoi de votre message. Veuillez réessayer.
Merci! Votre message a été envoyé.
