Se Connecter/S’inscrire
Votre courriel a été envoyé.
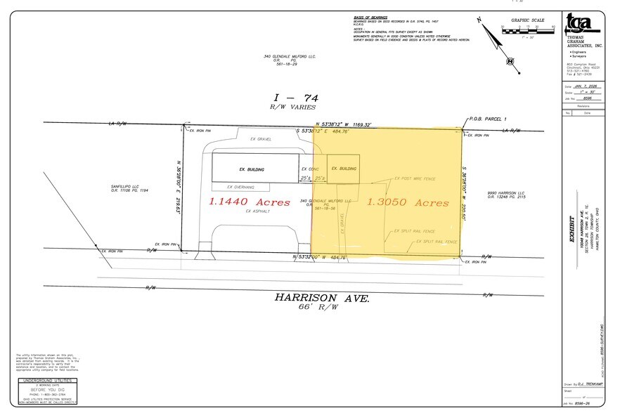
10048 Harrison Ave 2 342 pi² Industriel Immeuble Harrison, OH 45030 À vendre



Certaines informations ont été traduites automatiquement.
Résumé de l'annonce
Excellent opportunity to own a parcel of land in a convenient Harrison location. Situated along Harrison Avenue, this property offers strong visibility and easy access to nearby amenities, major routes, and the growing Harrison community. Ideal for a variety of potential uses, the land provides a blank canvas for your vision—whether for future development, investment, or personal use. Enjoy the balance of small-town charm with close proximity to shopping, dining, and surrounding neighborhoods. Buyer to perform due diligence regarding zoning, utilities, and permitted uses.
Faits sur la propriété
| Type de vente | Investissement ou propriétaire utilisateur | Aire du bâtiment louable | 2 342 pi² |
| Type de propriété | Industriel | Nombre d’étages | 1 |
| Sous-type de propriété | Entrepôt | Année de construction | 1998 |
| Classe d’immeuble | C | Location | Unique |
| Taille du lot | 1,30 AC | ||
| Zonage | General Business - General Business District | ||
| Type de vente | Investissement ou propriétaire utilisateur |
| Type de propriété | Industriel |
| Sous-type de propriété | Entrepôt |
| Classe d’immeuble | C |
| Taille du lot | 1,30 AC |
| Aire du bâtiment louable | 2 342 pi² |
| Nombre d’étages | 1 |
| Année de construction | 1998 |
| Location | Unique |
| Zonage | General Business - General Business District |
Disponibilité des espaces
- Espace
- Taille
- Utilisation de l’espace
- Aménagement
- Disponible
The ground will be leased out as well.
| Espace | Taille | Utilisation de l’espace | Aménagement | Disponible |
| 1er étage | 2 342 pi² | Industriel | espace cloisonné | 30 jours |
1er étage
| Taille |
| 2 342 pi² |
| Utilisation de l’espace |
| Industriel |
| Aménagement |
| espace cloisonné |
| Disponible |
| 30 jours |
1er étage
| Taille | 2 342 pi² |
| Utilisation de l’espace | Industriel |
| Aménagement | espace cloisonné |
| Disponible | 30 jours |
The ground will be leased out as well.
1 1
Assez praticable à pied
40/100
Exceptionnellement facile d’accès en voiture
100/100
Transports en commun limités
20/100
Plutôt praticable en vélo
40/100
1 de 6
Vidéos
Visite extérieure 3D Matterport
Visite 3D Matterport
Photos
Vue depuis la rue
Rue
Carte
1 de 1
Présenté par
Powder Coating Specialty
10048 Harrison Ave
Vous êtes déjà membre? Connectez-vous
Hmm, il semble y avoir eu une erreur lors de l’envoi de votre message. Veuillez réessayer.
Merci! Votre message a été envoyé.
