Votre courriel a été envoyé.
101 E Main St 2 000 pi² d'espace disponible • Bureau/Commerce de détail • Blanchester, OH 45107



Certaines informations ont été traduites automatiquement.
Faits saillants
- Heavy Traffic Corner Location High Visibility
Tous les espaces disponibles(1)
Afficher les taux de location en
- Espace
- Taille
- Terme
- Taux de location
- Utilisation de l’espace
- État
- Disponible
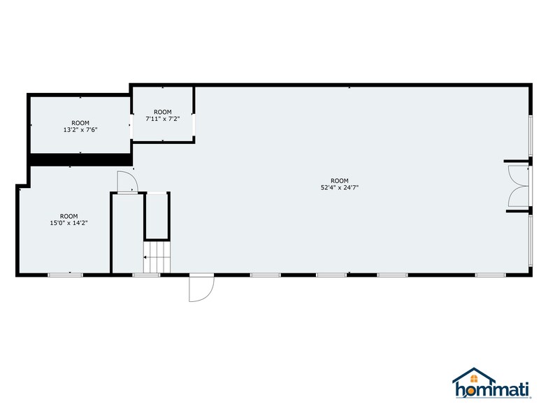
Versatile 2,000 sq ft commercial space available in the heart of Blanchester's historic downtown at 101 E Main St. Offered at $13/sq ft annually ($2,166/month), this property features soaring ceilings, natural light, and a flexible layout with an expansive open area, three private office-style rooms, and a loft for additional workspace or storage. Ideal for boutique retail, professional services, wellness practices, coworking, or creative studios. Located in a walkable district near shops and dining, with excellent visibility and Main Street charm. Zoned commercial with flexible floor plan to adapt to your business vision. Tenant responsible for utilities and insurance. Corner High-traffic potential and character-rich architecture make this a standout option for businesses seeking a unique, professional footprint. White box ready.
- Le taux comprend les services publics, les services de bâtiment et les dépenses immobilières.
- Convient pour 5 à 16 personnes
- Entièrement construit comme Bureau standard
| Espace | Taille | Terme | Taux de location | Utilisation de l’espace | État | Disponible |
| 1er étage | 2 000 pi² | Négociable | 17,77 $ CAD/pi²/an 1,48 $ CAD/pi²/mois 35 543 $ CAD/an 2 962 $ CAD/mois | Bureau/Commerce de détail | construction complète | Maintenant |
1er étage
| Taille |
| 2 000 pi² |
| Terme |
| Négociable |
| Taux de location |
| 17,77 $ CAD/pi²/an 1,48 $ CAD/pi²/mois 35 543 $ CAD/an 2 962 $ CAD/mois |
| Utilisation de l’espace |
| Bureau/Commerce de détail |
| État |
| construction complète |
| Disponible |
| Maintenant |
1er étage
| Taille | 2 000 pi² |
| Terme | Négociable |
| Taux de location | 17,77 $ CAD/pi²/an |
| Utilisation de l’espace | Bureau/Commerce de détail |
| État | construction complète |
| Disponible | Maintenant |
Versatile 2,000 sq ft commercial space available in the heart of Blanchester's historic downtown at 101 E Main St. Offered at $13/sq ft annually ($2,166/month), this property features soaring ceilings, natural light, and a flexible layout with an expansive open area, three private office-style rooms, and a loft for additional workspace or storage. Ideal for boutique retail, professional services, wellness practices, coworking, or creative studios. Located in a walkable district near shops and dining, with excellent visibility and Main Street charm. Zoned commercial with flexible floor plan to adapt to your business vision. Tenant responsible for utilities and insurance. Corner High-traffic potential and character-rich architecture make this a standout option for businesses seeking a unique, professional footprint. White box ready.
- Le taux comprend les services publics, les services de bâtiment et les dépenses immobilières.
- Entièrement construit comme Bureau standard
- Convient pour 5 à 16 personnes
Aperçu de la propriété
Versatile 2,000 sq ft commercial space available in the heart of Blanchester's historic downtown at 101 E Main St. Offered at $13/sq ft annually ($2,166/month), this property features soaring ceilings, natural light, and a flexible layout with an expansive open area, three private office-style rooms, and a loft for additional workspace or storage. Ideal for boutique retail, professional services, wellness practices, coworking, or creative studios. Located in a walkable district near shops and dining, with excellent visibility and Main Street charm. Zoned commercial with flexible floor plan to adapt to your business vision. Tenant responsible for utilities and insurance. Corner High-traffic potential and character-rich architecture make this a standout option for businesses seeking a unique, professional footprint. White box ready.
Faits sur la propriété
Présenté par
101 E Main St
Hmm, il semble y avoir eu une erreur lors de l’envoi de votre message. Veuillez réessayer.
Merci! Votre message a été envoyé.
