Votre courriel a été envoyé.
Sarasota Commerce Center II 101 Paramount Dr 1 340–47 241 pi² d'espace disponible • Bureau • 4 étoiles • Sarasota, FL 34232



Certaines informations ont été traduites automatiquement.
Faits saillants
- Class A office environment with Energy Star certification offering quality finishes and modern building systems
- Security card access, conference facilities, and an on-site fitness center providing key tenant amenities
- Exceptional parking capacity with 928 spaces supporting high user density at a 6.25/1,000 ratio
- Lakeside patio with seating and a landscaped campus setting that enhances tenant experience
- Located minutes from the I-75/Fruitville Road interchange for strong regional connectivity
- Walkable to restaurants, shopping, and daily-needs services in the Fruitville Road corridor
Tous les espaces disponibles(3)
Afficher les taux de location en
- Espace
- Taille
- Terme
- Taux de location
- Utilisation de l’espace
- Aménagement
- Disponible
Suite 100 offers a polished Class A workspace with immediate access to the building’s upgraded common areas, providing a professional environment for larger office users. Tenants benefit from proximity to the shared conference center, as well as the landscaped lakeside patio that creates a peaceful outdoor setting ideal for breaks or informal meetings. Its location within the building makes it well suited for teams seeking efficiency, modern amenities, and a welcoming campus atmosphere
- Le taux comprend les services publics, les services de bâtiment et les dépenses immobilières.
- Disposition du plan d’étage ouverte en général
- Direct access to conference facilities
- Ideal for larger office users
- Partiellement construit comme Bureau standard
- Upgraded common areas
- Close to lakeside patio
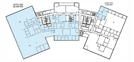
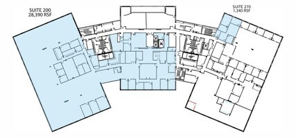
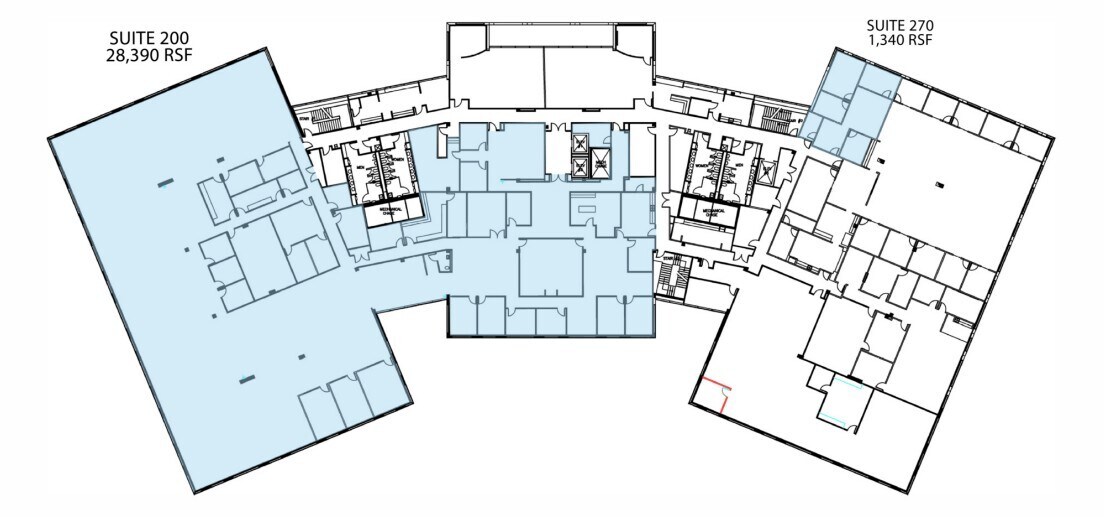
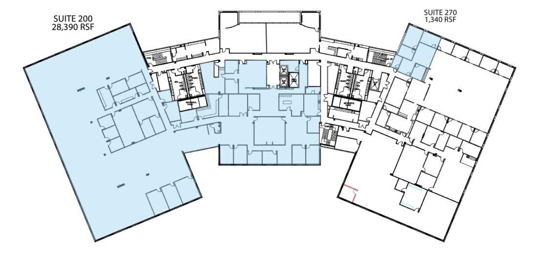
Suite 200 is the building’s largest contiguous offering, ideal for tenants requiring extensive space for collaborative departments or open workspace layouts. Its prominent location benefits from the building’s waterfront orientation, providing strong natural light throughout the day. With abundant on-site parking at an unmatched ratio, Suite 200 supports high-density operations while maintaining an attractive, accessible setting for employees and visitor
- Le taux comprend les services publics, les services de bâtiment et les dépenses immobilières.
- Disposition du plan d’étage ouverte en général
- Excellent natural light
- Entièrement construit comme Bureau standard
- Largest contiguous block in the building
- Immediate access to parking
Suite 270 is a highly efficient smaller suite perfect for professional services, boutique operations, or a satellite office environment. Its close proximity to shared amenities—including the fitness center and conference spaces—adds meaningful value for small teams seeking convenience within a premier office address. Quick access to I-75 enhances mobility for both staff and clients, making this a strategic, approachable workspace option. [attachment...091518.031 | PDF]
- Le taux comprend les services publics, les services de bâtiment et les dépenses immobilières.
- Disposition du plan d’étage ouverte en général
- Efficient layout supporting private workspace
- Entièrement construit comme Bureau standard
- Ideal small suite for professional services
- Quick access to I-75
| Espace | Taille | Terme | Taux de location | Utilisation de l’espace | Aménagement | Disponible |
| 1er étage, ste 100 | 17 511 pi² | Négociable | 48,18 $ CAD/pi²/an 4,01 $ CAD/pi²/mois 843 655 $ CAD/an 70 305 $ CAD/mois | Bureau | construction partielle | Maintenant |
| 2e étage, ste 200 | 28 390 pi² | Négociable | 48,18 $ CAD/pi²/an 4,01 $ CAD/pi²/mois 1 367 789 $ CAD/an 113 982 $ CAD/mois | Bureau | construction complète | Maintenant |
| 2e étage, ste 270 | 1 340 pi² | Négociable | 48,18 $ CAD/pi²/an 4,01 $ CAD/pi²/mois 64 559 $ CAD/an 5 380 $ CAD/mois | Bureau | construction complète | Maintenant |
1er étage, ste 100
| Taille |
| 17 511 pi² |
| Terme |
| Négociable |
| Taux de location |
| 48,18 $ CAD/pi²/an 4,01 $ CAD/pi²/mois 843 655 $ CAD/an 70 305 $ CAD/mois |
| Utilisation de l’espace |
| Bureau |
| Aménagement |
| construction partielle |
| Disponible |
| Maintenant |
2e étage, ste 200
| Taille |
| 28 390 pi² |
| Terme |
| Négociable |
| Taux de location |
| 48,18 $ CAD/pi²/an 4,01 $ CAD/pi²/mois 1 367 789 $ CAD/an 113 982 $ CAD/mois |
| Utilisation de l’espace |
| Bureau |
| Aménagement |
| construction complète |
| Disponible |
| Maintenant |
2e étage, ste 270
| Taille |
| 1 340 pi² |
| Terme |
| Négociable |
| Taux de location |
| 48,18 $ CAD/pi²/an 4,01 $ CAD/pi²/mois 64 559 $ CAD/an 5 380 $ CAD/mois |
| Utilisation de l’espace |
| Bureau |
| Aménagement |
| construction complète |
| Disponible |
| Maintenant |
1er étage, ste 100
| Taille | 17 511 pi² |
| Terme | Négociable |
| Taux de location | 48,18 $ CAD/pi²/an |
| Utilisation de l’espace | Bureau |
| Aménagement | construction partielle |
| Disponible | Maintenant |
Suite 100 offers a polished Class A workspace with immediate access to the building’s upgraded common areas, providing a professional environment for larger office users. Tenants benefit from proximity to the shared conference center, as well as the landscaped lakeside patio that creates a peaceful outdoor setting ideal for breaks or informal meetings. Its location within the building makes it well suited for teams seeking efficiency, modern amenities, and a welcoming campus atmosphere
- Le taux comprend les services publics, les services de bâtiment et les dépenses immobilières.
- Partiellement construit comme Bureau standard
- Disposition du plan d’étage ouverte en général
- Upgraded common areas
- Direct access to conference facilities
- Close to lakeside patio
- Ideal for larger office users
2e étage, ste 200
| Taille | 28 390 pi² |
| Terme | Négociable |
| Taux de location | 48,18 $ CAD/pi²/an |
| Utilisation de l’espace | Bureau |
| Aménagement | construction complète |
| Disponible | Maintenant |
Suite 200 is the building’s largest contiguous offering, ideal for tenants requiring extensive space for collaborative departments or open workspace layouts. Its prominent location benefits from the building’s waterfront orientation, providing strong natural light throughout the day. With abundant on-site parking at an unmatched ratio, Suite 200 supports high-density operations while maintaining an attractive, accessible setting for employees and visitor
- Le taux comprend les services publics, les services de bâtiment et les dépenses immobilières.
- Entièrement construit comme Bureau standard
- Disposition du plan d’étage ouverte en général
- Largest contiguous block in the building
- Excellent natural light
- Immediate access to parking
2e étage, ste 270
| Taille | 1 340 pi² |
| Terme | Négociable |
| Taux de location | 48,18 $ CAD/pi²/an |
| Utilisation de l’espace | Bureau |
| Aménagement | construction complète |
| Disponible | Maintenant |
Suite 270 is a highly efficient smaller suite perfect for professional services, boutique operations, or a satellite office environment. Its close proximity to shared amenities—including the fitness center and conference spaces—adds meaningful value for small teams seeking convenience within a premier office address. Quick access to I-75 enhances mobility for both staff and clients, making this a strategic, approachable workspace option. [attachment...091518.031 | PDF]
- Le taux comprend les services publics, les services de bâtiment et les dépenses immobilières.
- Entièrement construit comme Bureau standard
- Disposition du plan d’étage ouverte en général
- Ideal small suite for professional services
- Efficient layout supporting private workspace
- Quick access to I-75
Aperçu de la propriété
Édifice à bureaux de classe A classé Energy Star situé à quelques minutes de l'échangeur I-75/chemin Fruitville. Ce superbe bâtiment au bord de l'eau est situé dans un campus ressemblant à un parc avec un aménagement paysager luxuriant et des chênes vivants. Il est situé à distance de marche des restaurants, des magasins et d'autres destinations souhaitables, complétés par son facteur de piétabilité élevé. Cet immeuble de 3 étages a des aires communes qui complètent ses finitions haut de gamme et est facilement accessibles aux employés et aux clients. Parmi les points saillants, mentionnons l'accès par carte de sécurité, les centres de conférence, les centres de conditionnement physique et un vaste patio au bord du lac avec tables et chaises. En plus des nombreuses commodités offertes, cette propriété dispose d'une quantité importante de places de stationnement avec 928 places générant un ratio de 6,25 places par 1 000 pieds carrés.
- Accès contrôlé
- Installations de conférences
- Centre de conditionnement physique
- Gestionnaire d'immeuble sur place
- Climatisation
Faits sur la propriété
Sélectionner des locataires
- Étage
- Nom du locataire
- Secteur
- 1ᵉʳ
- Capstone Management
- Immobilier
- 2ᵉ
- CodeStudio.io, LLC
- Services professionnels, scientifiques et techniques
- 2ᵉ
- Florida Peninsula Insurance Company
- Finance et assurances
- 1ᵉʳ
- Informa Support Services, Inc.
- Fabrication
- Multiple
- Konica Minolta Business Solutions, U.S.A., Inc.
- Services professionnels, scientifiques et techniques
- 1ᵉʳ
- Shared Services Center
- Services administratifs et de soutien
- 2ᵉ
- Universal Group, Inc.
- Finance et assurances
- 3ᵉ
- Vertex Inc
- Information
Présenté par
Sarasota Commerce Center II | 101 Paramount Dr
Hmm, il semble y avoir eu une erreur lors de l’envoi de votre message. Veuillez réessayer.
Merci! Votre message a été envoyé.







