Votre courriel a été envoyé.
1010 W Jefferson St Unités de condo • Commerce de détail • 1 257-2 474 pi² • Boise, ID 83702



Certaines informations ont été traduites automatiquement.
Faits saillants de l'investissement
- Ground-level retail location at the base of a six-story garage surrounded by a plethora of thriving retailers with consistent foot traffic.
- Condominium owners will have ownership of the ground-floor common area and limited common-area space used for back-of-house and utility functions.
- Anchored by the YMCA Kissler Family Early Education Center, which allows local businesses to support their workforce with near-site childcare.
- Modern architectural construction designed to meet the City of Boise’s Green Building Code with construction scheduled to be completed in 2027.
Résumé de l'annonce
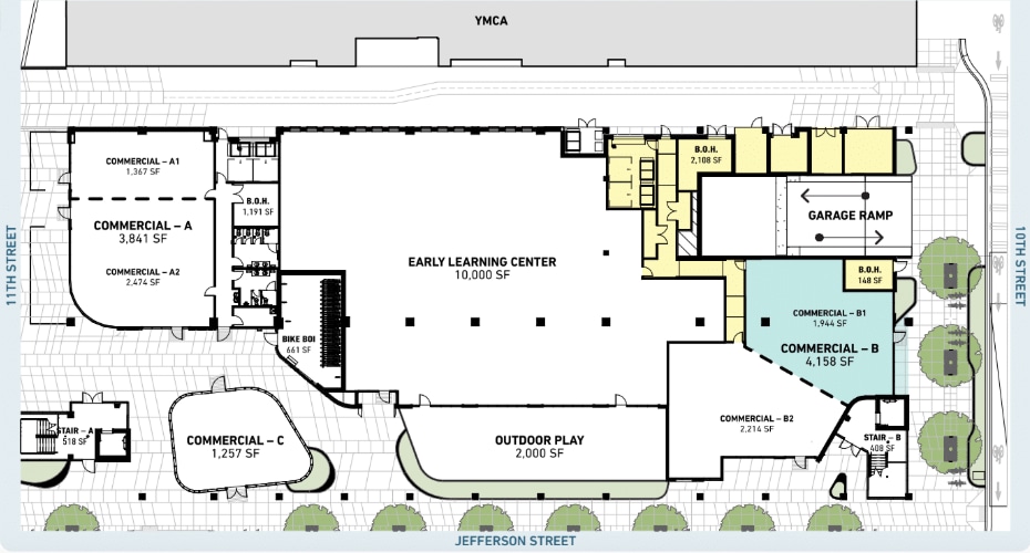
1010 West Jefferson Street presents a transformative mixed-use development in the heart of Downtown Boise, offering a high-visibility commercial opportunity in one of Boise’s most rapidly expanding urban districts. Designed to strengthen the Westside District and attract long-term private investment, the project features five ground-floor commercial condominium units totaling approximately 9,256 square feet, providing highly desirable street-level space with strong visibility, abundant natural light, heavy daytime foot traffic, and activated frontage along an emerging pedestrian corridor. Positioned between two signalized intersections and exposed to more than 18,000 vehicles per day, the site is ideally suited for retail, café, boutique fitness, service-based, and community-oriented commercial operators seeking a premier location within walking distance of the downtown amenities, the Idaho State Capitol, surrounding hotels, and a thriving blend of retail and service tenants. 1010 West Jefferson Street is a six-story public parking facility owned by CCDC and operated by ParkBOI, delivering approximately 446 stalls with monthly and hourly parking available to the public, making it one of the most strategically positioned parking assets in the downtown area. The property incorporates a secure BikeBOI facility, geothermal heating, potential rooftop photovoltaic infrastructure, and EV charging capacity serving up to 20% of stalls, aligning with Boise’s Green Building Code and the city’s sustainability initiatives. Anchoring the project is the YMCA Kissler Family Early Education Center, featuring approximately 12,000 square feet of indoor and outdoor childcare space. The site sits within Idaho’s capital city, with over 237,000 residents, generating over $5.7 billion in annual consumer spending, offering exceptional market depth for retailers, service providers, and professional tenants seeking a high-traffic Downtown Boise location. Seamless access to Interstates 184 and 84 and proximity to major downtown employment centers further position this project as a prime destination for businesses wanting to capitalize on Boise’s continued growth, vibrant urban core, and strong economic fundamentals.
Salle de données Cliquez ici pour accéder à
- Offering Memorandum
Faits sur la propriété
| Taille totale du bâtiment | 202 300 pi² | Planchers | 6 |
| Type de propriété | Spécialité | Superficie de plancher typique | 33 717 pi² |
| Sous-type de propriété | Parc de stationnement couvert | Année de construction | 2027 |
| Classe d’immeuble | B | Taille du lot | 0,84 AC |
| Zonage | MX-5 - Zonage commercial | ||
| Taille totale du bâtiment | 202 300 pi² |
| Type de propriété | Spécialité |
| Sous-type de propriété | Parc de stationnement couvert |
| Classe d’immeuble | B |
| Planchers | 6 |
| Superficie de plancher typique | 33 717 pi² |
| Année de construction | 2027 |
| Taille du lot | 0,84 AC |
| Zonage | MX-5 - Zonage commercial |
Commodités
- Accessible aux fauteuils roulants
- Station de recharge de voiture
5 Unités disponibles
Unité A1
| Taille de l’unité | 1 367 pi² | Type de vente | Propriétaire utilisateur |
| Utilisation du condo | Commerce de détail |
| Taille de l’unité | 1 367 pi² |
| Utilisation du condo | Commerce de détail |
| Type de vente | Propriétaire utilisateur |
Description
1,125 square feet of indoor space and 242 square feet of patio seating or outdoor area. It fronts the 11th Street plaza and abuts the alley adjacent to the YMCA, offering strong visibility and foot traffic. Shared restrooms in a limited common area are available for occupant use, along with access to a shared grease interceptor. The ceiling area is reserved for hood venting, and the space may be combined with Commercial A2.
View Suite A1 Floor Plan
Unité A2
| Taille de l’unité | 2 474 pi² | Type de vente | Propriétaire utilisateur |
| Utilisation du condo | Commerce de détail |
| Taille de l’unité | 2 474 pi² |
| Utilisation du condo | Commerce de détail |
| Type de vente | Propriétaire utilisateur |
Description
1,891 square feet of indoor space and 583 square feet of patio seating or outdoor area. This suite fronts the 11th Street plaza and is accessible via the breezeway, creating a highly walkable connection. Shared restrooms in the limited common area are available for occupants, and the space also has access to a shared grease interceptor with ceiling area reserved for hood venting. There is an option to upgrade the glazing to include a folding NanaWall or similar system for enhanced patio dining. This space may also be combined with Commercial A1.
View Floor A2 Floor Plan
Unité B1
| Taille de l’unité | 1 944 pi² | Type de vente | Propriétaire utilisateur |
| Utilisation du condo | Commerce de détail |
| Taille de l’unité | 1 944 pi² |
| Utilisation du condo | Commerce de détail |
| Type de vente | Propriétaire utilisateur |
Description
1,832 square feet of indoor space and 112 square feet of patio seating or outdoor area. It fronts 10th Street and offers strong visibility from the garage vehicle entrance. The owner is responsible for building restrooms within the space. Additional features include access to the shared grease interceptor and ceiling area reserved for hood venting. This suite may be combined with Commercial B2.
View Suite B1 Floor Plan
Unité B2
| Taille de l’unité | 2 214 pi² | Type de vente | Propriétaire utilisateur |
| Utilisation du condo | Commerce de détail |
| Taille de l’unité | 2 214 pi² |
| Utilisation du condo | Commerce de détail |
| Type de vente | Propriétaire utilisateur |
Description
1,874 square feet of indoor space and 340 square feet of patio seating or outdoor area. It fronts Jefferson Street and is highly visible from the garage elevator and stairwell at the corner of 10th and Jefferson. The owner is responsible for building restrooms within the space, and tenants have access to the shared grease interceptor along with ceiling area reserved for hood venting. There is also an option to upgrade the glazing to include a folding NanaWall or similar for enhanced patio dining. This suite may be combined with Commercial B1.
View Suite B2 Floor Plan
Unité C
| Taille de l’unité | 1 257 pi² | Type de vente | Propriétaire utilisateur |
| Utilisation du condo | Commerce de détail |
| Taille de l’unité | 1 257 pi² |
| Utilisation du condo | Commerce de détail |
| Type de vente | Propriétaire utilisateur |
Description
1,257 square feet of indoor space and fronts Jefferson Street with access via the breezeway. It is highly visible from the YMCA Kissler Family Early Education Center entrance. Shared restrooms in the limited common area are available for occupants, and the space includes access to the shared grease interceptor.
View Suite C Floor Plan
Présenté par
1010 W Jefferson St
Hmm, il semble y avoir eu une erreur lors de l’envoi de votre message. Veuillez réessayer.
Merci! Votre message a été envoyé.





