Se Connecter/S’inscrire
Votre courriel a été envoyé.
Jericho 5+ Acres M-2 1019 Jericho Rd 18 128 pi² 100% Loué Industriel Immeuble Aurora, IL 60506 5 472 000 $ CAD (301,85 $ CAD/pi²)



Certaines informations ont été traduites automatiquement.
Faits saillants de l'investissement
- While currently leased for school bus operations, the land has potential for other industrial uses or redevelopment in the future.
- Zoning (M-2): The M-2 zoning for general manufacturing
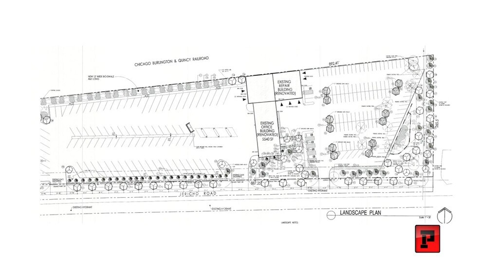
- Land Size: +/- 5 Acres of land is a significant asset, especially for parking, storage, and potential future expansion.
Résumé de l'annonce
Property Condition and Features
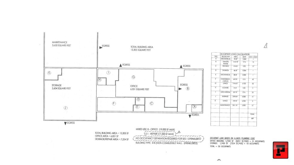
There is a office structure, terminal facility, and maintenance shop (totaling 18,128 sq ft)
Land Size: +/- 5 Acres of land is a significant asset, especially for parking, storage, and potential future expansion.
Zoning (M-2): The M-2 zoning for general manufacturing is generally considered favorable for industrial uses, but understanding the specific permitted and conditional uses in Aurora's ordinance is important for potential future flexibility.
While currently leased for school bus operations, the land has potential for other industrial uses or redevelopment in the future.
The information provided herein was obtained from sources believed reliable; however, Peter J. Poulos Real Estate makes no guarantees, warranties or representations as to the completeness or accuracy thereof. The presentation of this property is submitted subject to errors, omissions, change of price or conditions, prior sale or lease, or withdrawal without notice.
The property is currently leased please DO NOT DISTURB THE TENANTS.
There is a office structure, terminal facility, and maintenance shop (totaling 18,128 sq ft)
Land Size: +/- 5 Acres of land is a significant asset, especially for parking, storage, and potential future expansion.
Zoning (M-2): The M-2 zoning for general manufacturing is generally considered favorable for industrial uses, but understanding the specific permitted and conditional uses in Aurora's ordinance is important for potential future flexibility.
While currently leased for school bus operations, the land has potential for other industrial uses or redevelopment in the future.
The information provided herein was obtained from sources believed reliable; however, Peter J. Poulos Real Estate makes no guarantees, warranties or representations as to the completeness or accuracy thereof. The presentation of this property is submitted subject to errors, omissions, change of price or conditions, prior sale or lease, or withdrawal without notice.
The property is currently leased please DO NOT DISTURB THE TENANTS.
Salle de données Cliquez ici pour accéder à
- Market Information
- Investigations
Faits sur la propriété
| Prix | 5 472 000 $ CAD | Aire du bâtiment louable | 18 128 pi² |
| Prix par pi² | 301,85 $ CAD | Nombre d’étages | 1 |
| Type de vente | Investissement ou propriétaire utilisateur | Année de construction | 1957 |
| Type de propriété | Industriel | Ratio de stationnement | 2,48/1 000 pi² |
| Sous-type de propriété | Entrepôt | Effacer hauteur du plafond | 13’ |
| Classe d’immeuble | C | Nbre d’entrées dans les portes/au niveau du sol | 6 |
| Taille du lot | 5,20 AC | ||
| Zonage | M-2, Aurora - Zonage (M-2) : Le zonage M-2 pour la fabrication générale est généralement considéré comme favorable aux usages industriels, mais tout usage devrait être confirmé. | ||
| Prix | 5 472 000 $ CAD |
| Prix par pi² | 301,85 $ CAD |
| Type de vente | Investissement ou propriétaire utilisateur |
| Type de propriété | Industriel |
| Sous-type de propriété | Entrepôt |
| Classe d’immeuble | C |
| Taille du lot | 5,20 AC |
| Aire du bâtiment louable | 18 128 pi² |
| Nombre d’étages | 1 |
| Année de construction | 1957 |
| Ratio de stationnement | 2,48/1 000 pi² |
| Effacer hauteur du plafond | 13’ |
| Nbre d’entrées dans les portes/au niveau du sol | 6 |
| Zonage | M-2, Aurora - Zonage (M-2) : Le zonage M-2 pour la fabrication générale est généralement considéré comme favorable aux usages industriels, mais tout usage devrait être confirmé. |
Services publics
- Eau - Ville
- Égout - Ville
1 1
Assez practicable à pied
40/100
Exceptionnellement facile d'accès en voiture
100/100
Transports en commun limités
30/100
Plutôt praticable en vélo
50/100
Impôts fonciers
| Numéros de lot | Évaluation des bâtiments | 605 393 $ CAD | |
| Évaluation du terrain | 223 143 $ CAD | Évaluation totale | 828 536 $ CAD |
Impôts fonciers
Numéros de lot
Évaluation du terrain
223 143 $ CAD
Évaluation des bâtiments
605 393 $ CAD
Évaluation totale
828 536 $ CAD
1 de 4
Vidéos
Visite extérieure 3D Matterport
Visite 3D Matterport
Photos
Vue depuis la rue
Rue
Carte
1 de 1
Présenté par
Jericho 5+ Acres M-2 | 1019 Jericho Rd
Vous êtes déjà membre? Connectez-vous
Hmm, il semble y avoir eu une erreur lors de l’envoi de votre message. Veuillez réessayer.
Merci! Votre message a été envoyé.
