Votre courriel a été envoyé.
1020 Regent St
Madison, WI 53715
Bureau Propriété À louer
·
3 400 pi²


Certaines informations ont été traduites automatiquement.
Faits saillants
- Excellent visibility and accessibility along Regent Street with convenient access to downtown Madison and UW–Madison.
- Building signage is available.
- 8 on-site parking stalls available .at no additional cost
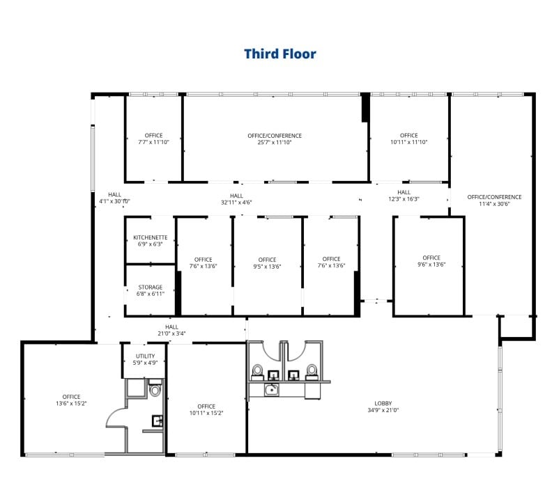
- Space boasts 10 private offices (6 windowed), reception area, breakroom with kitchenette, and in-suite bathrooms.
- Furniture is available.
Aperçu de la propriété
Located at 1020 Regent Street in Madison, WI, this 3,400 SF third-floor office suite offers full-floor occupancy within a well-located 10,200 SF, three-story building. Built in 1972 and zoned TSS, the property provides excellent visibility and accessibility along Regent Street with quick access to downtown Madison and UW–Madison. The suite includes 10 private offices—six windowed—as well as a welcoming reception area, a breakroom with kitchenette, and in-suite restrooms. Building signage and furniture are available, creating a turnkey opportunity for a wide range of office users. The property also features eight on-site parking stalls at no additional cost, a rare advantage in this central Madison location. The space is offered at a lease rate of $16.50/SF + electric.
- Accès 24 heures
- Ligne d'autobus
- Accès contrôlé
- Installations de conférences
- Affichage
- Climatisation
- Internet par fibre optique
