Votre courriel a été envoyé.
Flexible office space / After school activity 10247 Warren Pky 1 010 pi² d'espace disponible • Bureau • Frisco, TX 75035



Certaines informations ont été traduites automatiquement.
Faits saillants
- Available: ±5000.00 Sqft
- High quality and move in ready build out which includes specialized classrooms, and indoor play gym
- Spacious and well-maintained outdoor playground
- Strategically situated in the rapidly growing and affluent communities of Frisco, TX surrounded by high income residential neighborhoods
- Renovated in 2018, with a new roof from 2022
- Ample parking for staff and parents
Disponibilité de l’espace (1)
Afficher les taux de location en
- Espace
- Taille
- Terme
- Taux de location
- Type de loyer
| Espace | Taille | Terme | Taux de location | Type de loyer | ||
| 1er étage | 1 010 pi² | Négociable | 38,30 $ CAD/pi²/an 3,19 $ CAD/pi²/mois 38 683 $ CAD/an 3 224 $ CAD/mois | Loyer hypernet |
1er étage
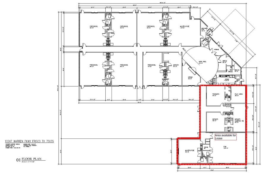
Rooms Breakdown: Gym: 1,250 SF Multipurpose Room: 600 SF Infants Sleeping Room: 420 SF Infants Room: 408 SF Toddlers Room: 415 SF Play Area: 280 SF Washroom attached to all the rooms. Flexible Layout: Open design allows easy customization Private Access: Separate entry/exit for independence and privacy Turnkey Ready: Minimal build-out required Parking & Access: Convenient parking and safe drop-off area Location: High-traffic Frisco corridor with strong visibility and growing demographics
- Le taux de location ne comprend pas les services publics, les services de bâtiment ou les dépenses immobilières.
- Entièrement construit comme Bureau standard
- Disposition intensive du bureau
- Espace en excellent état
Types de loyers
Le type et le montant du loyer que le locataire (preneur) est tenu de payer au propriétaire (bailleur) sur la durée du bail sont négociés avant la signature du bail par les deux parties. Le type de loyer varie selon les services fournis. Par exemple, le prix d’un loyer hypernet est habituellement inférieur à celui d’un bail à service complet puisque le locataire est tenu d’assumer des dépenses additionnelles par rapport au loyer de base. Contactez le courtier inscripteur pour tout connaître sur les frais connexes et additionnels associés à chaque type de loyer.
1. Service complet: Un taux de location qui comprend des services standards liés à l’immeuble fournis par le propriétaire dans le cadre d’une location annuelle de base.
2. Loyer supernet: Le locataire paie seulement deux des frais de l’immeuble. Le propriétaire et le locataire déterminent ces frais spécifiques avant la signature du bail.
3. Loyer hypernet: Un bail en vertu duquel le locataire est responsable de tous les frais liés à sa part proportionnelle d’occupation de l’immeuble.
4. Brut modifié: Le loyer brut modifié désigne un type général de taux de location dans lequel le locataire est habituellement responsable de sa part proportionnelle d’un ou de plusieurs frais. C’est le propriétaire qui paie les frais restants. Considérez les structures tarifaires courantes suivantes applicables aux loyers bruts modifiés: 4. Plus les services: Un type de bail brut modifié suivant lequel le locataire est responsable de sa part proportionnelle des coûts des services publics, en plus du loyer. 4. Plus le nettoyage: Un type de bail brut modifié suivant lequel le locataire est responsable de sa part proportionnelle des coûts de nettoyage, en plus du loyer. 4. Plus l'électricité: Un type de bail brut modifié suivant lequel le locataire est responsable de sa part proportionnelle des coûts d’électricité, en plus du loyer. 4. Plus l’électricité et le nettoyage: Un type de bail brut modifié dans lequel le locataire est responsable de sa part proportionnelle des coûts d’électricité et de nettoyage, en plus du loyer. 4. Plus les services publics et le nettoyage: Un type de bail brut modifié dans lequel le locataire est responsable de sa part proportionnelle des coûts des services publics et de nettoyage, en plus du loyer. 4. Bail industriel brut: Un type de bail brut modifié dans lequel le locataire paie un ou plusieurs des frais, en plus du loyer. Le propriétaire et le locataire déterminent ces frais spécifiques avant la signature du bail.
5. L’électricité est à la charge du locataire: Le propriétaire paie pour tous les services et le locataire est responsable de sa propre utilisation de l’éclairage et des prises électriques dans l’espace qu’il occupe.
6. Négociable ou sur demande: Cette option est utilisée lorsque le contact de location ne précise pas le type de loyer ou de service.
7. À déterminer: À déterminer ; utilisé pour les immeubles dont le type de services ou de loyer n’est pas connu, souvent quand l’immeuble n’est pas encore construit.
Sélectionner des locataires à Flexible office space / After school activity
- Locataire
- Description
- Emplacements US
- Portée
- Ettevort International School
- Services éducatifs
- -
- -
- Pinnacle Montessori
- Services éducatifs
- -
- -
| Locataire | Description | Emplacements US | Portée |
| Ettevort International School | Services éducatifs | - | - |
| Pinnacle Montessori | Services éducatifs | - | - |
Faits sur la propriété
| Superficie totale disponible | 1 010 pi² | Superficie commerciale brute | 4 891 pi² |
| Type de propriété | Commerce de détail | Année de construction | 2003 |
| Sous-type de propriété | Garderie |
| Superficie totale disponible | 1 010 pi² |
| Type de propriété | Commerce de détail |
| Sous-type de propriété | Garderie |
| Superficie commerciale brute | 4 891 pi² |
| Année de construction | 2003 |
À propos de la propriété
Discover a prime leasing opportunity at 10247 Warren Pkwy, Frisco, TX 75035. This 17,500 sq ft purpose-built facility offers a dedicated wing with separate entry/exit, featuring a large open gym, multipurpose room, infants and toddlers rooms, and a play area, each with attached restrooms having 5000 sq ft available for lease. The space is highly flexible, ideal for medical offices, therapy centers, daycare extensions, tutoring programs, co-working suites, or other specialty educational programs. The wing can be leased as a single-tenant unit or divided to accommodate multiple tenants, making it perfect for organizations of any size. Located on the east side of the building, the rest of the property will soon host a new Pinnacle Montessori Daycare, creating a dynamic, child-focused environment. With turnkey-ready condition, ample parking, separate access, and high visibility in a growing Frisco corridor, the Frisco Adaptive Wing offers a versatile, move-in-ready space in one of North Texas’ most desirable markets.
Principaux détaillants à proximité
Présenté par
Flexible office space / After school activity | 10247 Warren Pky
Hmm, il semble y avoir eu une erreur lors de l’envoi de votre message. Veuillez réessayer.
Merci! Votre message a été envoyé.



