Se Connecter/S’inscrire
Votre courriel a été envoyé.
1025 W Navitus Dr
Grand Chute, WI 54913
Building B · Bureau Propriété À louer
·
115 318 pi²


Certaines informations ont été traduites automatiquement.
Faits saillants
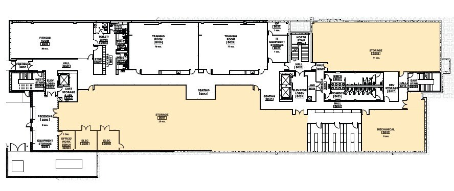
- Espace de bureau de classe A.
- Le bâtiment dispose de salles des FDI à chaque étage pour l'équipement de télécommunication et de données.
- Peut être disponible entièrement meublé
- Le bâtiment est entièrement protégé par un système de gicleurs à tuyauterie humide.
Faits sur la propriété
Type de bâtiment
Bureau
Année de construction
2016
Tarification de LoopNet
4 Étoiles
Hauteur du bâtiment
4 étages
Taille du bâtiment
115 318 pi²
Classe d’immeuble
A
Superficie de plancher typique
28 830 pi²
1 de 6
Vidéos
Visite extérieure 3D Matterport
Visite 3D Matterport
Photos
Vue depuis la rue
Rue
Carte
