Se Connecter/S’inscrire
Votre courriel a été envoyé.
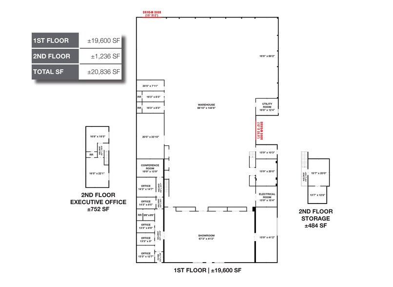
103 Railroad Avenue SW 20 836 pi² 100% Loué Industriel Immeuble Brunson, SC 29911 737 621 $ CAD (35,40 $ CAD/pi²)



Certaines informations ont été traduites automatiquement.
Faits saillants de l'investissement
- ±20,836 SF warehouse with ample office and showroom space
- ±2,264 SF office space including executive office on 2nd floor
- (1) 12’ x 22.5’ & (1) 15’ x 12’ drive-in doors
- ±18,572 SF warehouse/showroom/storage space
- ±22.5' clear height & clear span column spacing
- 800 Amp | 3-Phase power
Résumé de l'annonce
Positioned in Brunson, SC, 103 Railroad Avenue SW offers a versatile ±20,836 SF industrial facility on ±0.7 acres, well-suited for manufacturing, warehousing, or distribution operations. The building features ±22.5’ clear height, large showroom at the front of the building, a large clear span warehouse area in the center and rear of the building, 800-amp 3-phase power, and two drive-in doors (12’ x 22.5’ & 15' x 12’) for efficient access and functionality. Office space includes ±1,512 SF on the first floor and a ±752 SF second-floor executive office suite, providing a balanced mix of administrative and operational areas. Served by Dominion Energy and Lowcountry Regional Water System utilities, this property is available for $539,000, presenting a cost-effective opportunity for owner-users or investors.
Faits sur la propriété
Commodités
- Réception
- Climatisation
- Salle de repos
Services publics
- Éclairage - Fluorescent
- Gaz - Naturel
- Eau
- Égout
1 1
Impraticable à pied
10/100
Exceptionnellement facile d'accès en voiture
100/100
Assez praticable en vélo
30/100
Impôts fonciers
| Numéro de lot | 079-02-13-003 | Évaluation des bâtiments | 9 853 $ CAD |
| Évaluation du terrain | 1 204 $ CAD | Évaluation totale | 11 057 $ CAD |
Impôts fonciers
Numéro de lot
079-02-13-003
Évaluation du terrain
1 204 $ CAD
Évaluation des bâtiments
9 853 $ CAD
Évaluation totale
11 057 $ CAD
1 de 15
Vidéos
Visite extérieure 3D Matterport
Visite 3D Matterport
Photos
Vue depuis la rue
Rue
Carte
1 de 1
Présenté par
103 Railroad Avenue SW
Vous êtes déjà membre? Connectez-vous
Hmm, il semble y avoir eu une erreur lors de l’envoi de votre message. Veuillez réessayer.
Merci! Votre message a été envoyé.
