Votre courriel a été envoyé.
1030 Highway 96
Warner Robins, GA 31088
Commerce de détail Propriété À louer
·
3 600 pi²


Certaines informations ont été traduites automatiquement.
Faits saillants
- Excellent high traffic location in front of Rigby’s Entertainment Center!
- Traffic Count (GDOT 2024) Highway 96 - 18,000 VPD
Faits sur la propriété
| Superficie totale disponible | 3 600 pi² | Superficie commerciale brute | 3 600 pi² |
| Type de propriété | Commerce de détail | Année de construction | 2026 |
| Sous-type de propriété | Restaurant | État de la construction | Proposé |
| Superficie totale disponible | 3 600 pi² |
| Type de propriété | Commerce de détail |
| Sous-type de propriété | Restaurant |
| Superficie commerciale brute | 3 600 pi² |
| Année de construction | 2026 |
| État de la construction | Proposé |
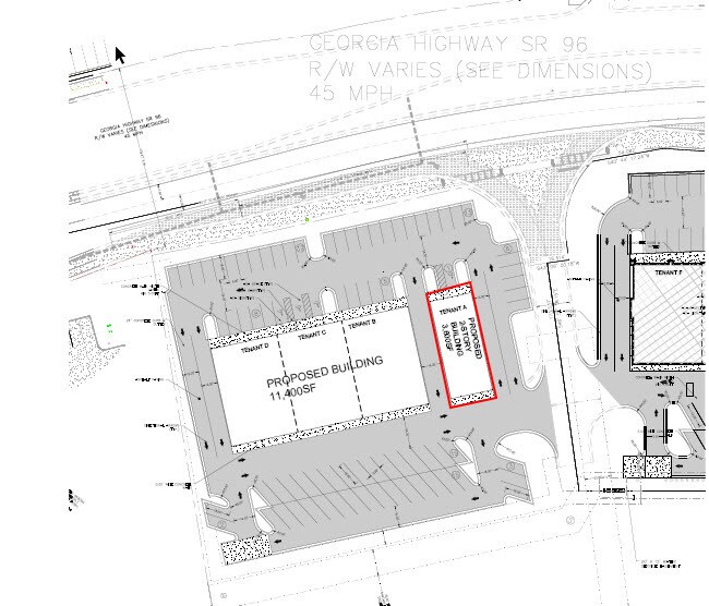
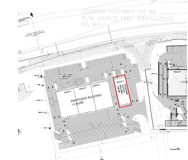
À propos de la propriété
Position your business in one of Warner Robins’ most dynamic commercial corridors with this ±3,600 SF possible build-to-suit restaurant opportunity at 1030 Highway 96, Building 1. Offered at $36/SF, NNN, this highly visible site features drive-thru capability, shared parking, and utilities already available to the site—providing a streamlined path from concept to opening. Strategically located directly in front of Rigby’s Entertainment Center and along Highway 96 with an estimated 18,800 vehicles per day (GDOT 2024), the property benefits from exceptional exposure and steady consumer traffic. Surrounded by established national retailers, restaurants, and financial institutions including Walgreens, Lowe’s, O’Reilly Auto Parts, Morris Bank, Mellow Mushroom, and Wild Wing Café, this location places your business at the center of a thriving retail and dining destination in Houston County. Ideal for a restaurant operator seeking strong visibility, accessibility, and growth potential in one of Middle Georgia’s most active trade areas.
- Service au volant
