Votre courriel a été envoyé.
Fallbrook Medical 1035 S Main Ave 6 767 pi² d'espace disponible • Bureau/Médical • Fallbrook, CA 92028



Certaines informations ont été traduites automatiquement.
Faits saillants
- Frontage
- Parking
- Zoning
Tous les espaces disponibles(1)
Afficher les taux de location en
- Espace
- Taille
- Terme
- Taux de location
- Utilisation de l’espace
- Aménagement
- Disponible
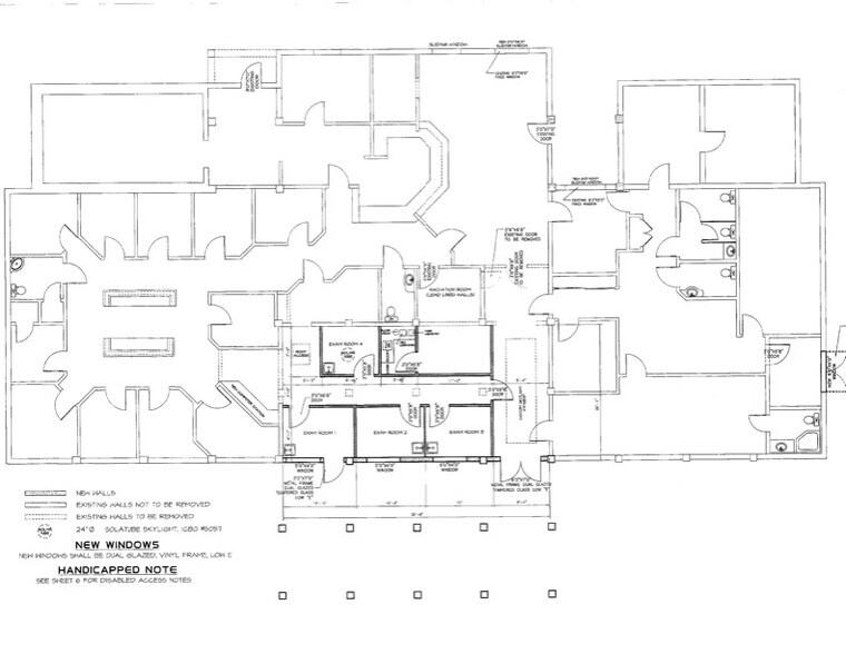
The existing 6,767-square-foot medical facility at 1035 S. Main Avenue is purpose-built to support a full range of primary care medical services. The interior layout features a highly functional design, including multiple exam rooms, private offices, a nurse station, X-ray suite, check-in/check-out area, and spacious waiting rooms. The configuration allows for efficient patient flow and operational flexibility, with supporting spaces such as administrative offices, storage, and a staff break room. The landlord has engaged professional space planners and architectural firms to evaluate and accommodate potential tenant-specific buildouts or reconfigurations, ensuring the space can be tailored to meet a variety of healthcare or medical office requirements. The property is zoned Heavy Commercial (C37) by the City of Fallbrook and is mapped within the Fallbrook Village zoning overlay, which allows for increased density and a Floor Area Ratio (FAR) of up to 2.0. This zoning framework offers expanded development potential and flexibility for future enhancements or expansion of the building, supporting both immediate occupancy and long-term growth opportunities.
- Le taux de location ne comprend pas les services publics, les services de bâtiment ou les dépenses immobilières.
- 23 bureaux privés
- 2 postes de travail
- Climatisation centrale
- Accessible aux fauteuils roulants
- Zoning (C37), Fallbrook Village
- Partiellement construit comme Espace médical standard
- 1 salle de conférence
- Aire de réception
- Salle de bains privée
- Private Parking
| Espace | Taille | Terme | Taux de location | Utilisation de l’espace | Aménagement | Disponible |
| 1er étage | 6 767 pi² | Négociable | Sur demande Sur demande Sur demande Sur demande | Bureau/Médical | construction partielle | 2026-11-01 |
1er étage
| Taille |
| 6 767 pi² |
| Terme |
| Négociable |
| Taux de location |
| Sur demande Sur demande Sur demande Sur demande |
| Utilisation de l’espace |
| Bureau/Médical |
| Aménagement |
| construction partielle |
| Disponible |
| 2026-11-01 |
1er étage
| Taille | 6 767 pi² |
| Terme | Négociable |
| Taux de location | Sur demande |
| Utilisation de l’espace | Bureau/Médical |
| Aménagement | construction partielle |
| Disponible | 2026-11-01 |
The existing 6,767-square-foot medical facility at 1035 S. Main Avenue is purpose-built to support a full range of primary care medical services. The interior layout features a highly functional design, including multiple exam rooms, private offices, a nurse station, X-ray suite, check-in/check-out area, and spacious waiting rooms. The configuration allows for efficient patient flow and operational flexibility, with supporting spaces such as administrative offices, storage, and a staff break room. The landlord has engaged professional space planners and architectural firms to evaluate and accommodate potential tenant-specific buildouts or reconfigurations, ensuring the space can be tailored to meet a variety of healthcare or medical office requirements. The property is zoned Heavy Commercial (C37) by the City of Fallbrook and is mapped within the Fallbrook Village zoning overlay, which allows for increased density and a Floor Area Ratio (FAR) of up to 2.0. This zoning framework offers expanded development potential and flexibility for future enhancements or expansion of the building, supporting both immediate occupancy and long-term growth opportunities.
- Le taux de location ne comprend pas les services publics, les services de bâtiment ou les dépenses immobilières.
- Partiellement construit comme Espace médical standard
- 23 bureaux privés
- 1 salle de conférence
- 2 postes de travail
- Aire de réception
- Climatisation centrale
- Salle de bains privée
- Accessible aux fauteuils roulants
- Private Parking
- Zoning (C37), Fallbrook Village
Aperçu de la propriété
Property Overview 1035 S. Main Avenue in Fallbrook, California, is a single-tenant primary care medical facility comprising approximately 6,767 square feet of building area situated on 42,689 square feet (0.98 acres) of land. The property is designed to accommodate a modern primary care medical practice, offering an efficient and patient-focused environment. Building Features This purpose-built medical facility includes multiple exam rooms, physician offices, a nurse station, X-ray suite, check-in/check-out area, and dedicated patient waiting rooms, as reflected in the attached as-built floor plan. The space also provides administrative offices, a break room, and storage areas, supporting comprehensive clinical operations and staff workflow. The building features its own dedicated entrance, prominent street frontage, and ample on-site parking, ensuring convenient and private access for patients and staff. Highly visible signage along South Main Avenue enhances the property’s accessibility and presence within Fallbrook’s established and growing medical corridor.
- Terrain clôturé
- Affichage
- Affichage sur monument
Faits sur la propriété
Sélectionner des locataires
- Étage
- Nom du locataire
- Secteur
- 1ᵉʳ
- Graybill Medical Group. Inc
- Soins de santé et assistance sociale
Présenté par
Fallbrook Medical | 1035 S Main Ave
Hmm, il semble y avoir eu une erreur lors de l’envoi de votre message. Veuillez réessayer.
Merci! Votre message a été envoyé.


